查看完整案例


收藏

下载
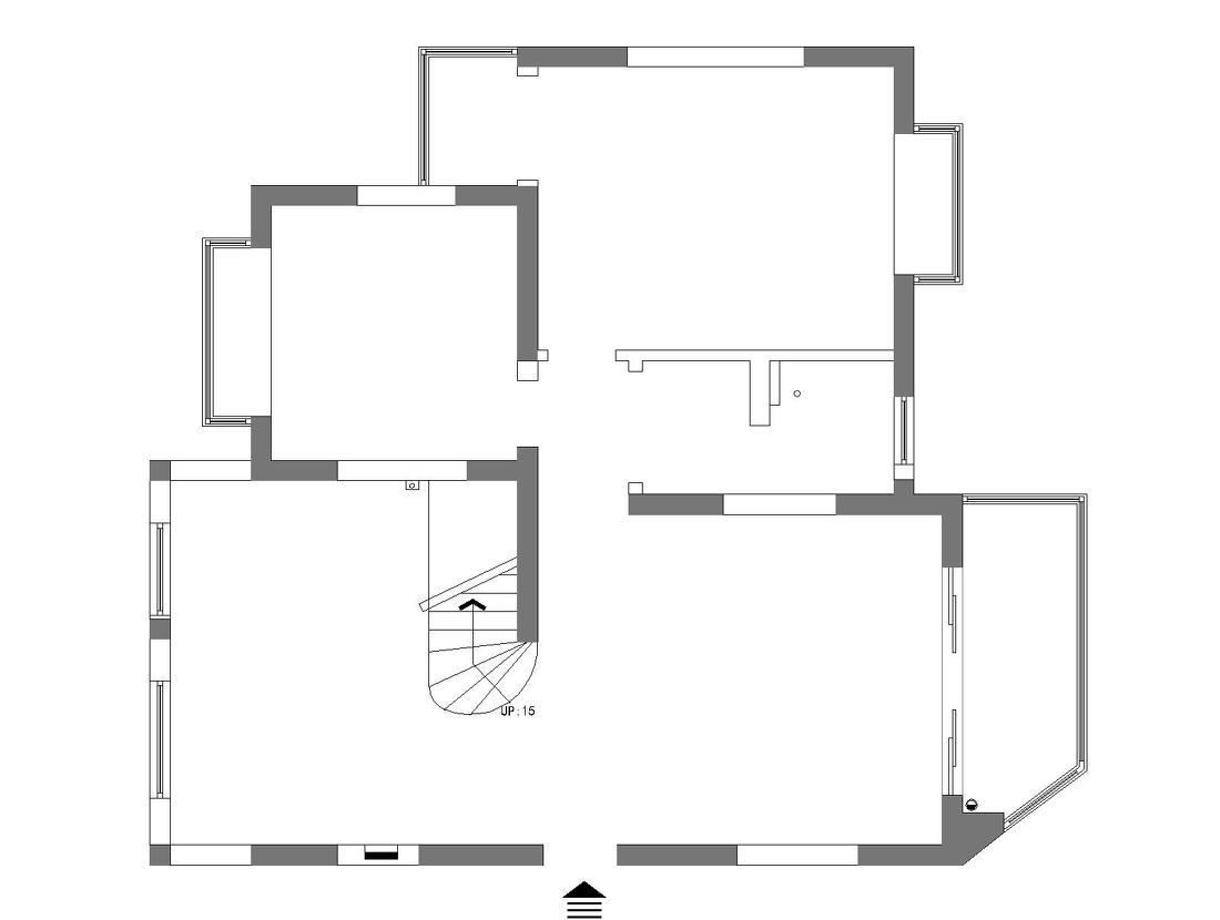
户型图
户型图作改造前后对比。
本套为顶层复式,此图为一楼改造后的平面布置图。
主要改动点:
1,将次卧整体改造为厨房
2,将原本餐厨区,与新的厨房打通,形成一体
3,将原本挑空的客厅加上隔层,形成正常高度的客厅和一间楼上的书房
4,卫生间改出干湿分区
5,楼梯转向,从原本进门直接是踏步,改为增加单独门厅区域,从鞋柜后方上楼(出于风水考虑)
后面篇幅会将具体的改造细节,以及为什么这么改。
地砖缝与柜边平齐
强迫症就是要计算这块区域需要铺几块砖,用砖的宽度推算柜子的宽度,再推算吊顶的宽度。
是的,就这么费劲,就是要看着清爽。
美与不美,就缺这点细节。
厨房电器就都集中在一起了。
电器就是需要先选好,但不用急着下单。把安装尺寸都记录好,根据电器尺寸来定制橱柜。
顺序对了,就不会出问题。
餐边柜+置物架,有藏有露
我们叶老师喜欢收集杯子,世界各地的,走到哪卖到哪,这里还只展示了一小部分,都很漂亮。
原本有考虑中厨+西厨+餐厅的常规组合,平面排出来发现餐厅区域太小。
为了最大限度的给餐厅让位置,我们把西厨的功能点列出来,重新组合分配位置,把所需电器(烤箱蒸箱冰箱等)都挪到中厨,把置物收纳都归到餐边柜,那剩下的操作台就只好与餐桌合并了。
灵感之源
在正式展开之前,我一定要先放这几张图片,并将至命名为“灵感之源”。
熟悉我的人都知道,我喜欢让客户“写作业”。把对新家的期望,用文字写出来,最好能感动我,让我感同身受。我相信这样设计出来的作品,才会有灵性,才会有温度,才会独一无二。
但叶老师却用她的烘培甜点感动了我。
我本对甜食无感,在叶老师的劝说下勉为其难吃了一口她做的甜点。入口那一瞬间,一种幸福的感觉由内而外的喷涌,太好吃了,她家要做成什么样,在那一刻灵感唰唰的。
经过我们反复的分析业主的需求与生活方式,发现餐厅是家里的“核心区”
叶老师喜欢在餐厅做烘培,插花,招待朋友。
一家人交流最多的时间也是在餐厅。
所以我们决定将家里最好的一块区域留给餐厅,拥有朝南的两扇窗,外面就是中环高架,无遮挡,视野开阔。
设计就是个不断解决问题的过程。
现在问题就归集在餐桌上了,我们需要拿出个方案来,能让餐桌上,兼具西厨操作台的功能。
要有水,有电,能动刀,能动火,还要颜值高。
综合考虑以后,我们定下的方案:岩板+铁架+木柜。
岩板,是一种新型材料,具体可百度查看,这里主要是用到他的几个特性:1)大、轻、薄,我可不希望桌上有拼接缝,一般石材做不到这么大的整张,足够的轻薄用铁架就可以支撑,不用做笨重的桌脚。2)5级耐污及抗菌抑菌,食材可以直接放在上面。3)耐刮耐磨耐高温,直接在上面切菜都可以,不用担心划伤,刚出烤炉的也能直接放,不用担心烫坏。
岩板是制作餐桌的第一家供应商。
客厅做的很简单,没沙发背景也没电视背景,就是用色彩。
用的是马尔斯绿,挺好玩的一个颜色,有点像绿,也有点像蓝。
男孩子,自己挑的蓝色,他的最爱色。
书房与书架正对的这堵墙,是白墙,能直接往上面投影。
老陆同学喜欢在这里看电影。
书房里的榻榻米。
这片区域原本是二楼的阳台,但是有个比较高的反梁,跨出跨进都不方便,索性就做成榻榻米,工作累了还能躺下休息。
偶尔还能当临时客房用。
淋浴间 的地面处理。
水向一边流,做出高低差,用长地漏。
谁用谁知道,下水速度特别快。
当然也有用四边下水的,更快。
楼梯有意思的地方在于,右手边原有烟道的处理,和楼梯下方收纳空间的隐藏以及合理利用。
图片上没法展示,就不说了。
客服
消息
收藏
下载
最近



























