查看完整案例


收藏

下载
整体色调和感觉简单舒适,过道缩小产生的空间做了餐边柜,用于收纳,大线条的收边吊顶和细节的收口,搭配素色的家私,营造一个简单舒适的生活氛围。
客厅餐厅空间延续到阳台,户外的绿意也让生活增添了生机,吊顶都是极为简单的收边,为处理墙纸和顶部的关系灯具也十分舒适和简单,白色留边的顶部也为空间多了一个层次,所有顶面保持原有的空间高度,让客餐厅的高度感觉十分舒适。
地面的材料全部选择了素色的木纹砖,较为容易打理。墙面浅米色的墙纸,和白色的顶面搭配深色的家私,相对会有一些颜色上的层次。
挂画选择跳跃的颜色,让整个空间显得活跃起来。在整个空间格局下再没有将客餐厅的空间刻意的分隔开,以一个整体的形式将空间释放,因为层高原因整个客餐厅空间是没有做吊顶的,就只在电视的上方吊了顶,这边做吊顶是因为电视背景墙和餐厅的背景墙是没在同一平面上的,为了使客餐厅的空间看起来更加方正就在天花上用吊顶的方式来弱化,刚好在这边吊顶的区域又能把空调的位置暗藏在天花里,使整个空间更加整洁美观。
玄关柜即在空间上点缀了空间,在沙发边又有实用的功能,书本,杂物也可以轻松的收纳。空间以米色为基调,通过软装画和餐边柜的布置做为点缀,缓解整个空间色彩的单一和冷清,营造温馨不失雅致的氛围。
小孩房空间以浅粉灰色为基调,窗外的风景和光线都映入室内,打造一个明亮爽朗的卧室感受。梁位下方的空间做了窗帘,节省出了本身要做窗帘的位置。
床头一副装饰画,让空间为舒适和一些品质感。
简单的卧室,没有过多华丽的装饰,也没有过多的色彩点缀,但是却能再简单的设计中演绎出个性的特质。衣柜柜门选择移门不占用床边过道的空间方便使用,天花上的处理也和客餐厅一样,在不影响空间感受的不重要的地方进行吊顶将空调暗藏,使得空间更加美观的同时又能划分出空间的界限。
床头角度
卫生间做干湿分离把水隔绝在淋浴房里,不会让卫生间有潮湿的感觉,也合理的利用了空间使卫生间使用起来更加方便。
厨房冰箱和岛台的位置留出了一个小的电器区,整体白色的设计,在采光好的环境下感觉十分明亮。
厨房空间白的基调凸显整洁而明亮,洗衣机位置的设计节约了空间,也使得台面多了一些功能上的用处。
阳台方便闲暇之余在这眺望远方,沐浴阳光,休闲的椅子配上绿色的植物,自然而舒适。
小孩房整洁干净而明亮,一整面的落地窗户视野贴别的开阔,静静的躺在床上享受着简单快乐的时光。
玄关柜细节
茶几细节
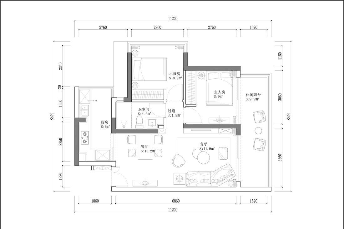
平面空间划分上没有太大的改动,原始户型是比较周正的格局,因为此户型面积并不大,所以设计师缩小了过道的空间,为餐厅添置了一个餐边柜,各个空间也比较实用所以平面空间划分上没有太大的改动,用简单的方式打造舒适的家。
客服
消息
收藏
下载
最近




















