查看完整案例


收藏

下载
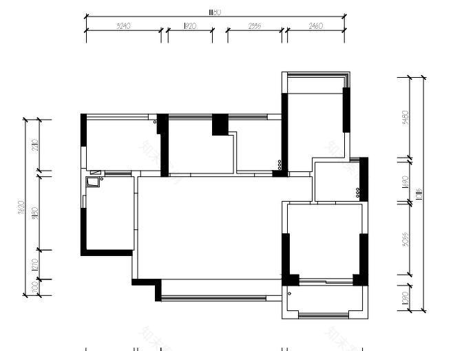
坐标深圳后海片区一套89平小3房,户型硬伤有四:一.入户花园一字型布局,利用率低,采光一般,二.厨房面积小,且采光要借入户花园,三.书房面积小且父母偶尔需要过来入住,四.主卧同样面积过小衣柜放了后,1.8的床就放不下了。业主需求:一,厨房面积大每天需要使用,二,书房需要通透且能具备正常生活需求,三,主卧需要衣帽间及休闲区,四,整体空间环保实用舒适却不失雅致。
结合设计师张君现场量房看房后的结构与业主的需求,在结构布局设计上,我们对整个房屋进行的合理的改造。一,打通厨房与入户花园的厚墙体现场制作嵌入式鞋柜,让空间合理利用。二,可喜的是原开发商的厨房另一边可以开窗,这样采光更好,让空间通风效果更自然流畅。三,原公卫缩小,书房墙体外移刚好利用做衣柜。四,主卧与电视背景做了异形处理两边都可做收纳空间,阳台封窗做衣帽间及休闲区。五,小孩房与主卫墙体变小,给孩子多出12公分的活动空间。
入户花园选用灰色水泥地面砖,因入户比较潮湿墙面选用防潮舍且质感强烈的灰泥,与墙面定制装饰山景画搭配出一场强烈的视觉盛宴。
厨房调调中体现简洁明快,墙面纯色的搭配,采取方块小白砖。橱柜设计选材上在地柜和吊柜上颜色区别,我们要的简洁但不是那么简单。
客厅深灰色皮质沙发在一个蓝色靠枕的搭配上,打破了空间的线条沉稳,在餐椅蓝色对比中又不显突兀。
方块的实木地板衬托灰色墙面,横竖相间的木纹,生动的融入一个空间。透明木蜡油地板面最大限度的展现自然的木质感,家的空间不需要过多的人为修饰。
左侧书房的黑色窄边框玻璃推拉门,与客餐厅活动家具的黑色金属呼应,简单的色彩在呼应中静静的美。
走过玄关后步入餐厅,整个空间灰色作为背景色,饱和度低的蓝色作为空间的点缀色,相互融合且相互衬托。卡座的靠背用于区分餐厅与客厅区域,空间贯穿的不用刻意修饰,自然舒适是关键。
客厅主题的电视背景柜没有过度修饰,在设计中考虑空间的格局与色调还有实用,虚实的格局比例把控的刚刚好。
书房的推拉门设计,可以把握客厅的视觉通透和南北通风,窄边灰玻可以给书房增添一丝神秘的想象空间。
过道装饰画中的金黄色菠萝与墨绿色的叶子,在原木的地板衬托上,犹如蓬勃的生机,给人以希望。
公卫设计上与厨房采用同款墙砖,在冲凉区湿度大的地方采用整面墙贴砖,干区墙面则采用底部贴砖,上半部做灰泥涂料。设计上突破了传统墙面都贴砖的单调,灰泥的防潮性能可以在洗手间干区大胆发挥。
书房的设计上在书桌和书架上采取了组合设计,节约了有限空间给收纳储物,比如:木质榻榻米,木质组合衣柜。
小孩房的设计中简洁有力的表现是男孩天生喜欢节奏,床头蓝色地球画与窗帘蓝的呼应,显得刚劲有力又富有想象力。
静享一片梦境。
主卧设计中把原有阳台与卧室空间打通,拓展主卧的实用空间,原阳台两侧做衣柜收纳,不影响卧室的通风采光。最爱主卧床头两侧的壁灯,简洁的造型,柔美的灯光,缓和了深色家具的色调。
灰蓝色的床品,海蓝色的浪涛,似静似动的空间融入的是梦想的地方。
主卫的空间比较方正,冲凉区利用角落设计,采用单扇钢化玻璃与马桶隔断。地面六边砖的深浅搭配,给不大的空间中增添了节奏的变化美。
享受愉快的装修过程,以及开心的拍照之旅,感谢美女业主的信任及支持!一套作品能完美的落地,离不开业主的信任,感恩选择了迪尚设计团队,多谢!!!迪尚设计团队珍惜每次机会,加油!!!
客服
消息
收藏
下载
最近























