查看完整案例


收藏

下载
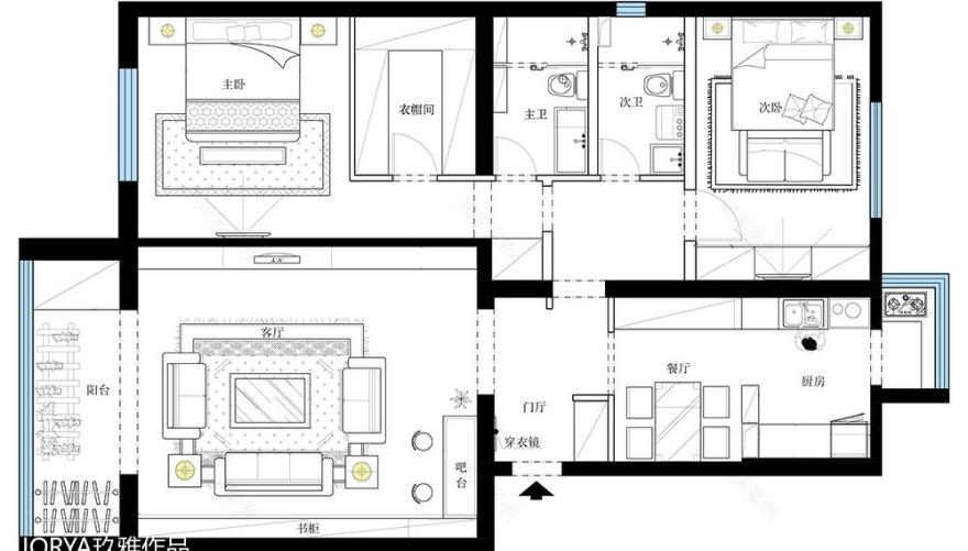
原始户型算是比较方正的户型,南北通透,原始格局几乎没做改动,只是拆除了餐厅和厨房之间的墙体,将厨房改建成开放式。
1、进门处增加了穿衣镜和鞋柜,补充了原始户型缺失的储物和转换休息的功能。
2、拆除原始墙体,将厨房改造成开放式,利用阳台放置燃气操作台,提高了空间利用率。
3、沙发背景墙新建一排书柜,增加储物空间。
4、在主卧内设置独立衣帽间。
一进门,左手边是穿衣镜,右手边是鞋柜,鞋柜中有一个柜门拉开就是挂衣区。每天出门都要美美哒。
将灶台放置在阳台上,扩大了厨房使用空间。
开放式厨房,一字型橱柜很适合空间比较小的厨房。
简简单单的设计搭配灯光效果显现出温馨的氛围。
沙发背景墙是一排白色高柜,与墙壁浑然一体,既美观又增加了储物空间。
客厅方方正正的,南北通透,增加了展示架,放置装饰品。
原木地板搭配浅色墙壁,睡在这样的卧室里,感觉睡眠质量都会提高。
主卫和次卫都采用了一半砖一半漆的形式,实用又大气。
客服
消息
收藏
下载
最近






















