查看完整案例


收藏

下载
原先简约款式的居宅外观,品立帝室内设计以材质表情搭佐上绿意、枯山水共构的日式轻禅造景,围塑宁静舒适的渡假闲情。
带入顶级精品酒店的设计力度,辅以格栅、几何雕花拉门等简约东方元素,勾勒出独到的新东方时尚。
烤漆玻璃拉门于量体之上,切换着机能与机能间的收阖开展;下段辅以灯光、镜面的挖镂,创造出简洁造型中的轻量悬浮视觉。
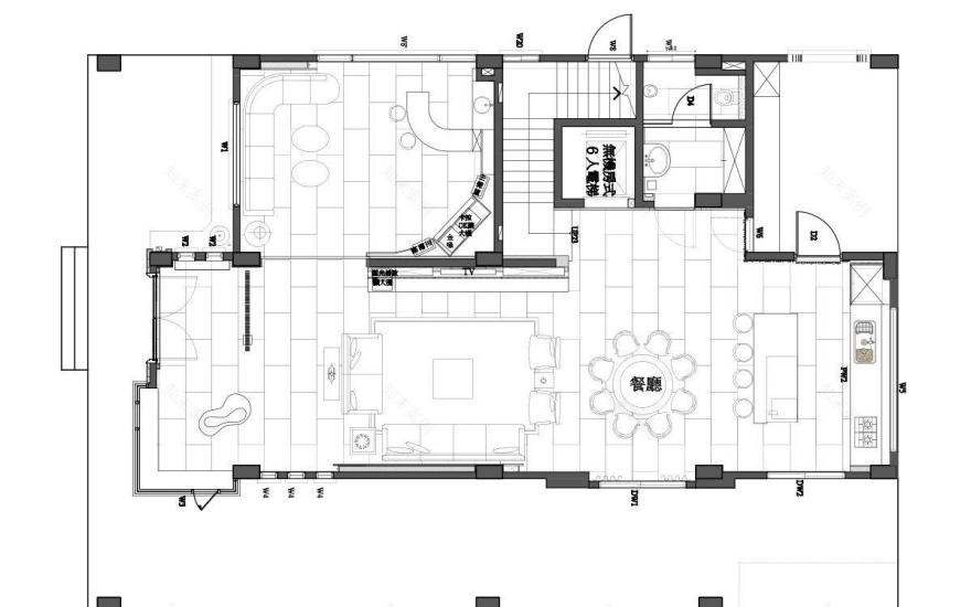
客厅、餐厅、厨房三者一字铺开的开放格局,仅透过立面材质、採光位置为机能段落暗示;跳以木质铺排的立面带入自然亲和的色调暖度。
Armani黑灰拼接的时尚餐柜,搭配上深色的实木圆桌,东方传统与精品设计揉合运用,在家私的选配上亦可窥见其设计思维。
黑白双色的简约设计张力,赋予既定印象中杂乱厨房空间,一份时尚俐落设计感受,一字型宽扁的镂空,使主妇在家务繁忙之余同享庭园绿意。
位于电视墙与玄关格栅之间黑色雕花门后,以黑灰白的前卫色系构成聚会时使用的视听空间,不仅欢唱机能完备,更有调饮的轻食吧檯机能。
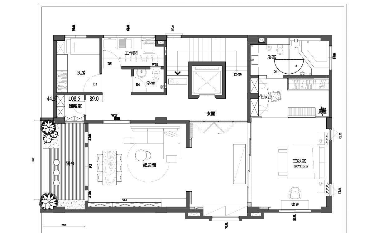
孙子与长辈共用的楼层,起居客厅做为分置两侧的隐私缓冲,在宁静、简约、沉稳之中,跳以色彩鲜明的双色单椅,表现年轻人的时尚性格。
长辈居住的空间运用了更多木质与白的元素堆砌渡假氛围,一朵绽放的牡丹开展于床尾立面,满足居者的风格喜好之余,亦有夜间照明的务实意义。
预留着待客时的借宿弹性,和室空间以大理石才研磨而成的石末,在立面上创造粗糙的手感表情,搭衬竹地板、桧木阐述日式禅风。
延续着深色木质的机能铺排,主卧房以家私机能构成简约宁静的卧眠氛围。
石材的纹理表情延续渡假感受的禅意氛围,带入屋主希望的降板澡池,成为享受生活的纾压空间。
客服
消息
收藏
下载
最近

















