查看完整案例


收藏

下载
雾面透明隔屏,银色的花鸟树语成为进入空间的第一景緻,天地唿应的石材拼花与水晶灯,于金箔与线板的装饰中展现高规格奢华。
大理石材铺陈地坪与电视主墙展开华贵的宽敞尺度,罗马柱、华丽的线板与大水晶灯搭构大器的雍容。
银紫色的丝绒古典家具与地毯,围塑方正广阔的客厅段落,沙发背墙的茶镜与金线雕花,有着宫廷般的奢华光泽。
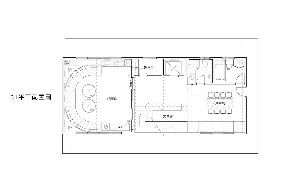
楼梯位于客厅左侧,经过适度的端景留白,电梯厅以石材变化段落,一侧为通往餐厅的琉璃窗花门扉。
金碧辉煌的复层画框嵌入菱格纹镜面的奢华,映照着水晶灯的璀璨光芒与对侧通往厨房的雕花对开门。
循着旋转梯与水晶灯的优雅曲线蜿蜒而上,立面材质由奢华的金属马赛克砖接续古典图腾壁纸,为整合三间女儿房的梯厅走廊。
依照居者的风格喜好,将水蓝色与粉色完美调和于空间中,呈现梦幻典雅的卧眠风格。
以壁灯、线板修饰对称的床头墙,降低金箔的使用范围,纳入更多清爽的美式风格元素。
套房的格局规划有着与主卧相似的奢华氛围,加大的床头呈现如公主般甜美贵气。
如孔雀尾巴的绷布切割造型,以华贵的粉金色展开对称的床头语汇,两侧茶镜喷花饰板于空间四角对称映照。
线板框与机柜为岛状隔间,区隔主卧起居空间与卧眠区,可旋转的视听机能满足双向的使用需求。
镶银框的深色的格纹家具,呈现英伦皇室的内敛沉稳,以连续衣柜雕花门扇展现欧风中的序列元素,丰富立面表情。
客服
消息
收藏
下载
最近

















