查看完整案例


收藏

下载
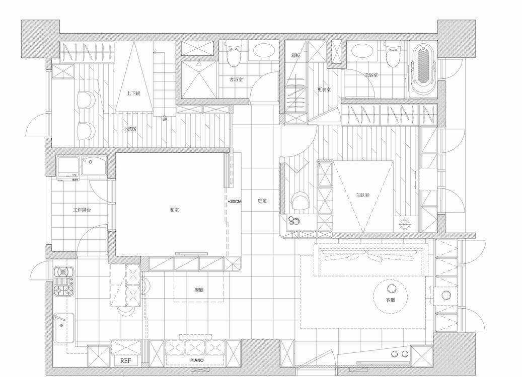
客厅的日式格栅元素,沿着墙面串连到餐厅,达到延伸视觉之效。
走廊转角特别以弧形修饰,是避免年幼孩童撞伤的贴心。
局部穿透的玻璃展示柜,后方其实是男主人的小书房,变化出丰富的层次感。
材质和造型元素相互唿应,赋予空间良好的氛围完整度。
半开放厨房把空间界线向后推,达到放大效果之余,也透过拉门解决油烟问题。
隐藏式餐桌为屋主节省空间,让小朋友弹钢琴的地点更宽敞舒适。上方还隐藏旋转电视的巧思,使和室可以共享机能。
以壁纸和木地板营造出日式清雅味,客人来访时能弹性转为客房运用。
男主人特别提出需要在室内有一个「吸烟区」,因此设计团队规划出房中房,并藏入排烟设备,让男主人可以在此吞云吐雾。
以白、灰二色搭配木纹材质,呈现自然放松的休息氛围。
L型檯面可以左右推移,窗台墙面还细心安排插座,让男女主人可以在此上网,增加实用性。
订制Kitty超梦幻主题的上下舖形式,尽力满足女儿对童年生活的期待。
楼梯的踏面均可开启,让小孩的玩具、衣物都有足够的收纳空间。
客服
消息
收藏
下载
最近















