查看完整案例


收藏

下载
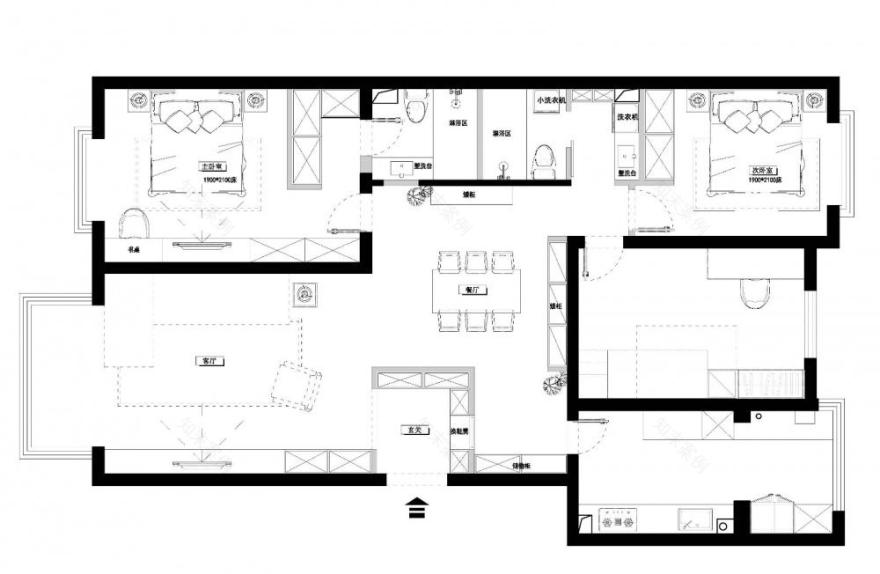
房子面积足够,采光也不错,南北通透,但是被一个储物间挡住了两个卧室之间的通风。
把原本储物间的位置挪到了进门,形成了玄关,设计了一个坐凳,坐凳后镂空,让南北空气对流。
通风图。
玄关设计通常很重要,一般有四大原则:能够保证生活的私密性、遮而不死、实用、简洁
为了保持整洁,把90%空间都带门,实木做成了白色门板,开放格子则保留了实木的原始属性。坐凳左右两边是500mm深度,以挂衣服为主,正对的厚度是330mm,以放鞋子为主。考虑到今后有可能需要用到轮椅,还有进家具的方便,入口处留出足够的大小,宽度是1500mm,长度1700mm。
玄关柜设计图。
除了沙发,所有的成品家具都是胡桃木的,小椅子是小孙女的心爱之物。
雾霾天,北京午后的阳光。
沙发选用了进深900mm,更符合老人久坐。
储物空间是有老人孩子家庭的头号难题,在解决储物空间同时,不想让很多柜子太有存在感,可以让柜子发挥他们自身的结构美感。
大面积还是保留了实木的底色上的水性清漆,黑白色为混油工艺。
为了增加空间的层次做了一部分墙板,墙板选用实木皮,基础板也用的实木,来尽量降低污染。
餐边柜的墙面选用的超薄石材,只有3mm厚度,却保留了石材的质感。
厨房门口的柜子漆成白色,把手是自己配的。
此处吊顶影藏了若干中央空调新风的管道,保留了空间的层高。胡桃木的家具增加了空间沉稳的感觉。
次卫是值得一提的地方,通过两个卫生间的大挪移,设计了次卫的外置洗手台,主要为再多一些储物,视觉上能把这块空间融合在大厅。
六角砖延续到卫生间内,墙上配的素色石材感觉墙砖。
此为主卧,床头上半部分加厚100mm,边沿做了条形灯带,下半部分则通过地板上墙,配以温暖的窗帘。
只是橡木有点年轻,只是胡桃木有点暗沉,橡木与胡桃木的结合,好比年轻人和老者的一场对话。
主卧衣柜。
主卫,干净明亮为好,两个卫生间的六角砖也得以呼应。
次卧墙板衔接过来点亮空间,没有多余的装饰。
大面积是浅灰色乳胶漆,窗帘也让它显得没有存在感。
儿童房效果图。
儿童房主要以疏密来区分,床和柜子紧密的利用一边的空间,另外一边则腾出来活动。
厨房有良好的采光和景致,把冰箱放在墙后,显得空间更加宽敞。
客服
消息
收藏
下载
最近





























