查看完整案例


收藏

下载
业主希望家里多一些色彩,考虑到孩子的天性,我们多选用低饱和度的色彩。并采用简单明快的线条。两面墙体做不对称处理,粗细线条形成对比。空间本身有结构变化,形成了丰富的视觉语言。
出于层高考虑一楼客厅采用全吊顶无主灯设计。简单而又整体。地面采用鱼骨纹地板与简洁的吊顶形成对比。
施工过程中多出来的一根立柱也很好的和整体关联起来。并没有觉得很突兀。沙发茶几和墙面颜色都选用了低饱和度的色彩。统一而又富有变化。
优雅的孔雀绿丝绒沙发,质地柔和,与空间的融合恰到好处。浓郁的复古色调,向大师致敬~
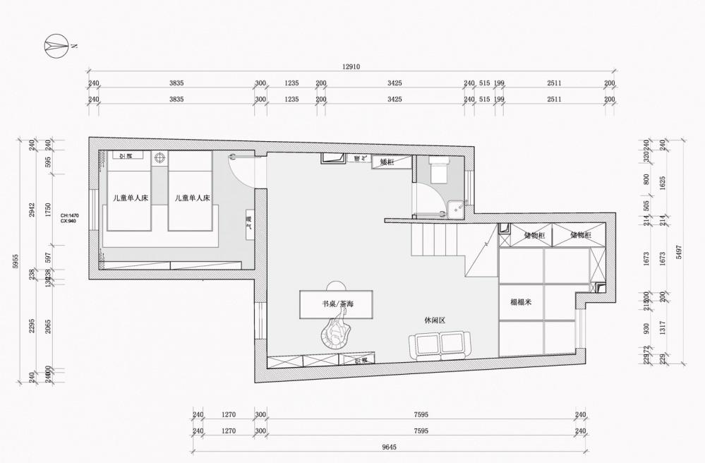
拐角楼梯有楼梯休息区最主要是要照顾到孩子的安全。另外就是给给迎面和转身,留出一个挪步空间。楼梯下设置储物空间。跟随宝宝可爱的步伐,我们去到二楼,又是一番别样的空间。
楼梯结构之美
打出来的窗户极大的增加二楼采光。男主人也在这层拥有一个明亮舒适的办公场所。榻榻米区域供客人或者来访家人休息。
安静,属于自己的时间或空间里。是停留,是沉默,是一种气息。
留空区是要给男主人放沙发设置投影增加一个小型影院用的~
时间的推移,男主人开始陆续装点起了自己的书房
楼作为两个宝贝女儿的闺房,选用低饱和度的桃粉,黑板墙,小画板,都是给宝宝的趣味设置,触手可及的生动。
房间内准备设置床垫,不考虑用床体。
为了孩子们将来使用方便,在二楼也配置了少女卫生间,同样采用梦幻般的粉色调,简单实用。
主卧仍是优雅复古的色调,金色的分子灯和吊灯,是空间的气质担当,让本不将就的生活,愈发精致。
U型开放式厨房,公认的好用布局,橱柜的选择与地板相协调,统一整体。
仿石纹瓷砖,白色浴室柜,黑框玻璃移门,色调简约,线条清晰。整体的层次感分明干净利落。
镜前灯与水咀还有镜框同材质的选用,都是设计师对细节的考究,与黑色形成对比,凸显出精致。
浴室黑白分明,功能明确,给人以整洁明亮的清新感。
客服
消息
收藏
下载
最近
























