查看完整案例


收藏

下载
入户玄关订制了一块实木竖匾,日华轩是业主为自己家起的名字。
厨房和餐厅合为一体,小户型也能拥有大岛台。
是谁来自山川湖海 却囿于昼夜厨房与爱
客厅的书架和地台都是现场做的,订制的沙发靠枕和坐垫,一整面的书架完全不担心收纳问题。地面做的水泥自流平,墙面也是刷的水泥漆。
平时的布局是这样 的,书桌与客厅以四扇屏风隔开,最左边是工作台。这就是空间打开的好处,每种功能需求互不干扰。
书桌是以四个三角形桌子组合起来的,家里来客人了玩玩狼人杀打打牌啥的,就可以组成一个方桌。右边是洗手台,下水墙排处理,没有卫生死角。
客厅开启观影模式,150寸的幕布加6个环绕布置音响,毫不逊于影院的视听效果。
文艺青年的居所,有书,有音乐,有烟火气。
阳台的花池里,种着络石,肆意生长。
早上8点,便有穿过薄雾的阳光,洒满冥想室。
冥想室没有特定的生活功能,练琴、静思、阅读,有无限的可能性。
墨菲床翻下来,还能变身为客房。
次卧整体抬高,简简单单。
主卧也是一床一柜而已。
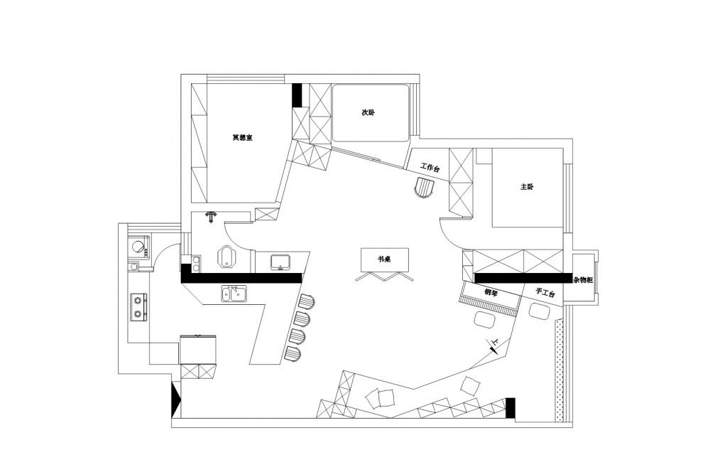
原户型是个很常见的中户三居室,设计师量房的时候业主已经把厨餐之间的墙打掉了。
最终定稿的平面布置图,整个空间的规划原则是卧房只用来睡觉,尽可能的释放出空间给公共区域,以解构的手法将空间打散重造。
客服
消息
收藏
下载
最近


















