查看完整案例


收藏

下载
业主对于装修设计有着个性化的要求,对于原有的空间格局也存有一些不满:
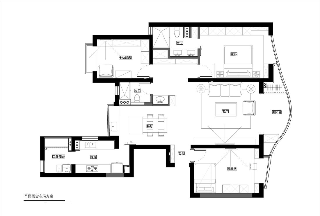
1.儿童房空间较为狭窄,没有多余的空间独立设置书桌书柜。
2.厨房通道细长,无法设置岛台区。
3.洗手台在潮湿环境易滋生细菌。
4.主卧床头正对门口,没有安全感,正处风口不利健康。
1.在儿童房飘窗位置设置书桌,将窗帘长度调整到桌面高度,利用其两侧纵向空间设置书柜。
2.将岛台区设置在厨房之外的餐厅旁,距离仍近却不受限于厨房空间,既可储物,又可设为水吧。
3.改动卫生间墙体,将洗手台分离出来,也可方便日常使用。
4.在主卧入门出设置玻璃屏风,既可作为视觉缓冲,也能阻隔风力。
无论身在何处,归期何时,家都在这里,守候着归人,永远为疲惫的归客点亮一盏温暖的灯火。玄关采用了现代极简主义风格,舍去浮华的修葺与装饰,仅用墙柜构成玄关功能区的划分。
大面积银灰色的漆面,色彩低调,气质内敛,宛如深色镜面的表面既塑造了空间感,拓宽了视觉空间,在灯光下又隐隐有流光在其间轻盈流动。
动与静,光与影,交错相织,仿佛空间中的这一切都有了灵魂与生命,在动态的平衡中探索构成生命感的最基础层次的形态——如同DNA般的存在。用最简洁的方式,再现DNA中隐藏在深沉思想与严谨结构之下的生命光芒。
疲惫的身躯,麻木的思绪,总需要一处温柔抚慰,就想这么深深陷入柔软的沙发,把一切都放下,只剩下生命的轻息。通透的主体格局,开放式的客厅、餐厅、岛台区令主体空间显得更加开阔。
棕灰色的木纹地板,让灰黑色的空间增添了自然的灵动和清新。客厅背景墙选用墨色石材和黑色木纹相拼接,从材质上增添空间的层次感,完成了从玄关到客厅的空间转换。电视墙采用灰色布艺墙纸,用较浅的灰色缓和了黑色主调的视觉疲劳,完成整个空间的色彩过渡。墙面舍去任何多余的装饰,仅搭建了一层简洁的平板支架以供收纳之用,将现代极简主义与实用主义发挥到极致。
墙纸柔和的质感也与客厅背景墙石材、木纹的坚硬形成对比,与客厅中央北欧简约风格的石材、木纹组合茶桌相呼应,刚与柔的交汇,光滑与粗犷的结合,材质的多样化让客厅空间视觉层次更加丰富。黑色是整个空间的基础元素,就如同DNA一般存在于空间的每一个角落。从墙体到地面,不同层次的灰黑色相搭配,让客厅空间显得色调和谐、层次分明、错落有致,富有生活的气息与生命的律动。鹅黄色的真皮沙发与金色金属落地立灯无疑成为了客厅空间的视觉中心,明亮而富有活力的色彩完美突破了黑色基调带来的压抑和沉寂的氛围,皮质与金属质感的运用也让空间显得更加灵动开阔,仿佛奔腾洋溢的生命之源蕴含其中。
简洁宽阔的客厅吊顶既抬升了视觉高度,又增添了层次感,内嵌式的灯光设计令顶部空间显得更加清爽,没有一丝累赘,通过吊顶的层次划分,进一步加强了功能区的分化,让生活的轨迹随着空间的DNA结构行进。
洁的餐厅没有冗杂与拥挤,远离厨房的油烟与闷热,清新的绿叶、生机勃勃的花穗为这黑色的空间带来一丝明艳与活力,让人沉浸其中,享受生活最质朴的美好。自由舒适的用餐环境让人能在更加放松的状态下进食,促进食欲,令人食指大动。木纹墙柜兼具收纳和划分功能区的作用,既节约了空间又与客厅材质相呼应,加强了主体空间的整体性。餐桌大理石桌面沉稳内敛,低调之中显露出对生活品质的追求,高脚座椅与细长的餐桌支架拉长了视觉高度,展现出纤细的现代美感。
光影斑驳的飘窗下,特别设计的水吧干净整洁,陈列的杯具与酒品静候着主人的挑选,生活在其间,繁忙时可以制作一份美味的简餐,闲暇时也可充作吧台享受一支心仪的红酒,让生活的每一刻都成为一种对于生命的享受。
银色金属在厨房电器的表面光影闪烁,让原本沉抑的厨房空间有了轻盈灵动的光彩,打破了空间的封闭感,让轻松美好的心情伴随着主人的每一次翻炒融入亲手制作的美味,等待着与舌尖味蕾的浪漫相遇。
厨房一反主体空间黑色为主的色彩基调,改用白色为主,厨房橱柜、桌面、管道等大面积板块皆采用白色,辅以黑色线条,让厨房空间显得更加整洁干净,让原本狭长压抑的厨房过道显得更加柔和灵动。不同于主体空间木纹材料的大量运用,灰色石纹墙面和地板更显简洁沉稳,深沉的色调更为经久耐用、不易被油烟污染。
过百叶窗,窗外的景色依旧那么清晰,阳光在扇叶间流动,像是被驯服的野马,温柔地落在书桌上,让思绪沉淀,让灵魂飞舞,让文字随着每一次呼吸流淌在纸面,工作与学习都是为了遇见更好的自己。
主卧延续了主体空间的装饰风格,彰显出其作为主要生活空间的核心地位。棕灰色的木纹地板让室内空间显得更加清新柔和,仿佛回到生命的起点,淳朴而自然,令人不知不觉便放松下来,让身体与灵魂回到安逸的港湾,享受难得的休息,居家舒适感油然而生。
真皮靠背搭配松软的床垫,舒适的大床让每一次休憩都成为不可多得的幸福,从现实到梦境,家的美好始终相伴。玻璃屏风完美完成了公共空间和私人空间的划分,波浪纹的线条简约美观,既能作为装饰,又巧妙保护了主人私人空间的隐私,让卧室空间与大厅更加有距离感。
童年是人生中最快乐的时光,生命在这一段岁月中散发出最绚烂的光彩,最简单的事物中都藏着整个世界。儿童房没有采用主卧沉稳的风格,更加明亮活泼的原木色成为了儿童房的主题色调。
双层床的安排既让儿童房在空闲的时候也可充当客卧的作用,也为可能出现的第二个宝宝预留了空间,有备无患。床栏上设置了柔软的靠垫,一来可以防止碰撞手上,二来也可让坐靠在床上时更加舒适,让被窝成为最温暖舒适的归处。
书柜上摆满了拼装玩具与手办透露出童心与稚嫩的气息,字典、书籍、地球仪等物品让学习的氛围洋溢在房间的每一个角落。原本布局飘窗的位置,安置了宽大的书桌,并利用两旁的纵向空间设置了两个书柜,高效利用空间,打造出一方专为学习设计的空间。
最幸福的,莫过于与爱的人目光相会,让对方的眼中看到最质朴的自己。卫生间保持了现代简约风格的设计,每一处细节都遵循着实用主义的原则。镜面储物柜既代替了镜面的实际功能,同时增添了卫生间的储物空间,提高了平效。
双水槽的设计让洗漱时卫生间空间不再拥挤,宽阔的双水槽足以容纳两人同时洗漱,让选择洗漱顺序的尴尬不再发生,从生活的每一个细节出发,创造幸福的居家时光。透明浴室让卫生间更具空间感,缓解狭小空间带来的压抑。
客服
消息
收藏
下载
最近































