查看完整案例


收藏

下载
家具的选择,都比较简约,符合业主两人审美的要求,简单实用才是硬道理。
茶几根据需要可以一分二,二分三,方便灵活,这种随性,就像结束一天紧张的职场工作后,看一场轻松愉快的电影般必不可少。
女主人配备了立体声环绕式音响,及投影,男主人选购了进口品牌路由,畅游无阻的视听体验即将开始。
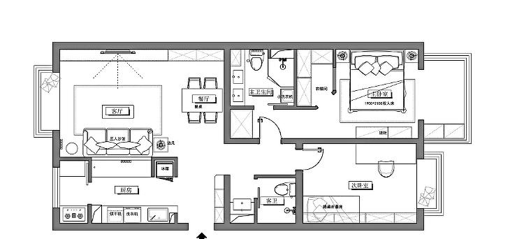
客厅与厨房玄关过梁以下这部分墙体打通,这种改造目的就是为了增强空间之间的交互性,而这种交互性就在于,你一边准备饭菜,一边看着我帮你选择你喜欢的影视类节目~~
那么问题来了,开放式厨房油烟怎么办?我早就替你想到了,燃气炉灶放置在厨房小阳台区域,做一面玻璃推拉门,好看又实用,我把这种设计叫做“旱火分离”。
墙面打通后,吧台就顺势而生,台面下做薄柜收纳,吃个便餐可以在这,另外,在客厅看电视坐沙发时间长了,可以在这坐,换下高度。
从厨房看向玄关
入户门看向玄关餐厅,很明显,这个户型是典型的“动静分离”,左侧是客厅,厨房,也就是活动区,右侧是卧室,书房,也就是休息区。
线条简洁的原木四人餐桌,暖白光吊灯,绿植点缀,就餐氛围立马提升一个档。
从餐厅看向客厅。
主卧空间主要以浅色为主,墙面没有做过多的装饰,女主人也正在计划添置一些墙饰和挂画。
床头用胡桃木墙板,做了一条灯带,与墙面做了一个层次,立马别致了起来。
一只猫的异想世界,我的房间很大,有沙发可以小憩,主人可以办公,简单又很实用。
有时主人在旁边办公,我就这样默默的陪着她。
干湿分离,碎花砖与水泥砖还是百砖都是绝配。
而且水泥砖的好处除了自带的高级质感外,质地不是那么细致,这样用在卫生间不至于地面湿滑。
客服
消息
收藏
下载
最近



























