查看完整案例


收藏

下载
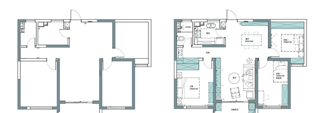
本案户型方正,动线明朗,在规划收纳的同时,只改动了过道的墙体,给主卧和干区增加了储物空间。整体以黑白灰为主,用色彩、线条、光影和质感丰富室内的层次,也让立体感诠释小空间的大气简约。
玄关改造前后对比
餐厅改造前后对比
客厅改造前后对比
过道改造前后对比
过道改造前后对比
主卧改造前后对比
家居风格的另一种说法,是空间的个性,居住者的性格和生活态度,都会反映在这个空间流露出的气质中。
电视背景墙,充足的储物空间。哑光的黑、纯粹的白、柔和的灰,时空中流动着舒缓的旋律。
崇尚自然的人,取木质的细腻、皮质的柔软,融入生活之情调。
舍弃那些繁琐的装饰,自在随性。
整面的落地窗承接了室外的光线,当夕阳渐移,风来,绿叶与光影律动。在难得清凉的夏日捧一本书倚坐在一旁,默默品味这静谧清新,让时光触碰心底最柔软的角落。
八月,夏更深。在外忍受夏季的炎热、强光和噪音,回到家里当然要给身心放假。浅灰色搭配灯带和点光源,室内环境自带柔光效果,让疲惫了一天的眼睛得到放松。而沉静的黑色在哑光的效果下,也添了几分柔和。家,隐去盛夏的烦忧。
开放和封闭的柜体,一部分可规划为玄关收纳,另一部分可作为餐边柜使用。东侧的墙体也设计成同款造型,老人房的房门隐形处理。这些细节亮点与白色柜体融合,提升整体空间的明亮度与纯粹感。跳跃的橘色,为餐厅注入了年轻的活力。
丰盈的法兰绒,格纹排列下的粉橘色更加富于变化,如墙上的画一般灿若霞光。
一半明媚一半甜蜜,更似女主人的温柔与美好。
在私人空间绽放的浪漫主义,赋予夏天另一种定义。
床尾,收纳的合理设计和布局也同样重要。台面具备梳妆台的功能,可以摆放护肤及各种饰品;而作为支撑的细钢脚抽屉柜,则能容纳更多的日常所需,保持卧室的整洁美观。
在整体雅灰色的素净氛围里,用原木、橘黄、鹅黄、米白铺陈温馨暖调的休憩空间。
游走在这座城市的月亮啊,当温润的夏夜倾洒入室,时光如画中奔驰向前的骏马,而你不必叹息,因为身边有最亲爱的家人陪伴。
想陪孩子一起渡过那稍纵即逝的童年时光,看着他的善良、好奇、偶而的小淘气......
初为父母的人想记录关于孩子的每一刻,对于环境的要求便更加严格。天然无刺激的用材,打造健康安全的玩耍和活动区域。
客服
消息
收藏
下载
最近


























