查看完整案例


收藏

下载
“生活是种律动,
须有光有影,有左有右,有晴有雨,
滋味就含在这变而不猛的曲折里。”
姑苏是一个充满人情味、生活感、情怀和深厚历史的城市。KOOMARK为绿都苏和雅集下叠墅所做的软装设计,用现代的手法完美平衡空间中传统与当代的关系,营造出难得的雅致情趣。
本案伊始,KOOMARK通过分析开发商对于项目的营销定位与硬装单位的设计理念,确定了软装设计对于东方传统意境的传承。但我们认为,如果在设计中一味强调传统的呈现,并不符合时代趋势。重要的是内在的精神,而非外在的形式。因此我们打散、重组东方传统文化里的经典符号,通过对家具材质、形态的管理,对陈设选品的元素提炼,让具象转换为抽象又回归到具象,最终塑造出一个传统文化内核与现代设计完美融合的居所。乍看之下,本案现代感十足,而细节局部运用得当的中式元素,让东方气蕴“不见时,却处处见;不念时,而处处念”。
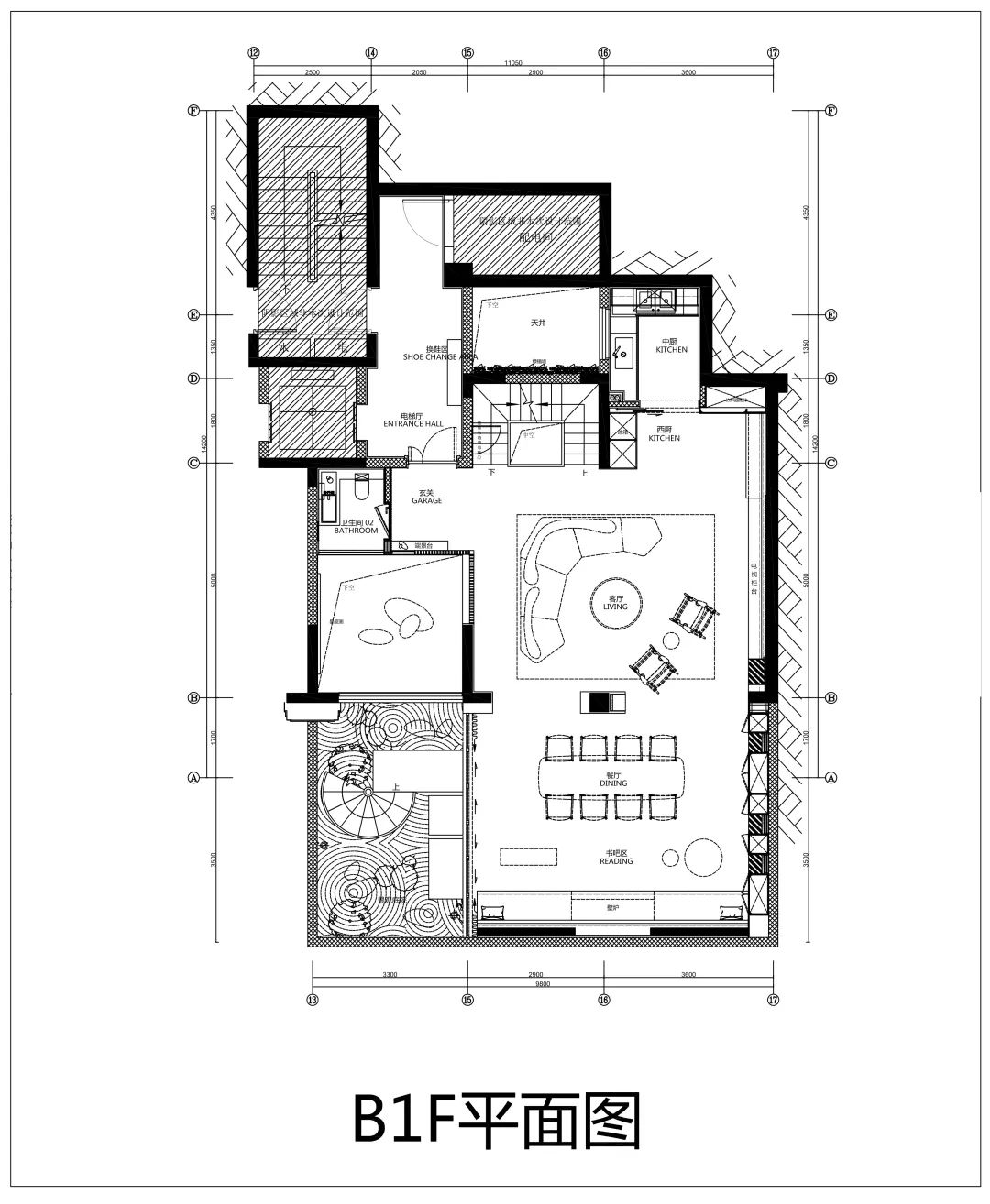
负一层
玄关
客厅
重要的是内在的精神,而非外在的形式。我们在饰品中加入一些民俗或传统的小物件,通过冲突感形成艺术性。
餐厅
天光熠熠,正是读书时。
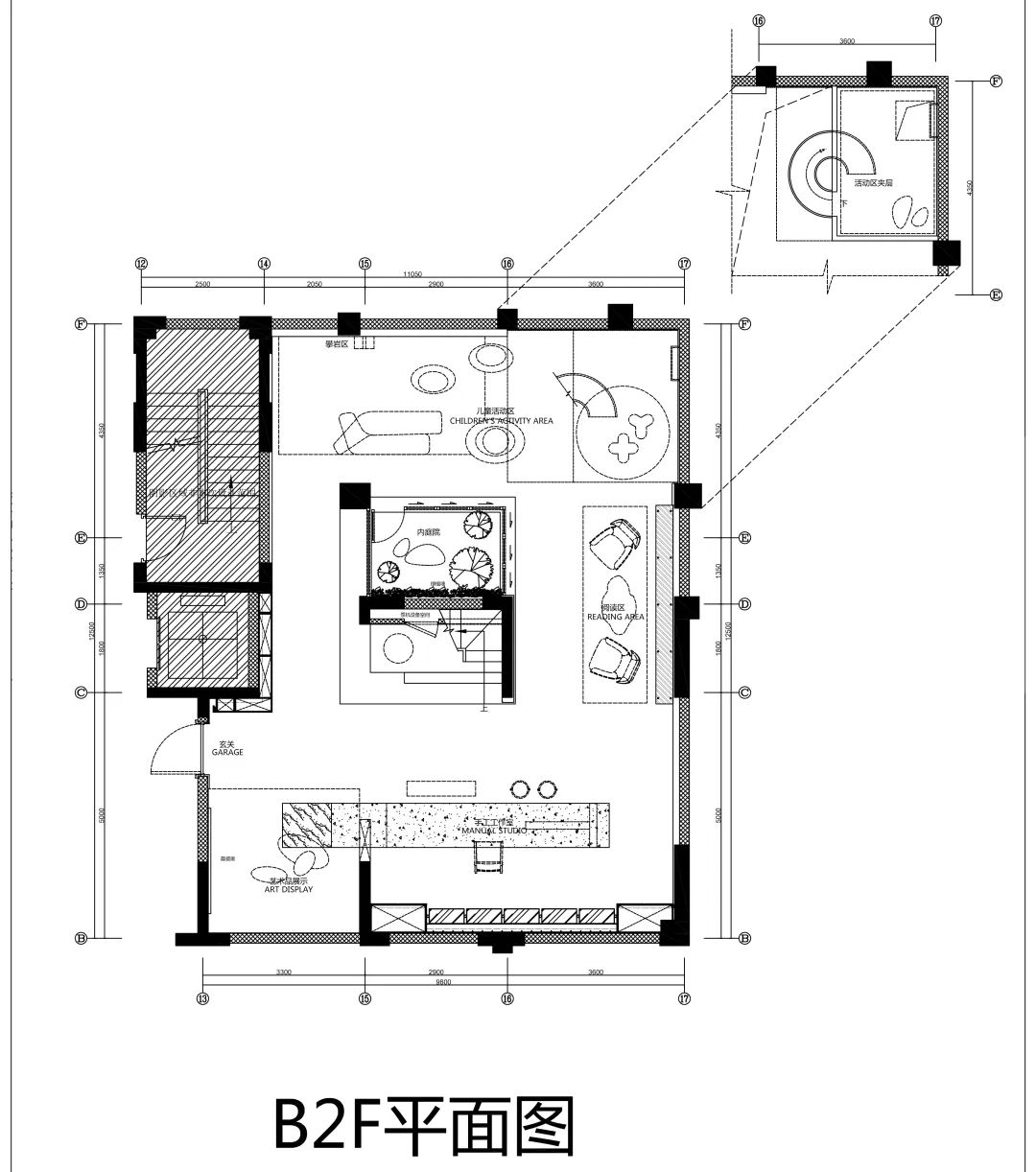
负二层
艺术品展示区
立面装置选用材料为蓝色渐变晶瓷,将其悬挂于天花,呈现湖水般宁静的状态。
工作室
工作区展陈着贝律铭先生的著名建筑模型,以此来致敬先生在自己的故乡所留下的卓越贡献。
插花展示及阅读区
儿童活动区
楼梯端景
提取传统枯山水的文化理念,将其提炼外形重组,用现代的材质把形态重新呈现。新与旧的材质对比融入空间,创造一个传统又当代理念相互融合的微观园林枯山水。
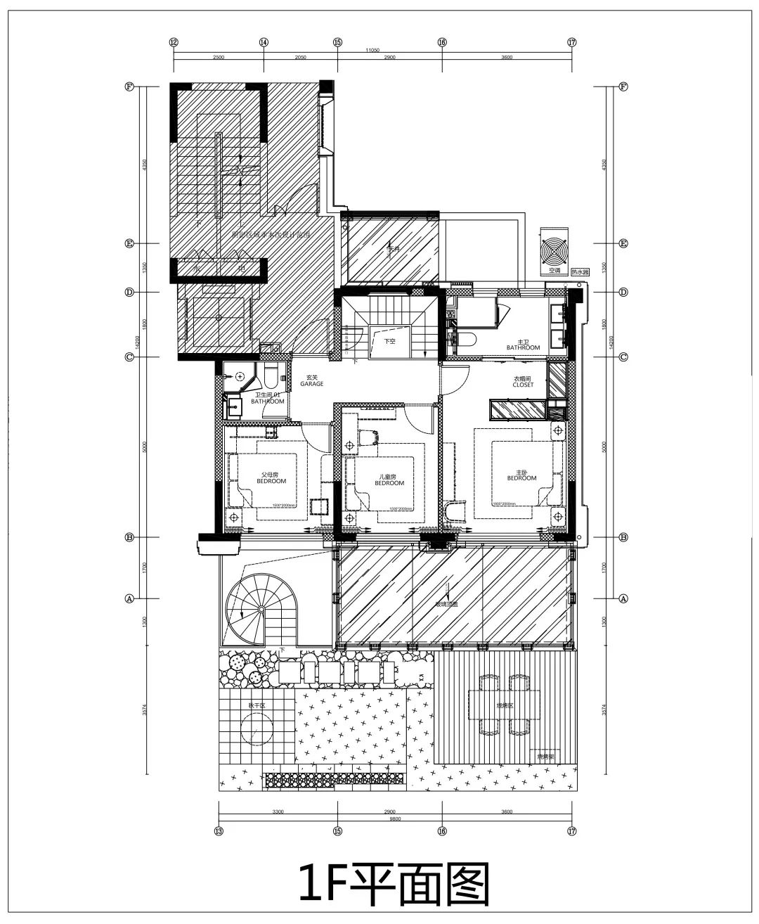
首层
主卧
主卧在色彩上的处理高雅单纯,克制的灰是整个空间的平衡点,任阳光入室玩耍而不张扬,平和温馨。挂画的选取运用了天空云朵的造型,云朵洁白而柔软,再结合编制的手艺,散发着独特的吸引力,有趣而温暖,体现空间的艺术性和多元素。
长辈房
“一案陈一物”藏着对地域的“注脚”——苏绣的历史可追溯到2600多年前的春秋时代。我们提取苏绣的元素注入挂画中,传承的精气神可窥一二。
儿童房
平面布置图
项目名称:苏州绿都苏和雅集下叠样板间
项目地点:江苏省苏州市
甲方团队:付超、沈璇、廖娟、武霞
软装单位:广州库玛室内装饰设计有限公司
软装设计:宋浩贤、方顺根、陈育君
项目面积:313.3 ㎡
竣工时间:2020年10月
摄影团队:一千度视觉
绿都苏和雅集别墅项目参与团队
KOOMARK设计总监 / 宋浩贤Golo Sung
宋浩贤善于在设计中融入原创概念和解构思维,主笔完成众多精彩项目,包括杭州阳光城上林湖檀宫别墅、阳光城龙岩花漾江山别墅、佛山弘阳时光天樾上叠墅等。其主案项目曾获2018 APDC AWARDS 亚太室内设计精英邀请赛大奖、第九、十届艾特奖、第四届REARD全球地产设计大奖、2020金外滩最佳样板间奖,2020第十五届金盘奖11项大奖。
KOOMARK是一个崇尚去风格化的设计品牌,创建于2009年,致力于为地产行业提供软装设计、艺术品研发及制造的专业服务。「独立于风格之外」一直以来,KOOMARK秉持着这样的设计理念,以人为本提升空间的体验。
作为服务于地产行业的设计品牌,KOOMARK 十年见证软装行业发展,从无到有参与行业标准建立,立足华南生产制作基地优势,项目遍及中国20个省,50个城市,合作伙伴均为国内领先开发商。我们深谙设计工作在销售助力、功能界定和美学情怀方面的重要性,不仅提出设计解决方案,同时进一步关注客户的潜层需求,致力于营销理念的有效传达,为其提供富有远见的策略性服务。
客服
消息
收藏
下载
最近










































