查看完整案例


收藏

下载
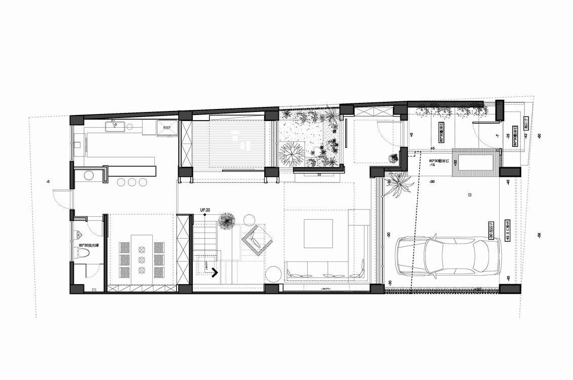
自地自建的透天别墅,採抿石子、铁件与瓷砖构筑简约俐落的现代风貌。
一片日光绿意穿越窗櫺映入眼帘。
夏川设计把握重点实木与石材元素,在玻璃介质穿透映掩中,光体于公共空间内窜流,进而串联场域互动性。
长达十四尺的狭长屋,在生气蓬勃的日景照耀中,与中式线条家具共构清朗雅韵的现代禅生活。
佐以天井绿意相伴的和室,独踞一方自在惬意。
设计师加高吧檯高度,遮挡后方庞杂的厨具视线。
至顶的木皮与白色烤漆门片后方,规划大容量的置物空间。
採铁件、实木木皮与茶玻构筑的三转折楼梯,形构一步一景的行进动线。
三大面採以木作框构的喷砂玻璃墙面,分享日光明亮梯间。
卧房接续一楼深色调规划,呈现静定沉稳的中式氛围。
从一楼向上延展的南方松线条修饰临墙风景,而採耐用紫檀木实木板的地坪规划,无惧于海岛型气候不会有龟裂问题。
客服
消息
收藏
下载
最近

















