查看完整案例


收藏

下载
序 / Prologue
"苍翠峭拔" "云遮雾绕"
邛崃古称临邛,这座有着2300多年历史底蕴的古城犹如镶嵌在成都西部版图上的一颗明珠,熠熠生辉。古来邛州长据西川文脉之龙头,地灵人杰,文风盛兴。荣幸之至,赤橙设计于2019年再度担纲椒兰山房二期民宿方案(建筑、景观、室内产品一体)创作。
司马相如《子虚赋》有云:“其北则有阴林,桂椒木兰,蘖离朱杨,樝梨梬栗,橘柚芬芳”。桂椒、木兰都是古代的高级香料,清新雅致。
椒兰山房正是取椒之清新 ,兰之高洁。
壹丨One
勿忘在莒
椒兰山房项目二期9栋建筑拔地而起。为保持当地川西民居的建筑韵味。综合场地现况,为减少基地大量开挖对周边土壤环境的影响,故保留了原地形的高差,将四栋老建筑改造翻新,新建五栋单体建筑。其中四栋改造的建筑,把原始墙体及木结构进行了修复和结构加强。在宁静的环境中重新构筑一栋庭院相间、内外相连的复合建筑群。
Nine buildings have been built in the second phase of Jiaolan Shanfang project. In order to maintain the architectural charm of the local residential buildings in Western Sichuan, According to the current situation of the site, in order to reduce the impact of a large number of excavation on the surrounding soil environment, the elevation difference of the original terrain is retained, four old buildings are renovated and five new single buildings are built. Among them, the original wall and wood structure were repaired and strengthened in four reconstructed buildings. In a quiet environment, a compound building complex with alternate courtyards and connected inside and outside is rebuilt.
建筑生成过程
纯粹·宁静·自然
贰丨Two“疏密得宜、曲折尽致、眼前有景”是童寓先生对园林的阐释,更是古人造园的一种“情趣”。动线与景观相结合,营造出了多层次、多角度及多维度的体验。
总平动线分析
客房-建筑
Guest-room-Building
叁丨Three"传统"—"新生" "解构"—"重组"新建的单体建筑中,从"三间两头转"的川西民居结构中,剥离出独立的体块,院落。再结合使用以穿斗形式演化落地窗框形态,使建筑展开面最大程度的接受黄金日照时间。
接待厅
Reception hall
肆丨Four
和光同尘,与时舒卷
“大有,光照万物。”建筑入口朝南,万物受光。当和煦的光线在空间中诗意地漫步,林深见鹿,海蓝见鲸,梦醒现光。
采用大尺度透明开放式立面,模糊了建筑、室内与环境的界限。用光线参与空间叙事,当时间推移,随着太阳方位的变化,光也随之移动。
“曲水流觞”分析图
接待厅—2F
Reception hall-2F
伍丨Five
“如梦似幻”建筑大面积的玻璃幕墙协同空间内外,将“山林、茶园、竹海”的景致毫无遮挡地纳进,令建筑视野蔚为壮观。
餐厅-建筑
Restaurant-Building
建筑“一角”
"光影交融"
餐厅建筑分析图
“光影”的流动
餐厅Restaurant
亲子餐厅
Parent-child Restaurant
亲子餐厅(夹层游戏区)
Parent-child Restaurant Game
餐厅包房
Private room in a restaurant
套房-客厅
Suite - Living room
廊道Aisle
"景"触手可及
客房建筑2分析图
"童心所向"
亲子游戏区1分析图
亲子房
Parent-child-Room
引入天光的空间,让人感受到大自然的礼遇。清阳曜灵,和风容与。
亲子游戏区2分析图
亲子房建筑分析图
"融洽无间"
复式客房
Duplex suite
客房建筑1分析图
客房建筑剖面图
家庭套房
Family Room
花园客房
Queen Room
“时空隧道”(屋顶平台通道)
陆丨Six
如切如磋,如琢如磨
但凡用心,必然平淡中见惊奇。
基于建筑的可持续性与环保性,拉近人与空间的距离,让材质本身去呼吸。设计师耗费大量时间与供应商协作研发用砂石与当地特殊石子混合的方式制作新型椒墙涂料。耐腐耐潮,温润自然,融入于本土环境,共生共息。
柒丨Seven
朝云四集,日夕布散
抽离繁琐,以最朴素的设计语言赋予颓唐的躯体新生机。朝云四集,日夕布散,蛰伏于尘世间的灵魂,若能短暂的逃离,也是一种福分。
项目航拍
Aerial Photography
基地范围及原始环境航拍
Project base
基地原始环境
钢结构屋面
钢檩条屋顶加固
砌体建造过程
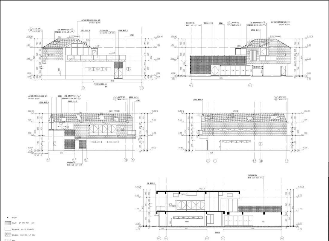
部分技术图纸
PLAN丨建筑1F平面图
PLAN丨建筑2F平面图
PLAN丨项目总平图
客服
消息
收藏
下载
最近




































































