查看完整案例


收藏

下载
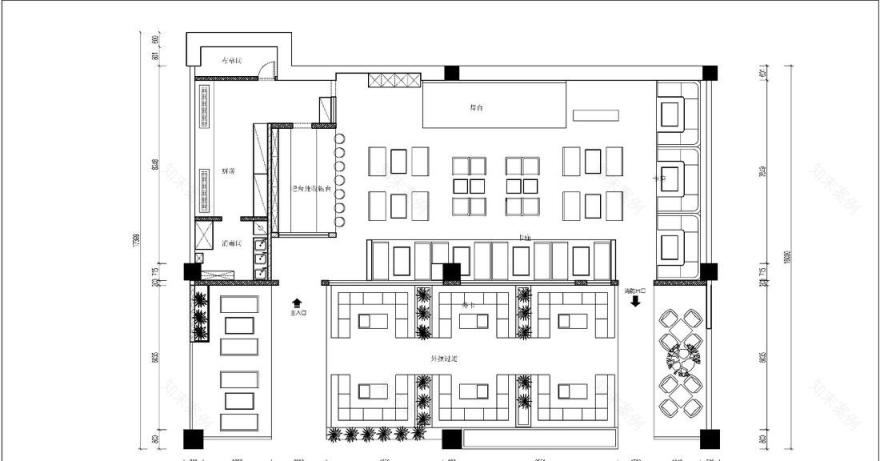
总厂22米宽17米的一个酒吧整体弧形内部和外部呈现一个三角不规则的布局
线总是能丰富空间也能唤醒沉闷的空间
细想之下直线弧线的合理相互穿插总一定会得到有形的产物
为了充分利用场地的进深,我们将室内空间部分舍去一部分面积,让整个空间可以更好的布局使整个空间形成丰富的层次。
入口处右侧为吧台区域,整个空间依托酒架形成拱形,拱的一侧为调酒吧台及吧台散座,另一侧为啤酒选酒区。
吧台区往里走则是完全开放的散座区域,左侧靠墙的长卡座、中间散布的圆桌椅及右侧的沙发座构成了这一区域。正面墙上大尺度的LED屏幕和侧面酒吧logo,以及左上角的树干,形成藤蔓的图案。
卡间朝后面设置有醒目的内发光半圆形有机玻璃,边缘依托灯光形成室内空间中最具唤醒精神性的视觉元素。
两个弧形的发光体相互的依托对照。修饰了原本死板的冰冷方形空间
熊猫的空间是由特定的物件语言、秩序、功能组成,用“光线”的变化营造出不同层次的特性以及空间的时间过度。
除了主入口外,外立面还增加了方形窗口,由此方便进出外摆区域,这种雕塑性的几何形式超越了功能;夹层悬挑玻璃盒包间与环境发生碰撞,创建了一个互锁的体积和空隙的跳跃式样,在空间中相互补充。
我们看到的“剪影”其实就是那光线下的产物,其实真正让我们的感官世界所感受到的不过是那墙面上的影子。
通过“人造线光”及智能灯光调控使空间物质产生视觉变换,从而达到奇妙的氛围,将我们带入梦幻的、理想的王国。
客服
消息
收藏
下载
最近













































