查看完整案例


收藏

下载
企业背景:
东莞市容辰制罐有限公司是一家专业的马口铁杂罐生产厂家,地处中国制造业中心东莞市凤岗镇,毗邻深圳、香港,交通便利,为许多知名品牌生产过铁罐,生产能力可达每年5000万罐。
马口铁又名镀锡铁,是电镀锡薄钢板的俗称。由于其良好的密封性、保藏性、避光性、坚固性和特有的金属装饰魅力,决定了其在包装容器业内具有广泛的涵盖面,是国际上通用的包装品种。
成为成品之前,马口铁罐有着工业机械的生产过程:马口铁皮被印刷后,经过裁剪、模具冲压塑形后,成为我们日常见到的铁罐:
▽未经印刷的马口铁罐:
▽模具压制铁皮的过程,利用冲压机将一块平板冲进模具中,从而使金属平板变成铁罐:
▽锡镀圆柱——是马口铁皮被展开的初始放置状态:
2016年我们接到容辰制罐委托,为其设计其位于东莞的企业总部。参观容辰的工厂时,厚重的工业感、自动化生产水平以及对产品的精益求精,工业生产和日常用品认知重叠的联系与冲突感都深深震撼了我们。
而站在大众的角度,材料制造似乎是原始、重复及冰冷的企业。如何去向参观者及员工述说容辰的文化与价值,成为我们在这次设计任务中主要思考的问题。
总部为一栋三层楼的建筑,一楼包括接待大厅及产品展厅、二三楼则是办公及会所功能。
▽由于并非规整的空间,每一层楼角度的偏差为空间的规划带来难点:
▽建筑外观:
▽建筑入口:
传统制造业企业以展示产品为主,参观者对于产品成品背后的工艺精度、技术含量及体量的理解常常是有限的。而适应时代趋势,参观者的体验轴线应该更加多维。我们试图以有感染力的艺术手法,重构制造业企业的展厅,也重构传统制造业与大众之间的沟通方式。
一、原材 | 初心
制罐是高压压制塑形,由拙到精的过程,企业也是如此。容辰深耕行业,投入大量精力锻造工艺生产高标准,秉初心不断精益求精。
我们将参观的动线拉长,聚焦在参观者接触企业的第一个空间。在招待大厅放置了两个镀锡圆柱——马口铁罐的原材,明示企业属性,亦像当代艺术品一样自信地展示企业其根源。
▽ 艺术装置手稿:
「五行金生水」。在过道大厅,马口铁展开后的薄片被悬挂在天花,铁的硬度转化为水波的温柔,以流畅的形态引导来宾。
▽ 展厅天花:
二、产品 | 追求
展厅的墙面,是以马口铁铸上刻度纹理,堆砌而成的金色砖墙。统一的安装角度与灯光配合,阵列使空间呈现着庄严,让到访者进入空间,正视这一企业的文化与规模;铁砖层叠排布,折射出金色的光芒,寓意企业从原材料到产品不断打磨,对品质追求的闪光。
▽ 金色砖墙:
三、“LOVE” | 热忱
进入产品展厅前,我们放置了一个「LOVE」的雕塑,标志着企业的对行业的热忱,亦凸显出专业。雕塑映射出砖墙的局部闪光,寓意企业的热情与产品品质相互成就、相映成辉。
▽产品展厅:
▽二楼办公区
▽三楼会所(效果图):
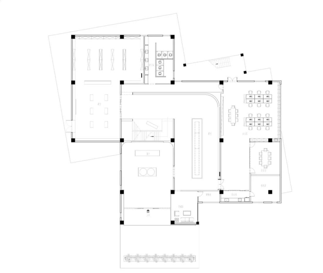
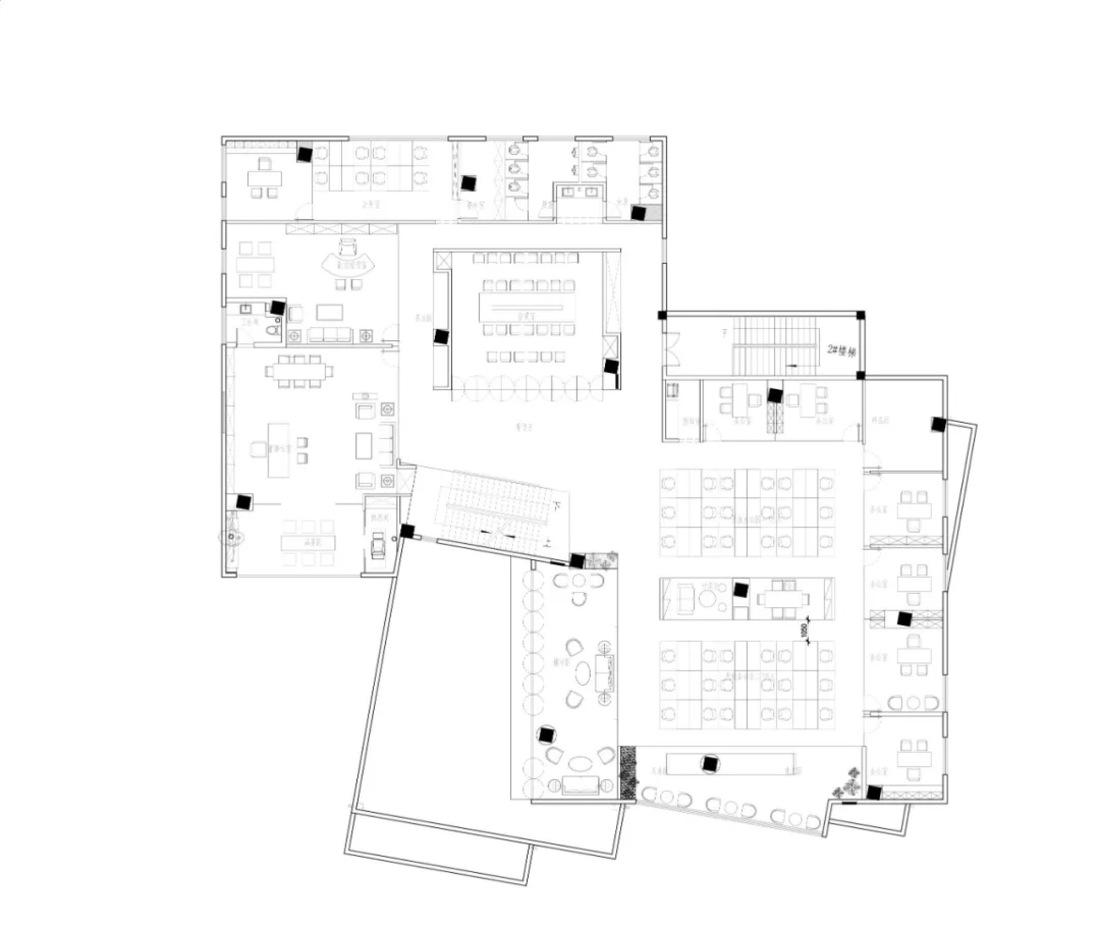
▽平面图
1F:
2F:
3F:
项目名称:容辰制罐展厅及办公室设计
项目类型:办公室设计
地址:东莞凤岗镇
设计时间:2016年8月
竣工时间:2019年8月
项目规模:2000m2
创意指导:高少康
设计总监:郑锐洲
设计师:徐翠梅
艺术装置:卢永生(KART)
项目撰文:刘沛
客服
消息
收藏
下载
最近



















































