查看完整案例


收藏

下载
这是设计本上直接预约了我们的项目,甲方是位90后女生,到我们公司简单的交流后很快就签订了设计合同。西湖云谷位于杭州西湖畔,目的是作为符合年轻人审美的汉服租售体验馆
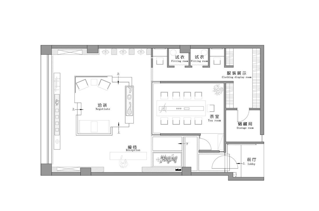
我们通过对项目的深入解读,吸取了东方园林的特点,打破接待区放在入口处的传统思路,重新建立使用者的行走逻辑。塑造出一条曲折通幽的小径,增加了进入场地的仪式感。接待和交流洽谈就自然的放在了后场区,既最大化的利用了自然光线也给人一种柳暗花明的感受
入口前区、接待交流区、茶室进行了两步的抬高,丰富了空间关系和体验感。
接待交流区 引用了中庭的概念,顶面用灯光拉膜模拟天光的感觉,地面抬高踏步、围栏和景观台形成相互穿插的关系。白色的漆面和胡桃色家具产生强烈的对比,为更换好汉服的客户营造出独特的拍照场景。茶室运用悬空的设计手法,结合灯光的效果如同院子里面坐落着一处带有落地窗的房间
整个空间的区域之间都没有完全的封闭,它们之间可以交流与对话,仿佛是可以流动的。极简的手法和纯净的颜色融合中国传统的元素,既契合此项目的特点又能满足现代人的审美。
细节上,在容易被忽视的地面高低转折之处内嵌了灯光条,提醒行人注意,而不是贴上“注意脚下”的字贴。设计了对应入口景观的墙面造型只为更好的隐藏电箱门。功能和美感可以两者兼顾,只是需要我们设计者更用心一点。
客服
消息
收藏
下载
最近



































