查看完整案例

收藏

下载

翻译
Architects:Contexture
Area :470 m²
Year :2021
Photographs :Christopher Frederick Jones
Manufacturers : Big Ass Fans, Breezway, Jetmaster, Lysaght, Claypave, Crimsafe, G James, Heka Hoods, Tesla, TrendstoneBig Ass Fans
Lead Architects :Anna Baranoff, Leighton Thomas
Head Contractor :Rynders Constructions Pty Ltd
Town Planner :Brisbane Town Planning
Structural Engineer :Westera Partners Pty Ltd
Energy Assessment :Cairns Energy & Building Consultants Pty Ltd
Site Survey :Kevin Holt Consulting
Bushfire Assessment : Eldon Bottcher Architect Pty Ltd
Swimming Pool : Performance Pools
City : Ashgrove
Country : Australia
Our Resilient House, designed by the husband+wife Architect+Client team for their own family, faces north opposite Enoggera Creek and a busy pedestrian bike pathway in Ashgrove. With outlooks of lush creek foliage, the existing post-war house was reinvented to encourage resilience through sustainability, enacting opportunistic social engagement, respecting the surrounding context, and resisting flood and bushfire threats.
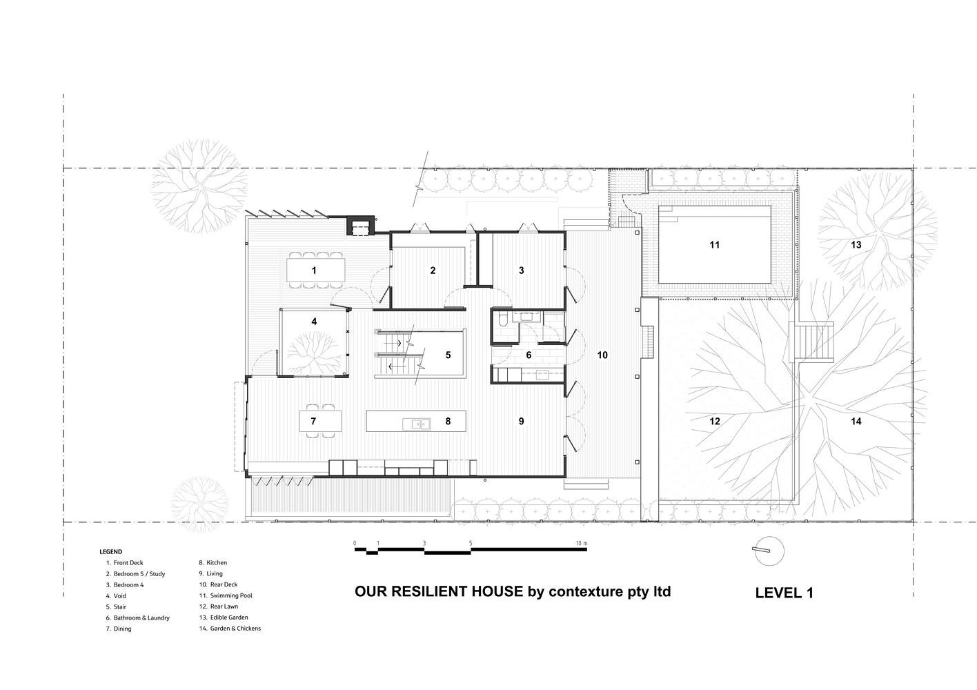
Following the 2011 floods, the Brisbane City Plan 2014 enhanced flood overlays to creek-facing properties. Our Resilient House was the first renovation in the street to respond, requiring elevated minimum habitable floor levels. Inertia Engineering modeled the flood risk and verified the robust undercroft design which enabled floodwater to sweep and safely drain away without burdening neighboring sites. This undercroft provides respite from the sun for play and enables occupants to interact with the passing parade on the public bikeway.
Brisbane Town Planning identified an exemption opportunity to include a secure weather-tight 25sqm room on the ground floor (below the BCC Minimum Habitable Floor Level), constructed with flood resilient materials: concrete floor, core filled blockwork, and horizontally laid FC sheeting. The design response on a slopping site was to program upwards, via a prominent central stair connecting: the ground level entry to the street; the first level of shared common areas to the back yard; and the second level retreating to private zones in a spotted-gum-clad-bed-box, designed untreated to age and grey amongst the jacaranda canopies. Stair placement determines the public and private programs and presents the occupants to the world on the descent.
Natural ventilation is promoted through sliding and bi-fold feature windows and louvers maximizing the airflow, with stack effect from the ground through to the second level roof garden - used to reduce heat using plants, minimize reflectivity, while gaining additional space for edible gardens. Refer to Sustainability Statement for further description. The site includes a high-hazard fire area overlay and is proximal to QFES identified dangerous fire risks. These issues are addressed in design siting, form, material selection and supported by extensive Crimsafe, gutter guard, battery power backup, and pumps with tank and pool water sources, informed by a site-specific Bushfire Management Report (Eldon Bottcher Architect).
Value was achieved through reduced architectural design fees and direct contribution including sourcing fittings, directly engaging specialist contractors, and building of joinery elements. Early value-management services by local contractors resulted in design and budget efficiencies. Annual savings identified at $3,400 p.a. based on solar, battery, and rainwater harvest. The context was an important consideration, along with giving back to the street through connections socially via displayed activities or retreats as appropriate. Ashgrove’s architectural vernacular is distinctive and valued. These character features influenced key building angles, materials selection, and form through progressive modern interpretation.
Covid lockdowns have been the ultimate test. Our Resilient House encourages public realm interaction with a visual connection to the community, aiding in feeling less isolated. Spaces have been adaptable for WFH, homeschooling, and delightful in-home gatherings. Successful adaptation of our post-war house for a modern living has provided resilience through triumph.
▼项目更多图片
客服
消息
收藏
下载
最近
























