查看完整案例


收藏

下载
项目位于美国德克萨斯州达拉斯市,新酒店的落成成为了该地区城市更新以及三一河公园(Trinity River Park)重新规划的催化剂,将设计爱好者们重新吸引回这个几近落寞的地区,为当地注入了新的活力与生机。该酒店是维珍品牌在美国西南部的第一家酒店,也是继芝加哥、纽约和旧金山之后的第四家酒店。
The new Virgin Hotels Dallas is catalytic in the redevelopment of the Dallas Design District and the nearby Trinity River Park System that has brought design-lovers back into the once-dying district. The Hotel is an inviting premiere for the Virgin brand’s first location in the Southwestern United States, and the fourth location in the United States, following hotels in Chicago, New York, and San Francisco.
▼项目概览,overall of the project © Robert Tsai
毗邻将要建成的7.8英里远足/骑行步道以及三一海滨休闲步道,酒店的设计展现出十足的艺术感性,呼应了达拉斯充满活力与艺术气息的城市风情,同时通过自然的材料与肌理、大量手工工艺元素,以及充满童趣与奇思妙想的空间场景,为本项目赋予了强烈的地方感与独一无二的性格。酒店内遍布令人印象深刻的艺术藏品,总数高达890件,甚至在客房与套房内都能看到艺术品的身影。客人们能够在这充满了雕塑、壁画、媒体影像以及自然艺术品的环境氛围中,开启自己的艺术探索之旅。
Adjacent to the proposed 7.8-mile hike/bike commuter and recreational Trinity Strand Trail, the hotel embraces an artful design sensibility that celebrates Dallas’ vibrant arts and culture scene while creating a strong sense of place through natural textures and materials, hand-crafted elements, and touches of fun and whimsy. Guests can enjoy a mix of unique and site-specific sculptures, murals, mixed media and found objects. The hotel’s impressive art collection includes 890 pieces that can be seen throughout the hotel, including the rooms and suites.
▼酒店主入口,main entrance of Virgin Hotels Dallas © Robert Tsai
▼铝制格栅为建筑罩上了一层美丽的遮阳面纱, Aluminum grilles provide a beautiful shading veil over the building © Robert Tsai
▼立面细部,detail of the facade © Robert Tsai
建筑达到了LEED金级认证标准,外立面采用了手工定制的铝制格栅,这种设计不仅反映出当地特有的创造力,同时为建筑罩上了一层美丽的遮阳面纱,使其背后的户外公共空间在德克萨斯州整个炎热的夏天都保持凉爽舒适。菱形立面纹理的设计依据了适宜的人体尺度,同时菱形元素也是整个项目设计的重要特征之一,呼应了三角形的场地形态。场地周围环绕着人行步道,并连入当地的步道系统。
The LEED Gold building is clad with a custom, handcrafted aluminum latticework that captures the creative energy of the district and provides a beautiful shading veil that allows the outdoor public spaces behind it to remain enjoyable throughout the hot Texas summers. The rhombus facade texture was designed to be relatable to human scale, an important feature of the hotel design where the site is triangular and is surrounded by pedestrian sidewalks that connects to an extensive trail system.
▼俯瞰酒店露台,over-looking the terrace of the hotel © Robert Tsai
▼底层休闲室外露台, leisure outdoor terrace on the ground floor © Robert Tsai
从所有公共区域都可以看到建筑立面的菱形格栅,这层表皮将室内空间包裹起来,成了空间中引人注目的视觉元素。从地面层的穿孔铝板到建筑上部的复合铝板,建筑独特的外立面反射并过滤了光线,营造出富有动感的光影效果。
The aluminum lattice is also visible from all public areas and provides a perceptible outer-shell enclosure for the interior spaces. From the aluminum perforated panels at the ground level to the upper-level aluminum composite panels, the exterior captures the light and animates the building with a sense of motion.
▼从所有公共区域都可以看到建筑立面的菱形格栅,The aluminum lattice is also visible from all public areas © Robert Tsai
▼菱形格栅起到了遮阳效果,保证了室外露台空间的凉爽舒适,The diamond-shaped grille provides shade and keeps the outdoor terrace space cool and comfortable © Robert Tsai
▼停车层,parking floor © Robert Tsai
▼格栅立面营造出有趣的光影效果The grille facade creates interesting light and shadow effects © Robert Tsai
酒店设有17个楼层,共有268间宠物友好型房间,包括两间顶层套房,以及泳池俱乐部、含旗舰餐厅在内的多家餐饮店、酒吧/休息室、公共俱乐部、咖啡书吧等休闲娱乐空间。此外,酒店还为客人们提供了超过15500平方英尺(约1440平方米)的室内和室外活动空间。
The 17-story hotel features 268 pet-friendly rooms, including two penthouse suites, a pool club, and multiple dining and drinking outlets, including its flagship restaurant, bar and lounge, Commons Club and Funny Library Coffee Shop. The hotel also offers over 15,500-square-feet of indoor and outdoor event space.
▼室内空间概览,overall of interior © Robert Tsai
▼从室内看建筑立面,view of the facade from inside © Robert Tsai
▼夜景,night view © Robert Tsai
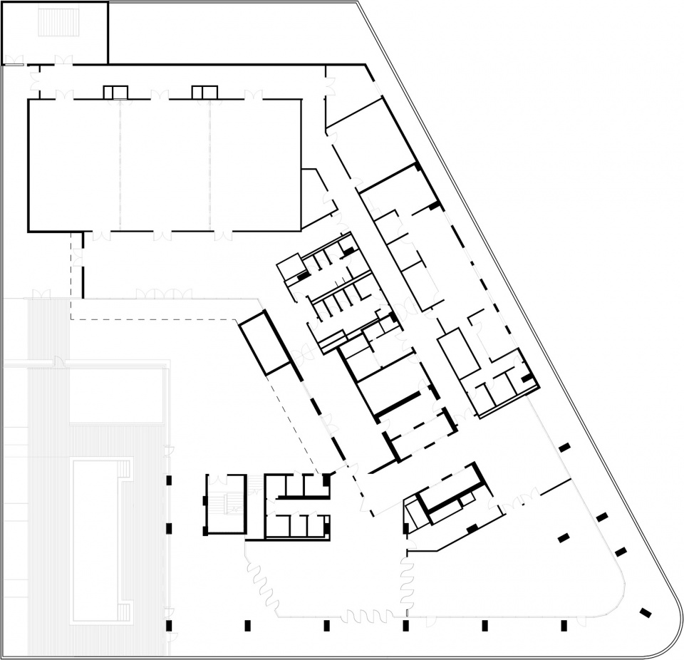
▼底层平面图,ground floor plan © Original Copy
▼设备层平面图,amenities floor plan © Original Copy
▼停车层平面图,parking floor plan © Original Copy
▼标准客房层平面图,typical floor plan © Original Copy
▼入口雨棚平面图,detail drawings of the porte cochere © Original Copy
▼立面细部图纸,detail drawings of the facade © Original Copy
Virgin Hotels Dallas
Client: Virgin Hotels
Location: Dallas, Texas, USA
Design architect/design team: Yen Ong, Hoang Dang, Lauren Cadieux, Josh Allen
Collaborators/consultants: Joel Mozersky Design, Swoon, Ink+Oro Creatives, SWA Group, Paul Helms Design Consultants
Size: 27,000 sqm
Year of completion: 2019
Photographer: Robert Tsai
客服
消息
收藏
下载
最近























