查看完整案例

收藏

下载

翻译
Architects:YUSO
Area :135 m²
Year :2021
Photographs :Roberto D´ambrosio, Roberto D´ambrosio
Lead Architect :José Antonio Salas
Architecture Assistant : L. Esteban García
Electric Design : José Manuel Incer
Structural Design : Juan Carlos Cordero
Budget : Walter Leone
City : San Rafael
Country : Costa Rica
Located in San Jose de Costa Rica, HOUSE OF HOUSES is a project developed by YUSO together with an extraordinary family: a US-American professor and single mother, her daughter, and son —who only live at home a few days per week as they spend the remaining time with their other mother and father—, and their grandfather, who has an active and independent life.
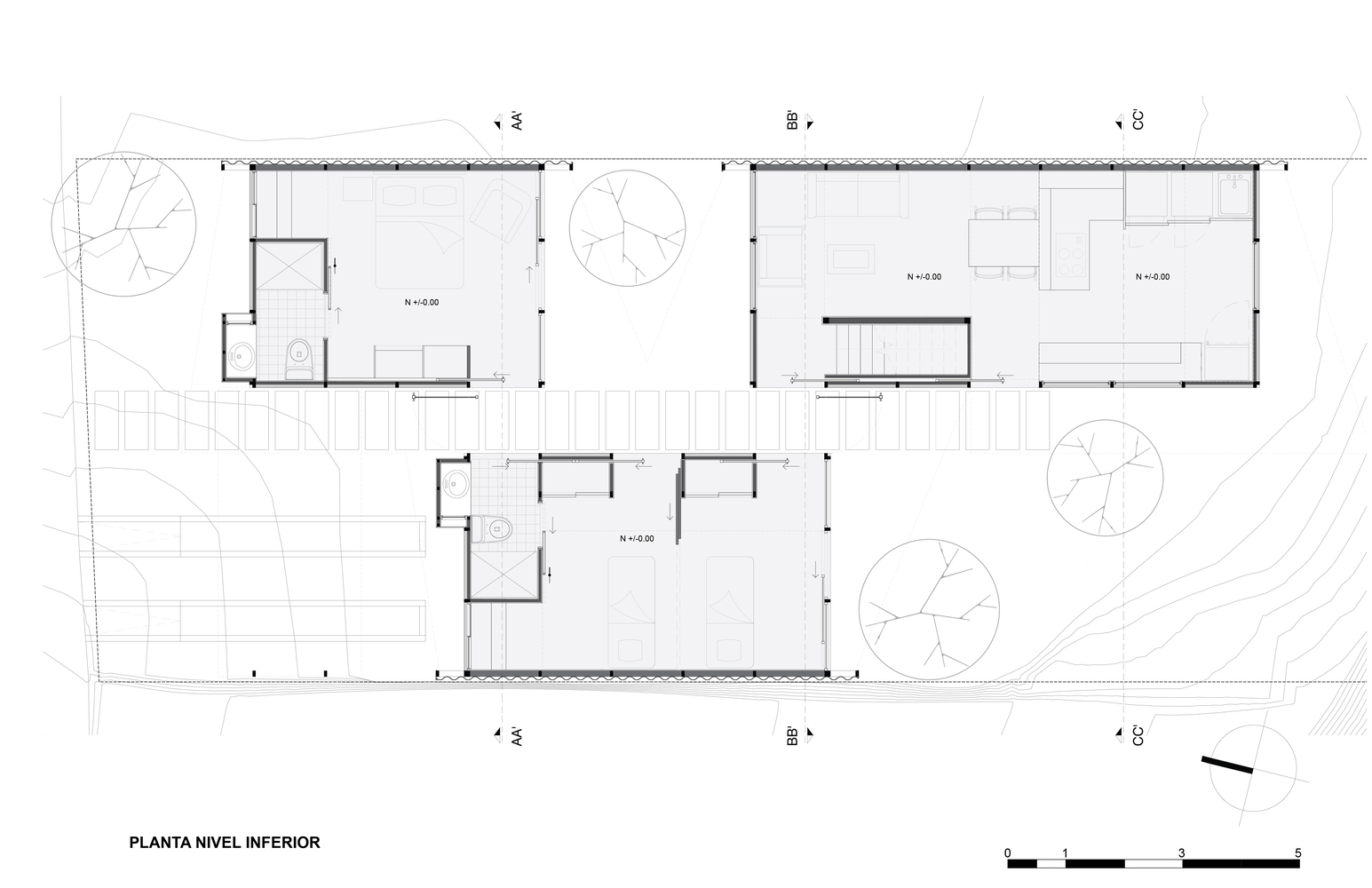
From the offset, the project presented a design challenge; to create a house of 136 m2 of construction, in a lot of 200 m2 of useful area that had to conform to the specific requirements of each of the inhabitants and reaffirm their identities. The first step was to analyze how we could distribute the spaces in a narrow and elongated lot, depending on the space program required. From this, we proposed to have internal patios to be able to ventilate and illuminate all the rooms in the best possible way which, at the same time, served to separate the nuclei for each one of the inhabitants. This way, the project was divided into three units (HOUSES): one for the grandfather, another one for the children, and one for the mother. Each of these units would be clearly differentiated and would have its own identity based on the needs of each inhabitant. In this process, the idea of a House comprised of Houses arose; the overall project remained a single house but sub-divided into three separate units. This design offered each of the inhabitants a clearly differentiated space with both a global and individual identity without losing the connections among family members.
At the materiality level, sustainability was the main objective. The house was modulated according to the commercial sizes of the materials used, which guaranteed that the waste on-site was minimal. Materials that could be recycled or that would easily biodegrade such as wood and bamboo were also implemented for the most part. At a bioclimatic level, the house guarantees comfort to the inhabitants through the design of internal patios that allow the use of passive mitigation strategies. It also has a rainwater collection system that supplies water to the toilets in all three bathrooms and the irrigation system for the green areas.
▼项目更多图片
客服
消息
收藏
下载
最近












































