查看完整案例


收藏

下载
左:Royana Group品牌主理人William Lin 右:水平线设计创始人琚宾
串联过去与未来时间之环 跳脱传统的展厅打造思路,系统家居品牌Royana Group携手设计师琚宾,在上海浦东陆家嘴打造了一处,用艺术和家具构筑的多元生活空间
通过多元的空间尺度、有机的建构手法、恰当的材料属性以及合适的照明方式,我们把当代性、文化性、还有艺术性恰如其分地融入到整个空间之中”,琚宾巧妙地将Royana Group品牌本身所具备的优势与自己长久来的设计思考相结合,便有了这座走在线性时空里的居所。
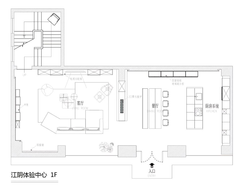
01 一楼 1st Floor
吴蔚《行走·聚焦》
卧室空间则借助印花的混搭,色彩上的个性定调,呈现出更多元的当代青年文化和时髦主张,让经典产品演绎出新的时代面貌。
Cassina iContemporanei当代系列的Boboli餐桌,静伫在二楼视野最为开阔的客厅空间。灵感来源于高级时装的Cassina Dress UP沙发,亦为整体空间营造了时髦的氛围感。
“自始至终Royana Group都秉承着极致的工匠精神,让设计与品质生活完美融合,传递一个优雅的生活理念”,Royana Group主理人William Lin说道。
水平线设计创始人 琚宾
二、ROYANA东莞体验中心
诺雅那 | ROYANA SHOWROOM | 400.270104㎡设计师:赖旭东
现代简约风格的特色
将设计元素、色彩、材料都简化到极致
在客厅装修设计中,制作出宽敞的视觉感是一件极为重要的事,不管空间是大或小,都应该装修出宽敞明亮的感觉,宽敞的感觉会让人的心情欢愉。
William Lin,Royana Group诺雅那中国区总经理
93年生人。从美国留学归国后便从父辈手中接下了Royana中国。商科科班出身的他,在强调“德国工艺”的产品基因外,还更有意识地去经营品牌。
▲ 夜幕下的ROYANA东莞体验中心
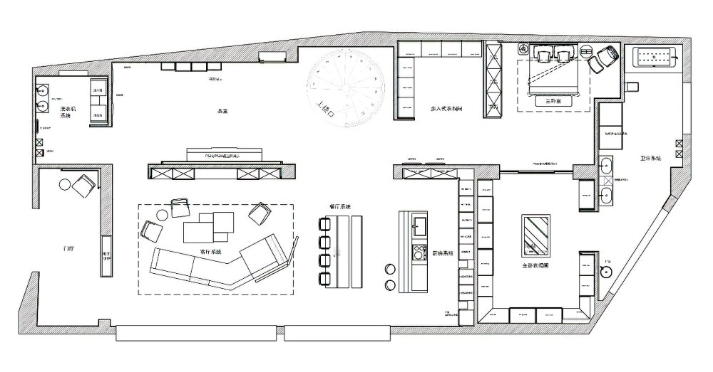
▲ ROYANA东莞体验中心平面图
01 玄关空间 Entrance Space
玄关的存在在进门处形成了一个过渡性的空间,可以为客人指引方向,同时,它还起到了视觉屏障的作用,不至于一开门,整个客厅乃至内室的情形就一览无余,从而保持了主人家生活的私密性与隐蔽性
02 客厅空间 Living Space
在客厅装修设计中,制作出宽敞的视觉感是一件极为重要的事,不管空间是大或小,都应该装修出宽敞明亮的感觉,宽敞的感觉会让人的心情欢愉。
会客区的面积可以相对大一点,这样在会客的时候就不至于让客人感觉到空间狭小。而用餐区相对要靠近厨房的位置,因为这样的话方便就餐和上菜。
03 厨房空间 Kitchen Space
每个厨房空间设计的过程中,空间的设计要因地制宜,巧妙的利用。厨房采光合理,在满足基本的储物空间、操作空间的前提下,还应留有足够的活动空间。 现代厨房已不再是传统意义上的厨房,它的装饰风格应更趋向休闲化、娱乐化。
04 休闲空间 Resting Space
集茶艺、看书、茶点、商务洽谈等为一体的多功能休闲空间,不追求奢华,以简单大方、朴素自然为主,营造一个休闲惬意的休闲空间。
05 衣帽间空间 Cloakroom Space
步入式衣帽间收藏空间大,内部结构分区明确,相比较传统衣柜成为了现代极简设计的首选。Royana在为所有客户设计步入式衣帽间之前,会充分分析业主所放物体的尺寸大小,包括长、体、与重量等。
06 卧室空间 Bedroom Space
一切从功能出发,讲究造型比例适度、空间结构图明确美观,强调外观的明快、简洁。体现了现代生活快节奏、简约和实用,但又富有朝气的生活气息。卧室不仅仅只是提供睡眠空间,还增加了储物、化妆和休闲等功能。这些附加功能的增加让卧室设计变得精益求精。
07 洗衣&卫浴空间 Bathroom Space
作为整个家居空间内最私人最隐秘的地方,卫浴空间往往也是最让人放松的地方,因此舒适感绝对是卫浴装修的第一要义。利用材质与纹理的变化,卫浴间表现出丰富的层次变化,同时色调上的协调一致。
三、ROYANA 江阴.体验中心
诺雅那 | ROYANA SHOWROOM | 420.270104㎡
光影记录时间碰撞出空间的张力
家作为人类的庇护所,为其自由精神提供了栖息之地,让我们辩证看待周围环境、社会关系对人产生的影响,和“世界”的互动打开了一个美好的开端。
让自然光可以直接从百叶窗照射进来,大量的自然光线和空间留白,以材质承载情绪,交叠碰撞出空间的张力,更在视觉上围塑丰富的层次。
4米多挑高的客厅整体视野开阔,大面积的落地玻璃配以挪威进口苔藓绿植墙,增添了进入空间时的仪式感。
现代人背负着诸多社会压力和“历史责任”,不敢多停留和放慢一秒,但很多时候,真正给我们自由和力量的,不仅是娱乐游戏、智能设备等外在慰藉,更多的是一个简单舒适的家。
它开辟了一片旷野天地,能让人漫步其中放松情绪,又能像与老友谈天说笑般自在,人自然而然与记忆中的、未来的事物产生新的交流和联系。
设计师说“自由,是生活的另一种态度,厨房常常会堆满各种东西,我想将它们隐藏起来“,事实上这并非容易之事,因为厨房涉及了太多的功能,有太多的细节要考虑,最终设计师将它们贯穿于整个空间设计之中,让制造料理的过程尤为自由和从容,享受家的温暖。
自然光投射出的光线搭配着Royana吊装壁炉,在这里可以拥有自由舒展的生活,自由进行的工作,自由释放的心情。
开放式衣帽间提供了更为自由的组合方式,它不局限于固定的空间,而且采用了易于打理、装饰性强的菱形皮革纹背板
在圆形镜面和方形镜面的视觉冲击下,营造出静谧、纯粹的氛围,当我们卸下所有防备,静静地躺在浴缸里静下心来将魔方一面一面拼好的时候,舒缓当下的自我和情绪,包容自由之选择和向往,不再为工作,或者其他而分心。
创基金理事 | 水平线设计品牌创始人、首席创意总监
致力于研究中国文化在建筑空间里的运用和创新,以个性化、独特的视觉语言来表达设计理念,以全新的视觉传达来解读中国文化元素。 在作品中,将「当代性」、「文化性」、「艺术性」共溶、共生,以此作为设计语言用于空间表达。从传统与当下的共通、碰撞处,找寻设计的灵感;在艺术与生活的交错、和谐处,追求设计的本质。在历史的记忆碎片与当下思想的结合中,寻找设计文化的精神诉求。
客服
消息
收藏
下载
最近





















































































