查看完整案例


收藏

下载
弗洛伊德认为:“体验是一种瞬间的幻想:是对过去的回忆——对过去曾经实现的东西的追忆;也是对现在的感受——先前储存下来的意象显现;是对未来的期待——瞻望未来、创造美景,通过瞬间幻想来唤回过去的乐境。”
According to Freud, "experience is a kind of instant Fantasy: it is the memory of the past - the recollection of what was realized in the past; it is also the feeling of the present - the manifestation of previously stored images; it is the expectation of the future - looking forward to the future, creating beautiful scenery, and calling back the happy state of the past through instant fantasy."
世间万物,自诞生的一刻便有它独有的灵魂。新旧时代的更迭中,历史与创新血液的碰撞,即是一脉相承的表现也是火花四射的瞬间。
Everything in the world has its unique soul from the moment of birth. In the change of the new and old times, the collision of history and innovation is not only the expression of the same origin, but also the instant of sparks.
建筑反映着一座城市的发展,承载着岁月的底蕴与历史的痕迹,是环境的延续,是文化的归属与新生。
Architecture reflects the development of a city, carries the time and historical traces, is the continuation of the environment, and is the belonging and rebirth of culture.
界首读书会坐落于界首市政府一侧,背依界首市武装部,它的出现,绝不仅仅是城市的脉络,是文化发展的舞台,更是一个城市的心脏!
Jieshou reading club is located on the side of Jieshou municipal government, backed by the Armed Forces Department of Jieshou City. Its emergence is not only the context of the city, but also the stage of cultural development, and also the heart of a city!
我们首先将外观进行设计,重新赋予它新的面貌,反复用模型进行推敲。
First of all, we design the appearance, endow it with a new look, and repeatedly use the model for deliberation.
在这个过程中我们得知,因为建筑的原本条件我们无法进行拆除,只能用加法进行改造。
In this process, we know that because of the original conditions of the building, we cannot demolish it, we can only use addition for reconstruction.
“品质慢城、乐居界首”,一处真正使人阅读与升华的空间。设计师将南北楼进行了建筑与室内的融合,摒弃繁华的装饰。
"Quality slow City, happy to be the first in the world" is a real reading and sublimation space. The designer combines the north and south buildings with the interior, abandoning the prosperous decoration.
利用“光、影”处理建筑外观,半透明绢丝的效果如被风吹动,与大自然相融,坚硬的水泥仿佛在这一瞬间变得柔软,不仅让人想到“谈笑有鸿儒,往来无白丁”,这就是界首市的向往。
The effect of using "light and shadow" to deal with the architectural appearance and translucent silk is like being blown by the wind and blending with nature. The hard cement seems to become soft in this moment. It not only reminds people of "there are great scholars talking and laughing, and there are no white men coming and going". This is the yearning of Jieshou City.
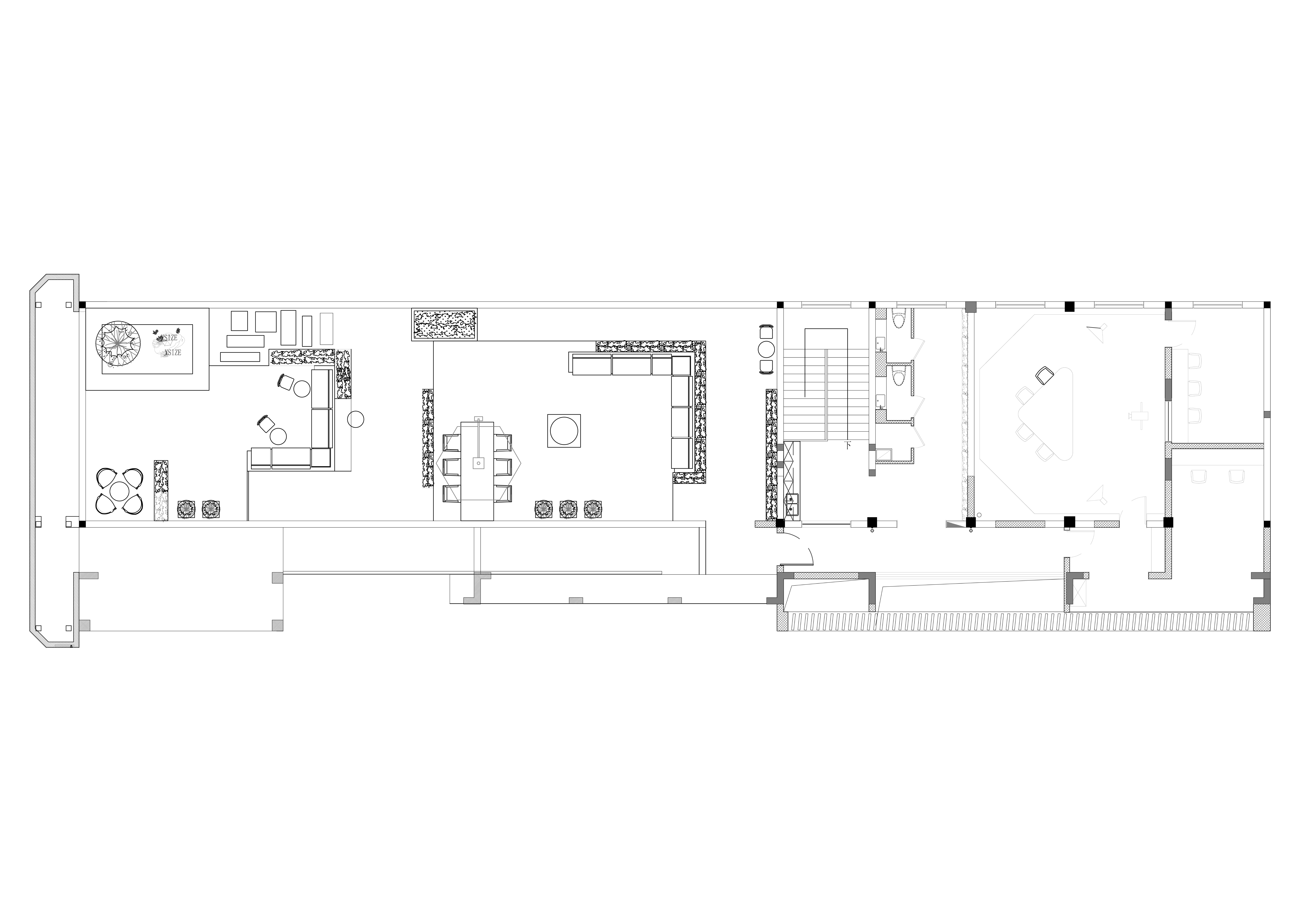
南北两楼从外观设计上来说,一个内敛,一个奔放,但两者之间又相互融合,彼此对话,形与意之间的系列拓扑变形。
From the aspect of appearance design, the north and South floors are introverted and unrestrained, but they are integrated with each other, dialogue with each other, and a series of topological deformation between line formation and meaning.
入口与沿窗面,互相嵌入,看似无形,实则兼容百态。传统文化即使不显山水,却也掷地有声,生生有力。每当夜幕降临,隐约可见的室内光景会让匆匆路过的行人停下脚步一探究竟。
The entrance and along the window are embedded in each other, seemingly invisible, but actually compatible with all kinds of forms. Even if the traditional culture does not show the landscape, it is also loud and powerful. Whenever night falls, the dimly visible indoor scene will make passers-by stop to explore.
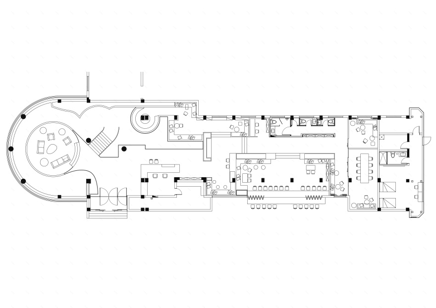
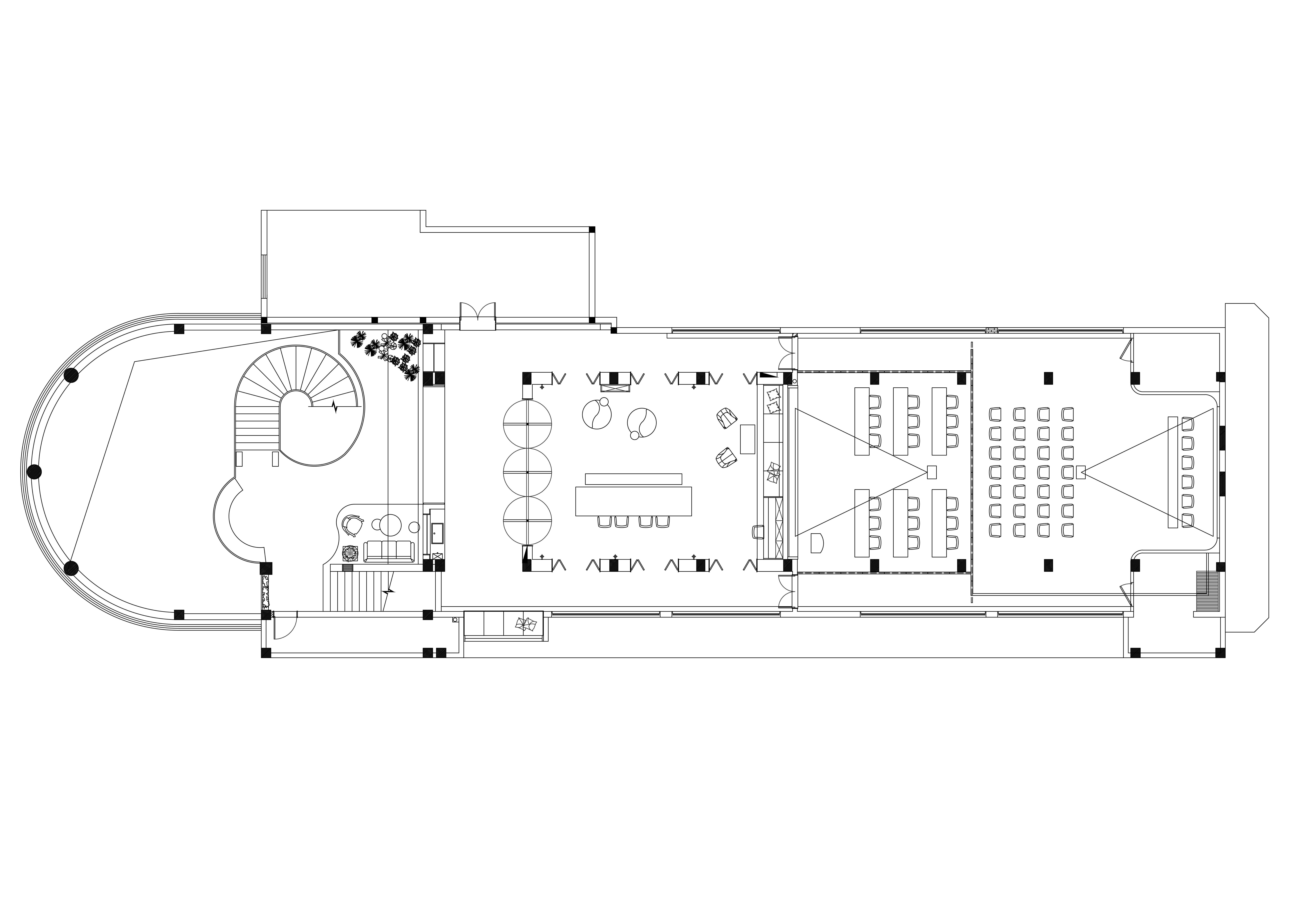
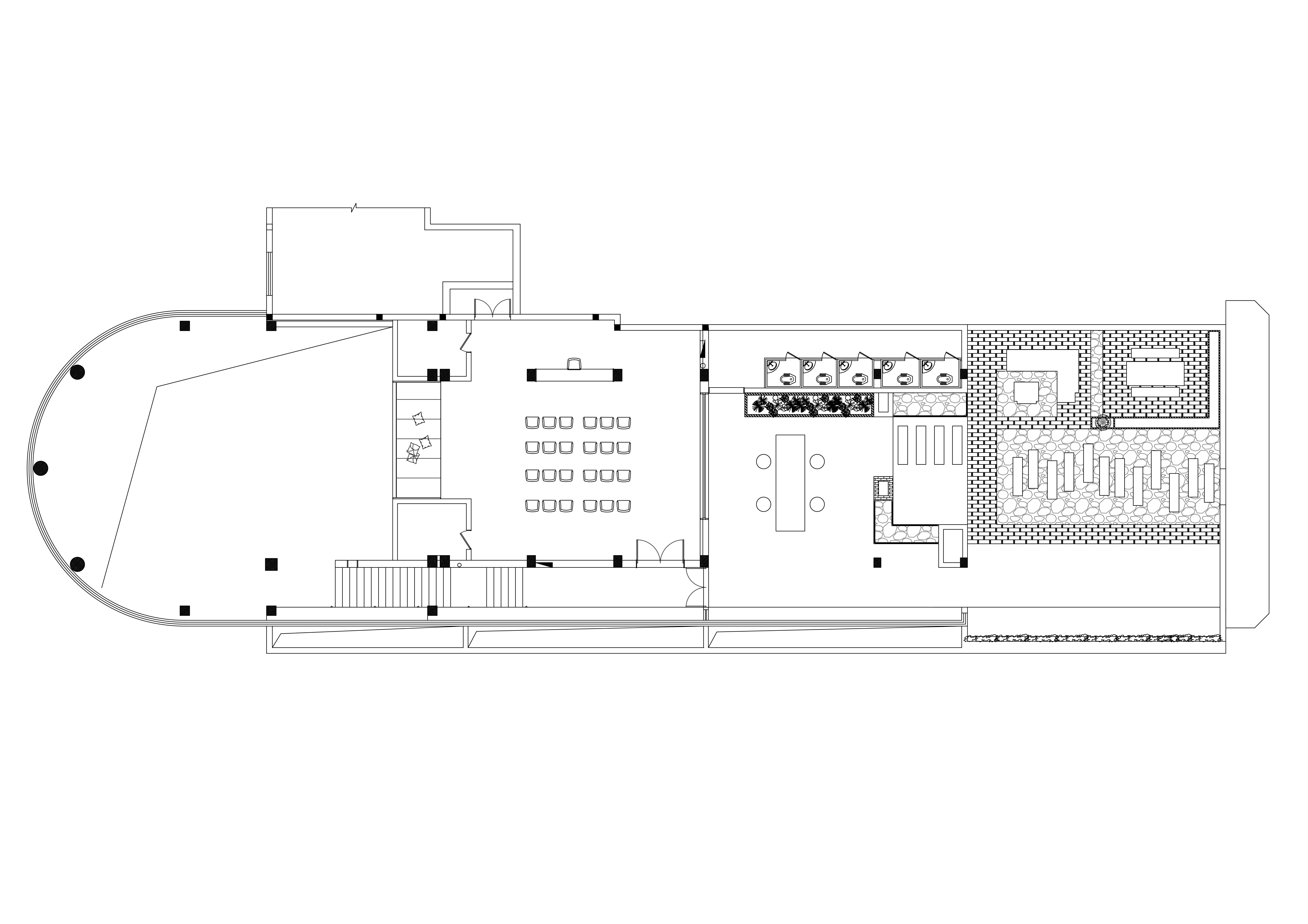
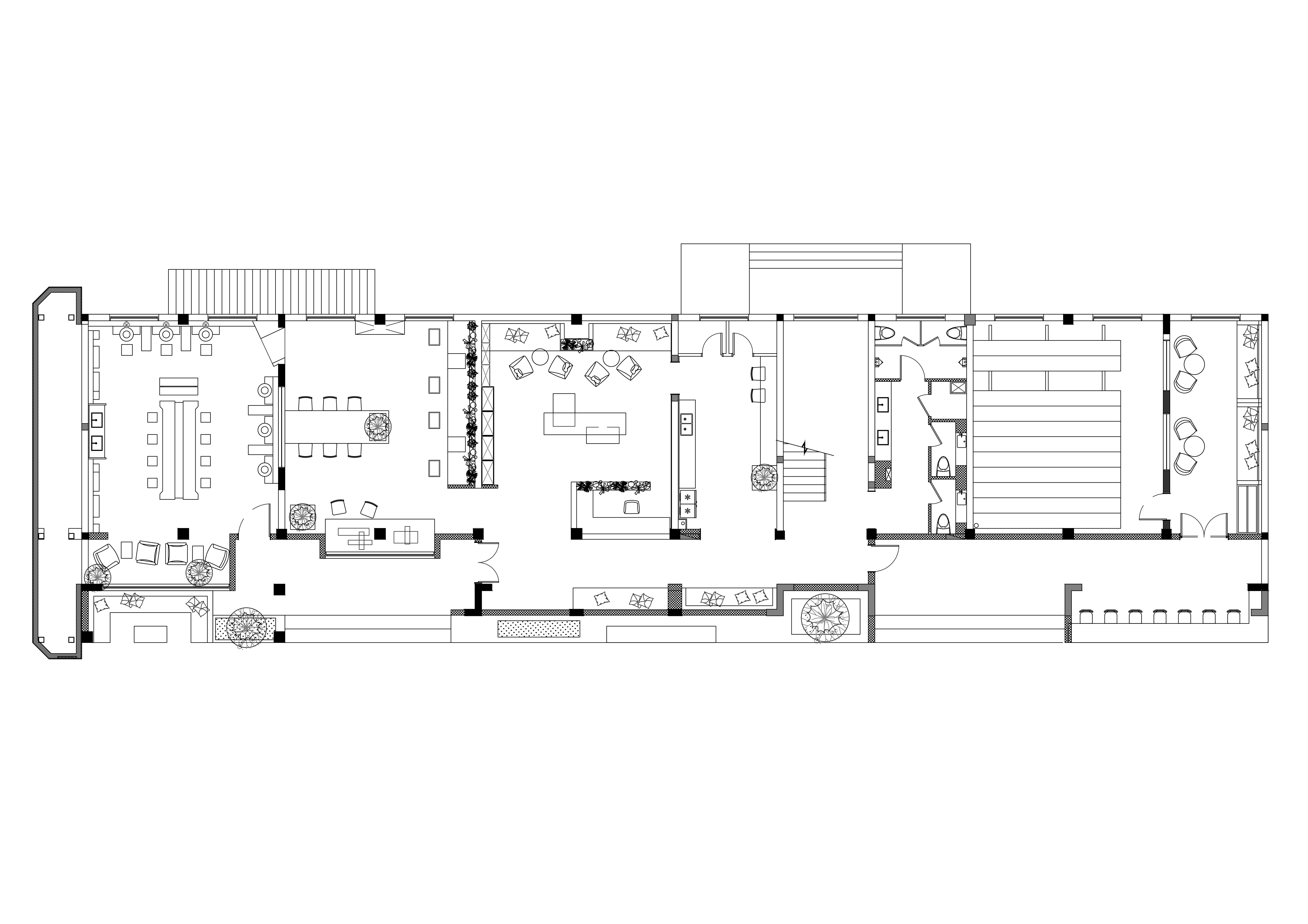
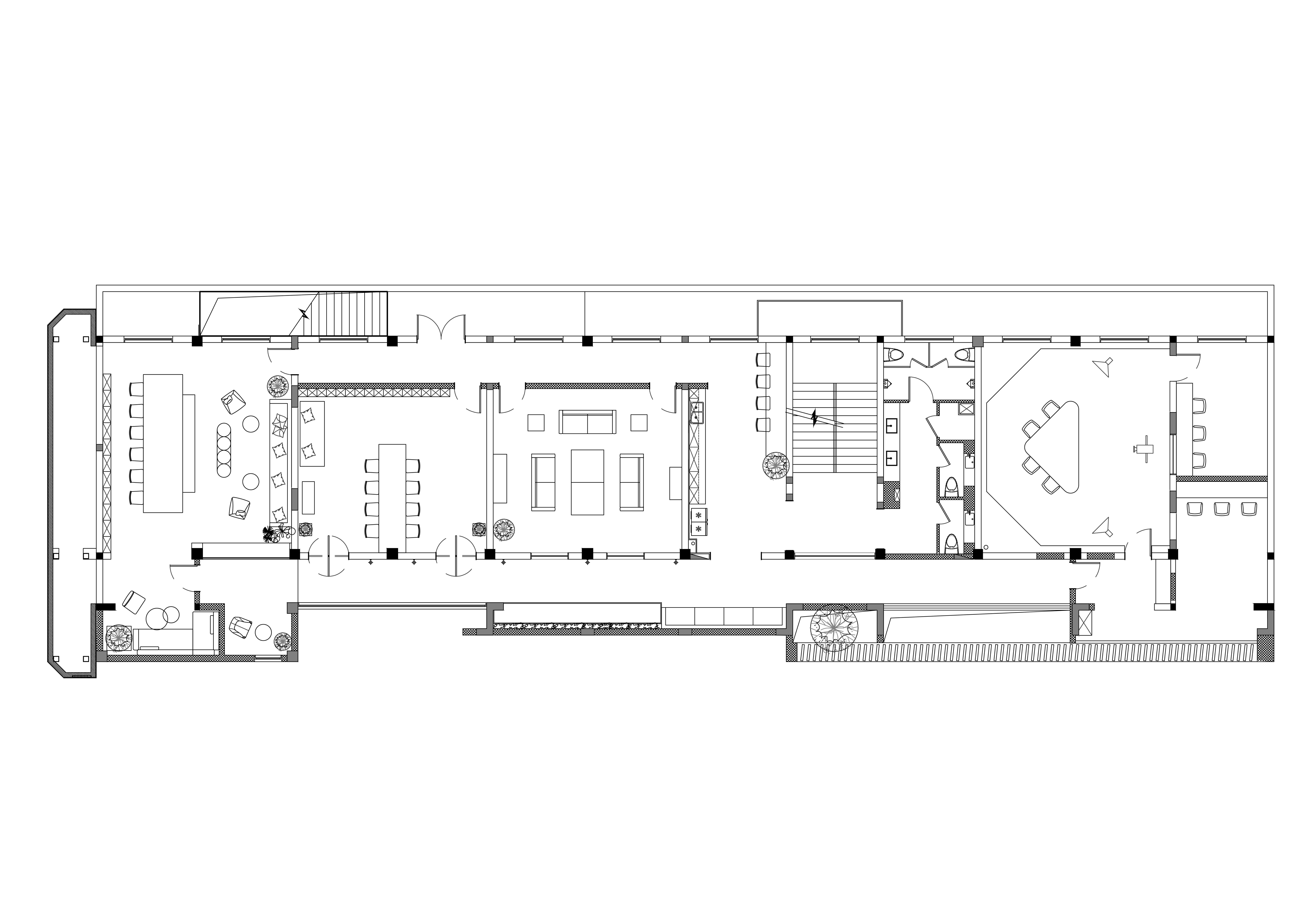
空间主要分成三大类:文化体验、文化交流、市民互动。通过反复的推敲和计算,设计师将空间进行了颠覆性的改造。那么何为体验?
Space is mainly divided into three categories: cultural experience, cultural exchange and citizen interaction. Through repeated deliberation and calculation, the designer has carried out a subversive transformation of the space, so what is experience?
拆除原建筑楼板后增加核心景观步梯,利用地面抬高与下沉打造了不同感受的沉浸式阅读及交流区域,将花园嵌入室内,充满生命的朝气与活力,并以此形成微缩景观。强烈的色彩碰撞引导视觉层层推进,无痕迹的仪式感,伴随着水声潺潺,满足读者的视听体验。这里不只是读书会,还是人们思想自由撞击的地方,这里将会成为知识与智慧的交融之地。
After the original building floor is demolished, the core landscape ladder is added, and the ground is raised and sunk to create an immersive reading and communication area with different feelings. The garden is embedded in the room, full of vitality and vitality, so as to form a miniature landscape. With the sound of the water, it can satisfy the readers’ audio-visual experience. It is not only a reading club, but also a place where people’s thoughts collide freely. It will become a place where knowledge and wisdom blend.
“以身体之,以心验之”,即为体验。
"Experience with the body and experience with the mind" is experience.
在这里,每个人可以安静下来,听到自己内心的声音,感受这个城市强有力的律动。
Here, everyone can be quiet, hear their inner voice, and feel the strong rhythm of the city.
蝴蝶虫要从茧中钻出来,不是因为身体变大了不得不如此,而是想换个环境,找一种新的体验。
Butterflies and insects want to get out of the cocoon, not because they have to, but because they want to change their environment and find a new experience.
那么人类呢?是什么吸引人泪走出天堂来到人间?是什么魔力使人类从动物中分离出来拥有自己的繁华的城市?是花园中的鸟语花香还是殿堂中的灿烂生活?应该是一种体验!一种比动物更加高级的生活体验——只有我们能够得天独厚、实实在在地感受到世界发展中众多伟大成果生成的每一刻,就像界首读书会一样,它被历史锤炼,它会承载着文化与艺术继续点亮这座城市!
What about humans? What attracts tears from heaven to the world? What’s the magic that separates human beings from animals and owns their own lush cities? Is it the singing of birds and the fragrance of flowers in the garden or the splendid life in the palace? It should be an experience! A more advanced life experience than animals - only we can feel every moment of great achievements in the development of the world. Just like Jieshou reading club, he is tempered by history and will continue to light up the city with culture and art!
项目名称 ▏界首读书会
主持设计 ▏上海界非界空间设计有限公司
设计团队 ▏胡慧中、马雨婷、周静、郑雷敏、陈真
深化设计 ▏安徽山水空间装饰有限公司
业主单位 ▏界首市市政府
设计时间 ▏06/2018—09/2018
建造时间 ▏11/2018—11/2020
项目地点 ▏中国,安徽界首
项目面积 ▏3000㎡
主要材料 ▏水磨石、木饰面、水性磁化墙膜、橡胶地板、艺术花砖.
Project name ▏Jieshou Reading Club
Center Design ▏Shanghai JieFei Space Design
Design team ▏Lucia、Mayuting、Zhoujing、Zhengleimin、Chenzhen
Co. Ltd. in depth design ▏An hui landscape space decoration Co. Ltd.
owner ▏Jie shou municipal Government
design time ▏06/2018-09/2018
Construction time ▏11/2018-11/2020
Project site ▏China, Anhui Jieshou
Project area ▏3000 ㎡
Main materials ▏terrazzo, wood veneer, water-based magnetized wall film, rubber floor, arttile.
本期作者/Lucia
本期美编/Saiko 、Xue
END
客服
消息
收藏
下载
最近























































