查看完整案例


收藏

下载
来自
Jacques Ferrier Architecture
+
Sensual City Studio
Appreciation towards
Jacques Ferrier Architecture
+
Sensual City Studio
for providing the following description:
以巴黎、里斯本和上海为实践地的Jacques Ferrier事务所与Sensual City Studio合作将上海徐家汇的一座旧建筑变成了城市中的新地标。不同于寻常的“办公室加停车场”,该项目为重新探讨其周边城区的环境创造了契机。
Paris, Lisbon and Shanghai-based practices Jacques Ferrier Architecture and Sensual City Studio have turned what could have been an ordinary ‘office plus car park’ into an opportunity to radically reassess the surrounding urban district of Xujiahui in Shanghai.
▼建筑外观,exterior view
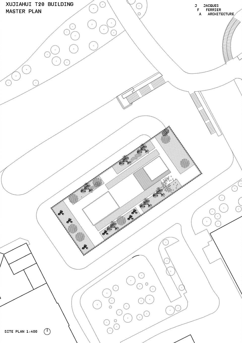
在上海最繁忙的十字路口,这座位于高架桥上方的建筑成为了一处新的“城市绿洲”,人们可以从这里俯瞰动态的城市场景。T20大厦通过一系列公共步行绿道将办公室、市政单位、商业及文化空间结合起来,在繁忙的街道上空营造出远离城市喧嚣的宁静空间。
A radical reimagining of a densely urban site on Shanghai busiest intersection.The project features elevated planted pedestrian walkways above the street. An ‘urban oasis’ from which to observe the dynamic scene below. The resulting structure, on the site of a former hotel, combines office, civic, commercial and cultural space with green ribbons of public walkways, connecting the streets and buildings of China’s busiest intersection with peaceful arteries from which to escape the tumult.
▼繁忙十字路口上空的“城市绿洲”,an urban oasis above Shanghai’s busiest intersection
设计探索了如何通过建筑来激活更广泛的城市环境,将人行道和桥梁建立在交通枢纽上方,使其成为建筑的一部分延伸,并以此更新了当地的基础设施。在经过大量分析研究之后,Jacques Ferrier事务所的创始人Jacques Ferrier和Sensual City Studio的联合创始人Pauline Marchetti确定了在十字路口上方设立相互连通的人行步道的必要性,并将其与大厦的停车场进行整合。
The design explored ways in which the project could become a generous catalyst for the wider environment, building pedestrian connections, walkways and bridges above the transport interchange as an extension of the building; in doing so, renewing the local infrastructure. Through extensive analysis, Jacques Ferrier, founder of Jacques Ferrier Architecture, and Pauline Marchetti, co-founder of Sensual City Studio, identified the need for enhanced pedestrian connectivity at the intersection and incorporated this into the building’s car park. The radical intervention creates raised and planted walkways which lift pedestrians eight metres above the crossroads to provide more logical and enjoyable connectivity between city landmarks such as the church and the park.
▼人行道和桥梁成为建筑的延伸,pedestrian connections, walkways and bridges function as an extension of the building
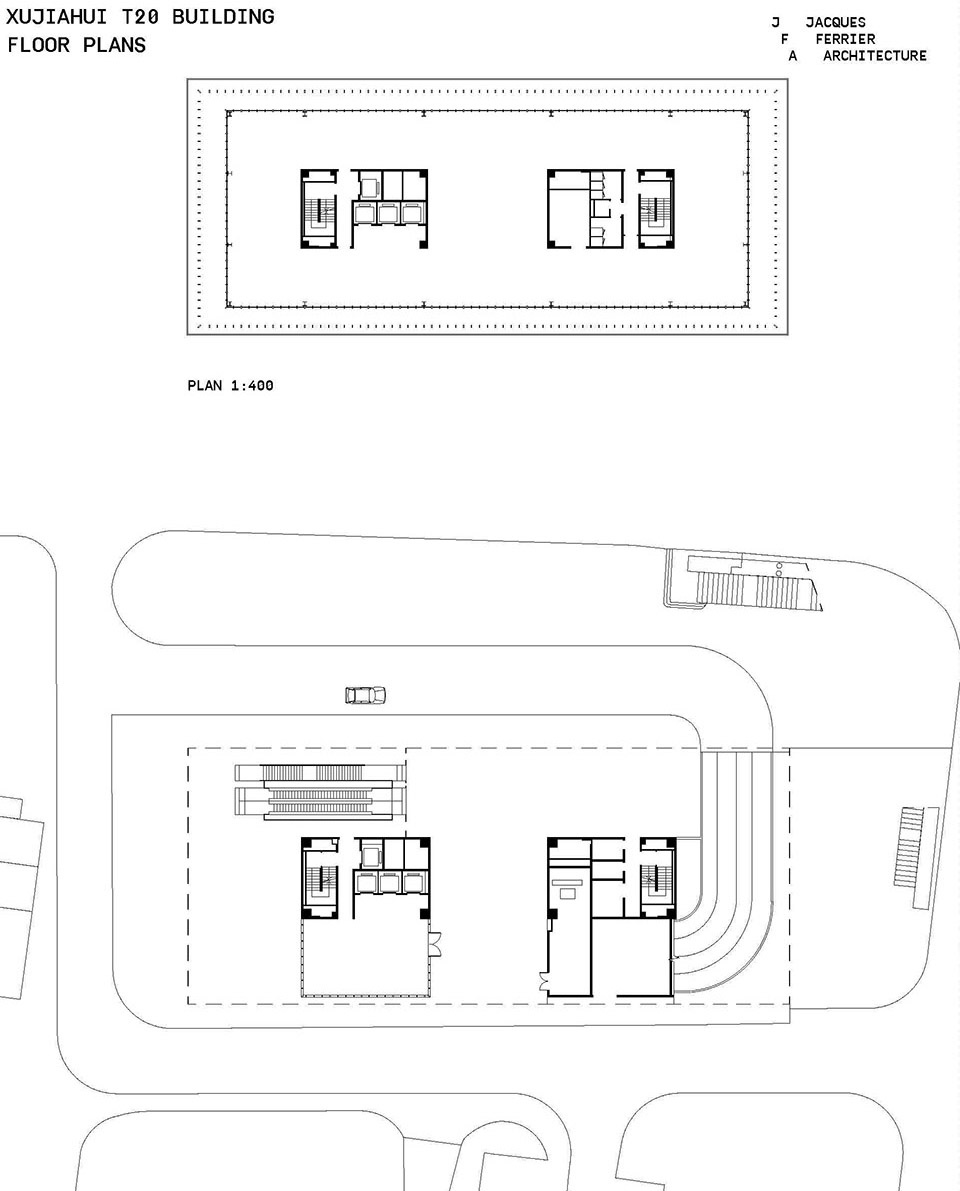
大厦包含两层地下商业空间,其中一层通过走廊空间与Metro City商场相连。大厦的1层和2层包含数百平方米的社区空间。3-7层是公共停车场,以连续的螺旋形态展开,为该区域的企业和办公人员提供服务。8层和9层是共享办公空间,围绕着一个宽阔的花园分布,此外还包含游客接待中心、餐厅、会议室、礼堂和休闲聚会空间等。10至15层提供高效且人性化的办公空间。顶部的两个楼层是文化中心的所在地,看上去如同“漂浮”在城区的天际线上空。
▼北立面图,north elevation
The project includes two levels of commercial space underground, one of which is connected to the Metro City building by an underground gallery. Floors 1 and 2 house several hundred square meters of community spaces. Floors 3 to 7 house the public car park, which unfolds in the form of a continuous spiral, serving the offices and businesses of the district. The 8th and 9th floors are shared office space arranged around a large raised garden, and house a reception for visitors, cafeteria, meeting rooms, auditorium and spaces for relaxation and conviviality. Levels 10 to 15 have been developed as efficient and user-friendly office floors. The top two floors are home to the cultural centre, space that seemingly “floats” on the skyline of the district.
▼公共停车场连续的螺旋形态展开,the public car park which unfolds in the form of a continuous spiral
▼街道近景,a close view from the street
T20以建筑的身份彰显了其所在场地的动态与活力:行人通过桥梁和步道与城市以及便利设施与商业空间所在的首层和二层空间相连,对整个区域起到了激活作用。停车场的绿化使其成为城市中的葱郁绿洲,人们可以从主要的公共空间看到这座独特的“悬空花园”。
As a piece of architecture, T20 expresses the movement and dynamism inherent in the site: its circulation and activation through human use, across the bridges that connect to the city and at ground and first floor level where public facilities and shops are located. The car park becomes a lush urban oasis for the city, with the insertion of an extraordinary “hanging garden” that is visible from key public spaces.
▼建筑对整个区域起到了激活作用, T20 expresses the movement and dynamism inherent in the site
▼停车场的绿化使其成为城市中的葱郁绿洲,the car park becomes a lush urban oasis for the city
这种整合式的设计方法将自然环境引入了高密度的城区,悬浮花园和贯穿建筑的绿色植物将有助于缓解该区域不可避免的污染问题。多层次的空间实现了动态与静态的巧妙结合,在城市中形成一处具有“治愈”效果的宜人环境。
This combined approach by Jacques Ferrier Architecture and Sensual City Studio has brought nature into even this most densely populated area, through suspended gardens and plantings throughout the scheme which will help to counteract some of the inevitable pollution in the area. Balancing dynamic movement and respite, the building reintroduces therapeutic nature into the urban condition by offering a garden to the city in this intriguing layered approach to city architecture.
▼建筑立面,facade
▼场地平面图,site plan
▼平面图,floor plans
▼北立面图,north elevation
▼东立面图,east elevation
▼剖面图A-A,section A-A
Location: Shanghai [China]
Architects: Jacques Ferrier Architecture (JFA) with Sensual City Studio (SCS)
Client: Shanghai Xujiahui Commercial Real Estate Development Co, Ltd.
Completion: 2019
Area: 215,000 square feet (20,000 square meters)
Use: Commercial
客服
消息
收藏
下载
最近
















