查看完整案例


收藏

下载
“音乐集市”文化中心位于墨尔本,是一处集工作、学习、表演、合作为一体文化社交空间,堪称澳大利亚当代音乐的新家。为了促进音乐与商业的融合,本中心汇聚了多家澳大利亚顶尖的音乐机构,包括:Music Victoria、维多利亚音乐发展办公室(VMDO)以及The Push音乐慈善机构,同时也容纳了一系列共享办公、教育以及表演空间。
Music Market is a new home for contemporary music in Australia to work, learn, perform and collaborate. To stimulate the mixing of music and business, the hub combines Victoria’s peak music bodies, including Music Victoria, The Victorian Music Development Office and The Push, with co-working, educational and performance spaces.
▼视频,video ©Sibling Architecture
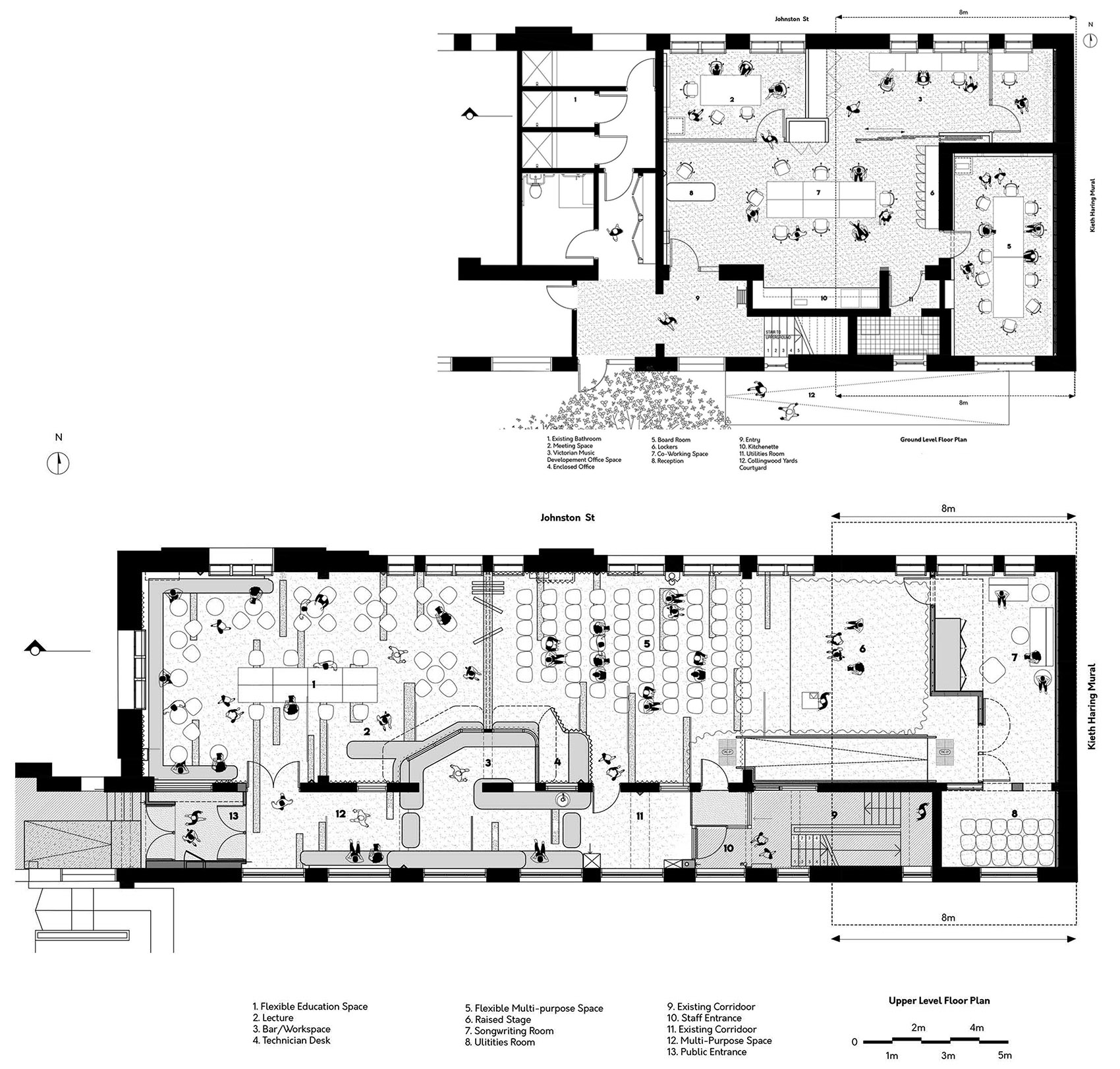
项目坐落于科林伍德院新区的两栋19世纪学校建筑内,空间功能旨在将音乐与创业结合在一起。落成后的项目与周边的建筑、附近商户以及号称“墨尔本岩石之家”的Tote酒店形成了良好的互动关系,以亲近社区的尺度鼓励了当地创意产业的融合。项目设计的关键之一在于保护位于约翰逊街(Johnson Street)大楼东墙上的基思哈林壁画,这幅壁画如今已被列为当地历史文化保护遗产。“音乐集市”内距离墙壁八米以内的空间均为遗产保护区,为确保壁画得到长期保护,本项目中已经实施了若干缓解措施,包括在室内建造全新的地板、墙壁以及天花板,并将这些结构与现有的结构分离,以保证音乐或者舞蹈产生的振动不会对壁画造成影响。
The hybrid program of music and entrepreneurialism is located within two nineteenth-century school buildings within the newly opened Collingwood Yards Precinct. The porous movement between these buildings, nearby tenants and the adjacent The Tote Hotel (“Melbourne’s home of rock”) encourages the mingling of creative types at a precinct scale. A key component of the project is the preservation of the Keith Haring Mural, listed by Heritage Victoria, which lies on the Johnson Street building’s eastern walls. An eight-metre heritage protection zone extends within Music Market: several mitigations have been implemented to ensure the long-term protection of the mural. New floors, walls and ceilings have been introduced within this zone that are all isolated from the existing structure to ensure no vibration from mellifluously loud music, or throngs of dancers, impacts upon the mural’s delicate paint.
▼建筑外观,exterior view of the building ©Peter Bennetts
▼东墙上受到保护的壁画作品,Protected mural works on the east wall ©Peter Bennetts
室内涵盖了多种功能空间,包括:作曲室、教育空间、走廊、会议室以及社交空间,所有空间都具有高度的灵活性,能够为不同活动以及表演提供场所,无论何时何地都能满足人们迸发的表演灵感。可移动的墙壁与窗帘则进一步增强了空间的灵活性。
Every distinct space within the project – from song writing rooms, education spaces, corridors boardrooms and meeting spaces – are also conceived as a mixing or performance space, allowing unexpected performances to erupt at any time. Operable walls and curtaining throughout enhances this flexibility.
▼室内空间概览,overall of interior ©Peter Bennetts
▼可移动的家具与隔墙使空间可快速变身为宽敞的排练室,Movable furniture and partitions allow the space to be quickly transformed into a spacious rehearsal room ©Peter Bennetts
设计的最大特点在于空间功能与使用者的需求在多功能空间中的呼应。闪耀着绿色光芒的大门与吧台吸引着人们进入。与大多数文化娱乐中心相同,室内的照明系统在使用和空间配置上都非常灵活;设有移动隔断的会议空间可以灵活变化,在下班时间内变身为热闹的排练场所。
The intermixing of program and users is celebrated in the prominent multipurpose space: its threshold and bar glistens green and beckons you in. Like most spaces at the hub, this light interior is highly flexible in both in its use and spatial configuration: a conference with breakout spaces can transform into a throbbing live gig afterhours.
▼设备控制室与吧台/工作坊空间,Technician room with bar/workspace ©Peter Bennetts
▼立面与天花板上的折板材料具有良好的声学性能,
Folded panels on the facade and ceiling provide excellent acoustic properties ©Peter Bennetts
▼细部,details ©Peter Bennetts
空间氛围的转换是无比流畅的,这归功于各种元素的结合,这些元素包括:由Arup开发的高质量视听、灯光和音响系统,定制的可移动木制家具,合理布局的服务空间、可移动隔墙,以及时刻提醒着人们不同表演与活动内容的LED滚动屏幕。穿孔隔音板分散却十分高效,密集的隔音板布局使多功能房间具有堪比独奏厅的音质,相比于专业独奏厅的严肃氛围,巧妙的设计使这些空间变得亲切可爱,让每个人都感到宾至如归。
The changeover is seamless, supported by high-quality audio-visual, lighting and acoustic systems developed by Arup, service spaces, custom mobile joinery, partition walls, and LED scrolling signage (that can alert people of different events or provide screening for performances). Perforated acoustic baffling is also discrete but effective: using the aural principles of harmony, rhythm, texture and composition, the extensive arrangement of baffling gives the multipurpose room the acoustic quality of being in a recital hall while being designed specifically so not to feel like you are in one — so that everyone feels welcome.
▼在白天,“音乐集市”文化中心是一处安静舒适的自习或交流空间,During the day, the “Music Market” cultural Center is a quiet and comfortable space for self-study or communication ©Peter Bennetts
▼由教育区看向舞台,
viewing the stage from the education space ©Peter Bennetts
▼灵活的灯光布局营造独特空间氛围,
Flexible lighting layout creates unique space atmosphere ©Peter Bennetts
在与奥雅纳公司密切合作下,经过几轮测试和振动监测都显示新结构的置入能够明显减小振动对壁画的影响。为了使多功能厅内的表演舞台远离壁画所在的墙体,设计师在舞台后方设置了一个进深为4米的缓冲区,充足的空间与郁郁葱葱的植被也能够避免随着音乐舞蹈的摇摆的人们冲撞到舞台或壁画所在的墙体。
Working closely with Arup through several rounds of testing and vibration monitoring, vibration impacts were reduced to levels well below what they were without them. The arrangement of the program behind the wall somewhat counter intuitively places the performance stage (in the multipurpose room) within the heritage protection zone: this directs the projection of music away from the mural. A lush green room also acts as a four-metre buffer from the direct movement of people who maybe swaying to the beats behind.
▼走廊变身为多功能活动空间,The corridor is transformed into a multifunctional activity space ©Peter Bennetts
▼穿孔隔音板墙面细部,
closer view of the perforated acoustic baffling ©Sibling Architecture
墨尔本音乐舞台所展现出的团结精神,被“音乐集市”文化中心所具像化,为人们提供了一处雄心勃勃且充满多元文化的音乐聚集地。巧妙的设计策略将现代化的多功能空间与使用者的感受结合在一起,进而将空间的潜力发挥到极致。
There is a solidarity in Melbourne’s music scene that is reflected in the materialisation of Music Market, which unites a diverse and ambitious institution. Subtle and clever design strategies pull together a modern mixture of programs and user groups that allows people to perform at their best – delivered at a time when this space could not be needed more.
▼二层空间入口,
public entrance of the upper floor ©Peter Bennetts
▼底层共享空间入口,
entrance of the co-working space on the ground floor ©Peter Bennetts
▼平面图,plans ©Sibling Architecture
©Sibling Architecture
客服
消息
收藏
下载
最近






















