查看完整案例

收藏

下载
©刘瑞特
空间的主题概念是“啤酒花园”。中庭一侧的墙面保留原有石库门的外墙,由弧形围合出的成组布置的卡座或挨着石库门旧墙布置,或散落在空间里。这一次复古不羁的啤酒品牌与老上海建筑的碰撞,终于产生了期待的火花。
感谢 dongqi Design 栋栖设计。
拳击猫旗舰店位于上海新天地,由 dongqiDesign 栋栖设计操刀,在把精酿啤酒的文化与新天地中西合璧的建筑风格融会协调的过程中,将拳击猫的品牌特性发扬到了极致。
▲啤酒花园
©刘瑞特
空间的主题概念是“啤酒花园”。中庭一侧的墙面保留原有石库门的外墙,由弧形围合出的成组布置的卡座或挨着石库门旧墙布置,或散落在空间里。卡座以老木头为基底,皮革为坐面,中间种植龟背竹。三个拱形门洞其中一个填以窗间墙,作为电壁炉兼高吧台。另两个门洞联通另一侧的座位区和酒吧吧台区域。
▲保留原有石库门的外墙
©刘瑞特
石库门旧墙面层拆除后斑驳的水泥墙质感被保留了下来。空间内其余的混凝土旧墙,也都被一一保留展示,以回应地域历史。地面以用品牌元素定制的耐火砖相拼,并在缝隙填上混以碎砖粒的黑色水泥,最后加以抛光,而得到特殊的肌理。墙面从地面往上,是现磨水磨石过渡到水洗石的特殊工艺,而骨料也是石子颜色由下往上的渐变。墙地面的水洗石水磨石是老上海建筑室外常用的材料,工艺也是尊重并回应着传统的工匠精神。
▲新建扶手与老墙体
©刘瑞特
印有拳击猫 logo 的扎啤桶被对半切开,串联起来做成局部吊顶。桶内或种有绿植,或布以灯光。镀铬金属管和法兰盘相接的构造体系是另一个空间亮点。从冷库到啤酒吧台的走管、串联扎啤桶的吊顶体系、定制的壁灯吊灯、墙面的菜单,运用的都是法兰盘金属管系统。
▲用餐区
©刘瑞特
▲品牌专属色水洗石与水磨石的过渡©刘瑞特
酒吧 U 型吧台正对一侧入口,以竖向做成铜绿表面处理的金属管作为吧台外立面,酒头一字排开在吧台上,给过往的行人以最直接的展示。连接酒头的金属管是闪亮的铜色,间隔在锈绿的管道之间。吧台台面用的是实木,除了半室外中庭以外的其余地面用的也是实木木地板,增加了室内的温暖感。吧台背侧的墙面是以同样于中庭的定制耐火砖砌筑而成,砖墙后侧打光,由砖的孔洞中透出来。
▲真实用于啤酒运输的紫铜管道
©dongqi Design 栋栖设计
▲U 型吧台
©刘瑞特
▲定制改装的酒柱
©刘瑞特
▲紫铜与氧化紫铜
©刘瑞特
二层以卡座布置为主,外加后厨区。卡座围绕着中庭布置,既有私密性,又有通透感。激光切割的镂空半透弧形扶手,不阻挡客人观赏一层的景致。吊顶局部为红色主题漆,而在坡顶的位置露出了原有的木质顶面。圆形空调出风口依次排列,嵌入在水洗石墙面和表面锈蚀处理的钢板上。
▲俯瞰啤酒花园
©刘瑞特
从啤酒吧台到中庭的地面的一路上,嵌入了一个个圆形空腔,用以展示精酿啤酒酿造原料。中庭正对入口的墙面,在二层的高度架设了镀铬啤酒桶,这些设计无时无刻不在宣传着精酿啤酒的文化。而一系列由拳击猫品牌中提炼出的设计元素,包括锈绿的铜管吧台立面、表面锈蚀处理的钢板、红色主色调、以及墙面上代表拳击主题的平行四线条的绕行,结合墙面上的主题涂鸦、故事相框、Louie 猫的肖像和 logo 等,更是让人在行走中迅速融入了拳击猫充满个性的品牌氛围中。
镂空半透弧形扶手
©刘瑞特
▲以品牌元素定制的耐火砖
©刘瑞特
多样化的灯光设计处理,包括扎啤桶吊顶上暗藏的漫反射光源、墙面的壁灯、中庭的“街道路灯”、卡座后的暗藏灯带、吧台砖墙面的透光等等,强化了夜间不同于白天的特殊氛围。这一次复古不羁的啤酒品牌与老上海建筑的碰撞,终于产生了期待的火花。
▲灯光设计
©刘瑞特
项目图纸
▲首层平面图
©dongqi Design 栋栖设计
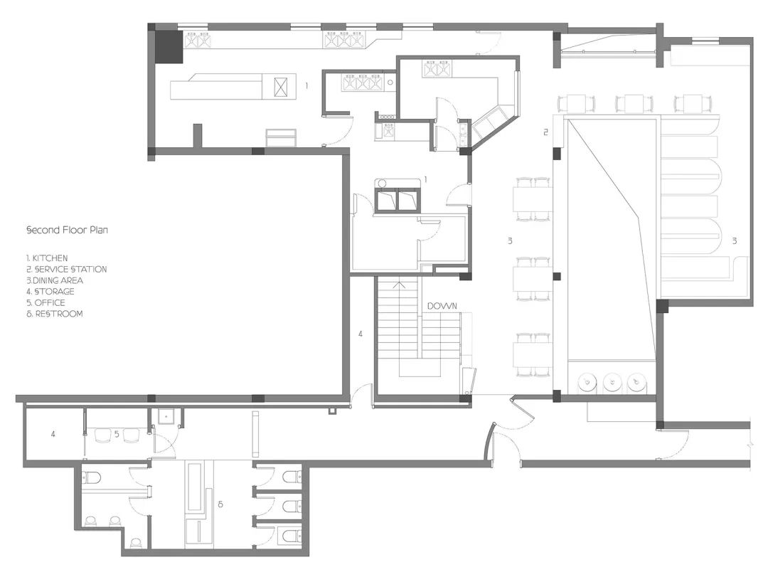
二层平面图
©dongqi Design 栋栖设计
项目名称:拳击猫精酿啤酒新天地旗舰店
面积:257 平方米
设计时间:2019 年 2 月
建成时间:2019 年 8 月
建筑设计:dongqi Design 栋栖设计
设计总监:姜南
项目设计师:马翌婷、高卉
团队:谢金杋、翁羽洁、张爽、简仕翰、周一帆、松洁
照片:刘瑞特
客服
消息
收藏
下载
最近






















