查看完整案例

收藏

下载
今天,小编要和你分享一个有关office的设计案例,一个将色彩和舒适度并存的高质量空间。
位于巴西南部库里蒂巴市中心的摩卡建筑公司(Moca Architecture)为产品设计机构Mad Creative设计了一个项目,该工作室由200多平方米由色彩、纹理和不同寻常的材料构成。
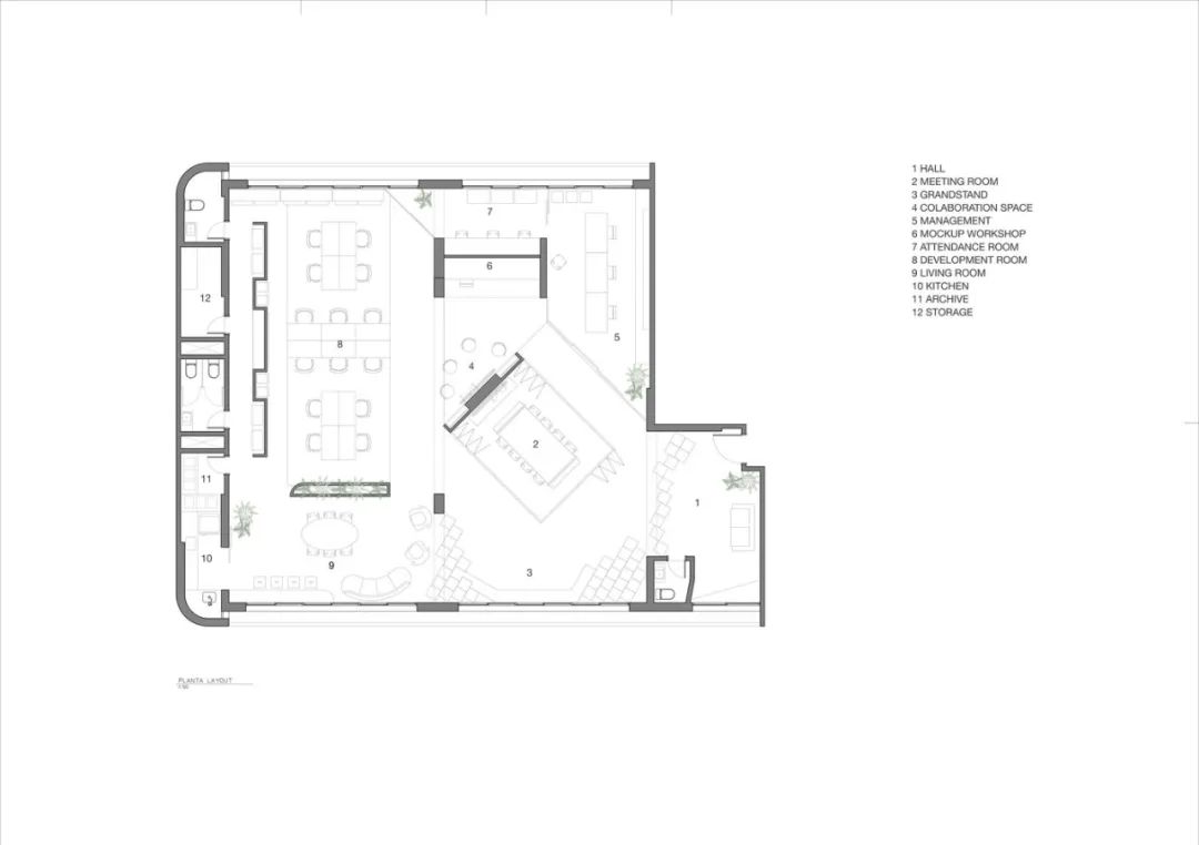
该项目的主要目标是创造一个家庭办公室的环境,以此来促进员工的回归,激发员工的创造力和生产力。为此,开发了分色区域,为小组活动、工作动态、讨论、集体用餐和休息时间留出空间。
环境的舒适性和流动性是该项目的主要出发点。
在会议室里,开发了一套折叠门系统,以整合整个区域。
就在它前面,还有一个正面看台,可以坐在那里进行大型演示,使环境更加包容和放松
。
颜色在空间划分和环境个性中起着根本性的作用。
彩色金属结构、蓝色地毯、涂漆天花板、胶合板和中密度纤维板:它们的颜色和纹理的混合占据了整个空间。入口处,还可以看到公司展示的项目。这说明空间不仅仅是一个工作场所,它也是一种品牌宣言,能够激励和欢迎客户和员工。
将颜色和空间运用到极致的工作环境你喜欢吗?快来下方和小编一起参与讨论吧~
- END -
荷兰旧邮局摇身一变成博物馆!雕塑感艺术橱窗一览城市风景
如果侘寂太素,Noa Santos的风格可能刚刚好
宁静天然的设计格调,为年轻夫妇打造悦目和谐的湖居住宅!
迪拜全新地标正式开放,犹如科幻电影中的梦幻建筑,未来已来!
长按即可前往关注 : )
客服
消息
收藏
下载
最近























