查看完整案例


收藏

下载
主创建筑师:Tetsuo Kawai + Yasushi Goda + Shunsuke Daimatsu
摄影师:Tomoki Hahakura
客户:Asahi Facilities Inc.
景观:Masayuki Mukouyama + Takeshi Tsuchio
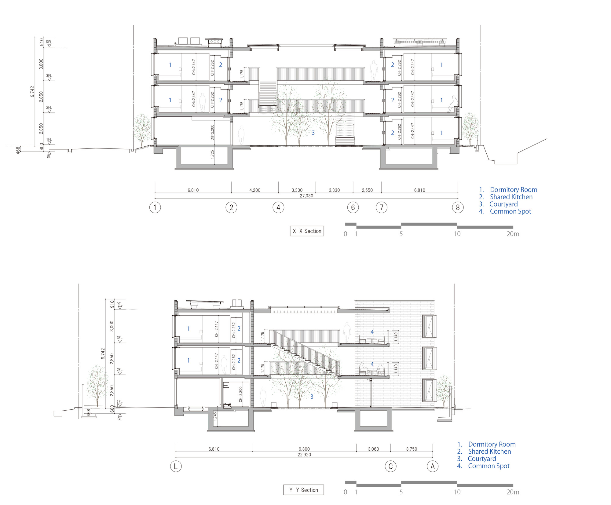
本项目是一处公司单身公寓宿舍。每一位员工都有各自的爱好和生活方式。我们希望这做宿舍将成为他们建立亲密关系和进行交流的场所。场地坐落于一片住宅区,我们将建筑划分为六个体量,降低建筑高度为三层,在尺度上融入周围环境。
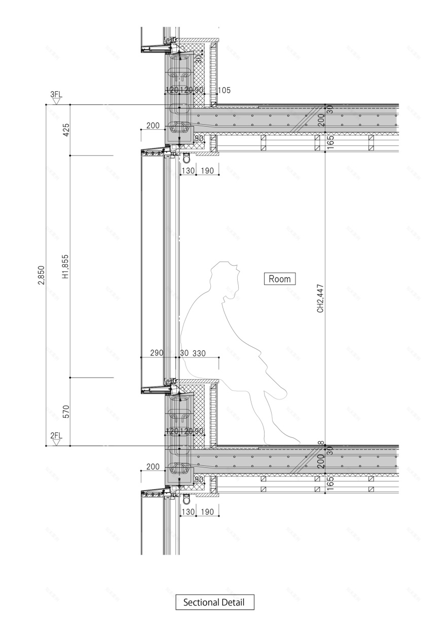
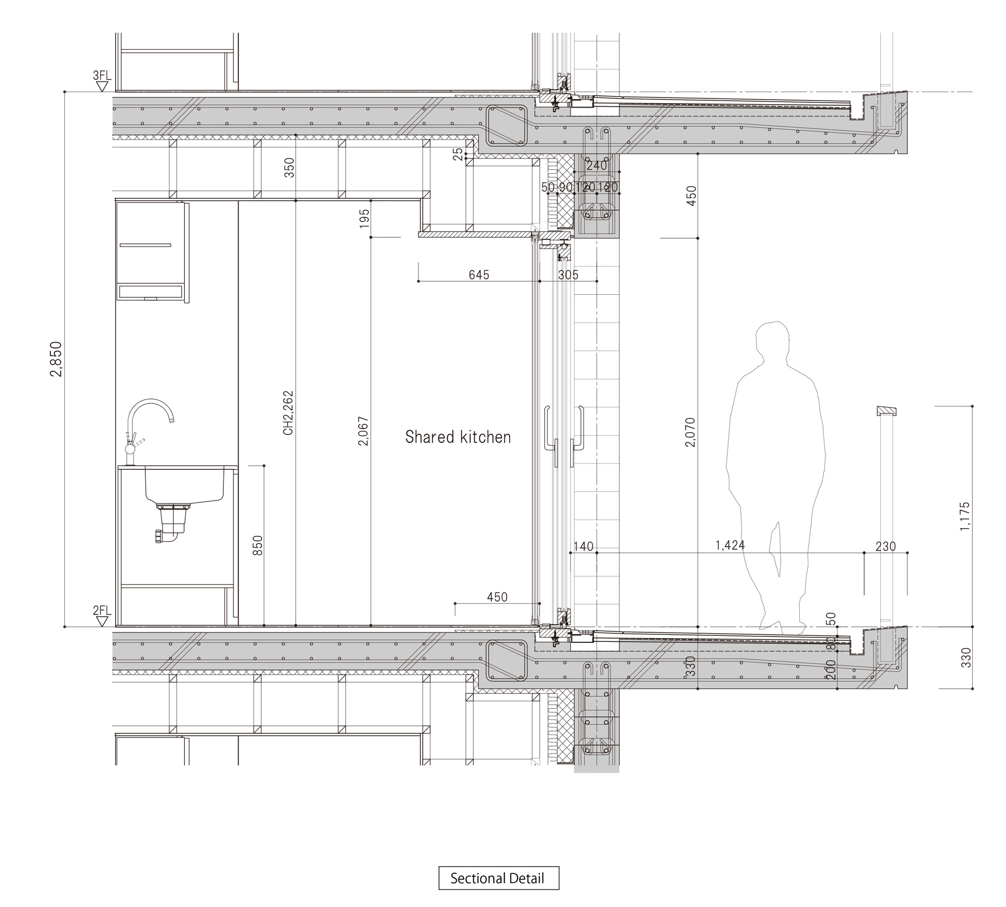
我们将建筑体量围绕庭院布置,设置一个叫做 CommonSpot 的开放空间。它将光线和风送入公共空间,并且将成为住户交流的第二起居室。我们将每个单元组织成两个紧凑的私人房间和一个共用厨房,供住户烹饪和食用。共用厨房可通过大型木制推拉门进入公共区域。
他们可以在 Common Spot 与朋友分享共用厨房烹制的菜肴。 共用厨房在人与人之间建立纽带,社区将在宿舍中萌生。宿舍拥有各种空间,从独立宿舍间到开放式公共场所。我们希望这座建筑将成为使得每位居民选择自己的生活并与他人保持各种社交关系的场所。
客服
消息
收藏
下载
最近



































