查看完整案例

收藏

下载

翻译
Architects:Slow Studio
Area :230 m²
Year :2021
Photographs :Salva López
Structure : Campanyà Vinyeta
Civil Engineering : Ecopenta / Maria Peralta
Contractor : Serman Construcciones y Decoración
Environmental And Sustainability Consultants : Societat Orgànica / Paula Serra
Technical Architect : Equipo Aparejador / Andrés Martín Ramos
Installations : Cointec Instalaciones
Flooring : Matter Barcelona
City : Torrelodones
Country : Spain
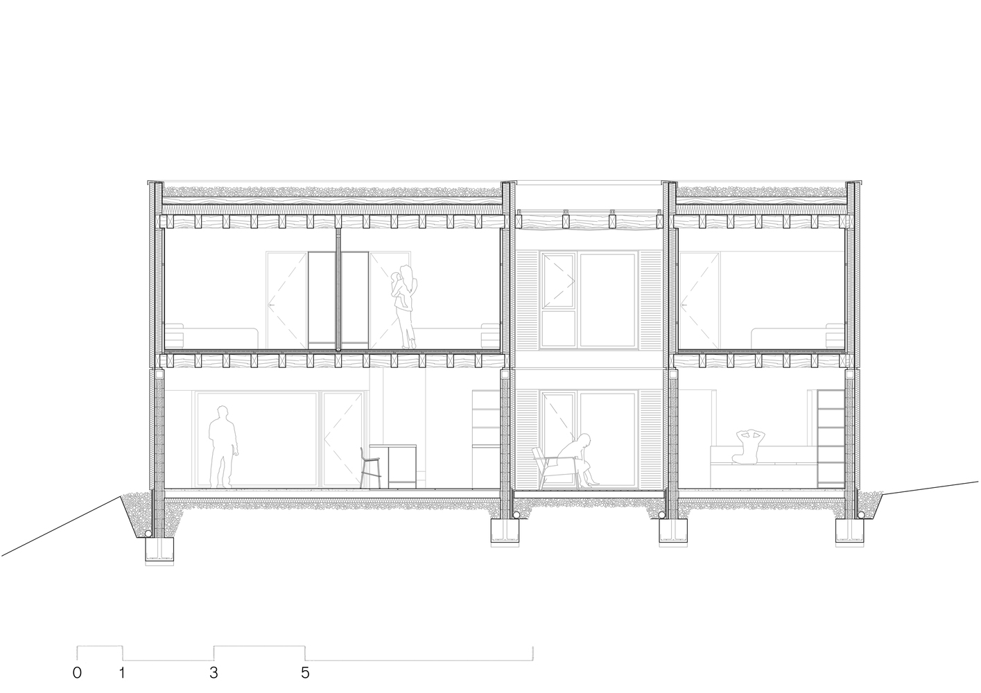
The chosen location is Monte el Pardo, 30 kilometers from Madrid in a plot with fantastic views and orientation. Our clients expect their house to be empty for a good part of the year so they want to find a way to make it pay for itself by renting it out when they are away but maintaining a private space. Thus, the commission starts like a house with two independent areas that can be converted into one in the future. The sloping layout of the plot helps us to solve both needs by generating a two-story house with independent access from the outside to each level.
On the first floor, the access is carried out via a walkway that resolves the steep slope of the first meters of the plot. This floor can be completely independent of the ground floor, where the living-dining room, kitchen, and a small study that can be converted into a bedroom are located in complete connection with the exterior.
As this is a compact house, the bioclimatic strategy looks for a way to guarantee good sunlight and ventilation in all the rooms through two courtyards. The south courtyard of the house is key to ensuring good natural ventilation without incurring energy losses. It is a double-height courtyard with a south façade and a glazed roof that can be opened or closed depending on the season.
In winter, the glazing is closed, creating a greenhouse effect that preheats the natural air outside. In summer, the glazing is opened and ventilation is carried out through a Canadian well, a 30-meter long tube that runs under the house and introduces air at a temperature of 20 ºC during the hottest year’s months.
The longitudinal shape of the house allows taking advantage of the north façade to generate cross ventilation in all the rooms on the upper floor. On the lower floor, which is semi-buried, ventilation is guaranteed thanks to the north patio. The project not only takes into account the renewal of air but also indoor air quality, avoiding finishing products (varnishes, glues, and paints) containing toxic substances that are emitted into the indoor air in the form of volatile organic compounds.
Two construction systems are combined to save costs and guarantee comfort according to the use of each area. The semi-buried ground floor is built with a system of concrete block inertia walls that function as a foundation and wall element. The first floor is raised with a semi-prefabricated structure of lightweight timber frame based on pinewood with a PEFC certificate.
The façade structure is composed of a framework of laminated pine laths, protected on the outside by OSB panels and on the inside by glue-free gypsum fiber panels. The interior partitions are made with clay-coated cellulose panels, the floors with manual terracotta pieces and all the enclosures are in the wood. In order to make the best use of water resources, an 8,000-liter rainwater recovery tank is installed to store rainwater for use in cleaning and toilets.
▼项目更多图片
客服
消息
收藏
下载
最近






































