查看完整案例

收藏

下载

翻译
Architects:Plan R Studio
Area :600 m²
Year :2021
Photographs :Alejandra Loreto
Manufacturers : Cassina, Poltrona Frau, Tacchini, Alta Light, Boxy, Brut DesignCassina
Lead Architects :Rami Matar, Rayane Abou Rahal
Contractors :Brut Design
Lighting Design :Alta Light
Landscape :Botanica
Supervision : Sacha Bizri
City : Abiyán
Country : Côte d'Ivoire
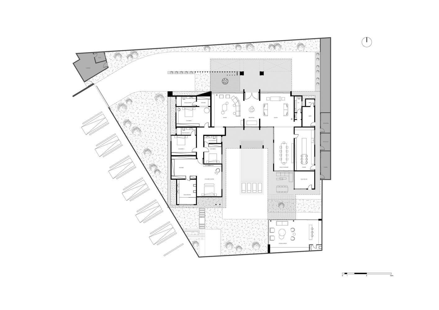
Villa C.H. is a rehabilitation project for an existing residence located in Cocody, Abidjan, in the Ivory Coast. The house located on a 1700 square meters plot is a U-shaped one story plan that unfolds around a central courtyard with an existing pool and outdoor area. The existing building structure although of recent construction was facing many challenges due to the climate of the region which lead to its need for remodeling and renovation.
The purpose of the rehabilitation work was therefore to enhance the existing spaces and provide the client with a new experience of the house while offering a technical solution for the climatic issues faced such as dealing with frequent rain, extreme sun exposure and the need for shading. The architectural changes and additions to the house came in response to these existing challenges. The added slabs create the unity of the project while adding new extensions and outdoor areas to the house, focusing mainly on the entrance zone and the central courtyard. In addition to its esthetical function, the slab is a practical response that solves the technical issues and creates new outdoor shaded spaces according to natural parameters as well as the needs and lifestyle of the clients.
A cigar lounge and outdoor recreational spaces were added in extension to the house, hence maximizing the outdoor experience. The alterations applied to the original plan and the demolition of a few interior partitions serve in creating a more open space plan. The remodeling of the interior spaces allows a better transparency and communication with the courtyard as well as an enhanced indoor/outdoor interaction.
▼项目更多图片
客服
消息
收藏
下载
最近





















