查看完整案例


收藏

下载
人与空间自然的舒适关系
由少即多忠于自我
家不是被拿来设计的艺术品
而是纯粹生活的有机体
室内面积 / 423㎡
空间性质 / 叠加别墅
项目进展 / 待开工
合作模式 / 全案设计 全程托管
项目设计 / 观享际 SKH 室内设计
01.
Hallway&Living Room
GuanXiangJi SKH Design
玄关&会客厅
用色纯粹,冷暖错落,层次分明。低饱和度的色调,以奶咖色和灰色表达情绪。温暖的布艺红色单椅在悄无声息之中,营造丰富的层次感。02. Kitchen GuanXiangJi SKH Design 西厨
03.
Dining Room
GuanXiangJi SKH Design
餐厅
04. Master Room GuanXiangJi SKH Design 主卧套房
05. Bathroom GuanXiangJi SKH Design 主卫
06. Guest Room
GuanXiangJi SKH Design
次卧套房
▽次卧一
▽次卧二
07. Living Room GuanXiangJi SKH Design 会客厅(画幅偏长请横向观看)
▽楼梯间
在流动的自然和结构的诗性之间找到交汇点,透过时间、空间、光影的叙事视角,令空间由内而外释放着直透人心的纯粹力量。
08.
Multi-purpose Room
GuanXiangJi SKH Design
多功能室
(画幅偏长请横向观看)
远离都市的浮华与喧嚣,惬意与灵感在此不期而遇。通过每个人的生活缩影,慢慢地捕捉重构展现一个家日常生活的真实与美好。09.Outdoor Landscape GuanXiangJi SKH Design 户外景观
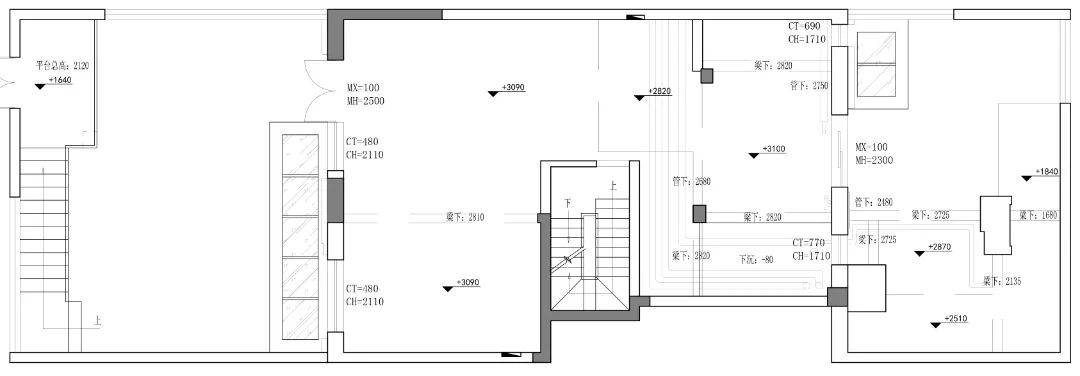
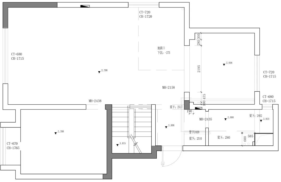
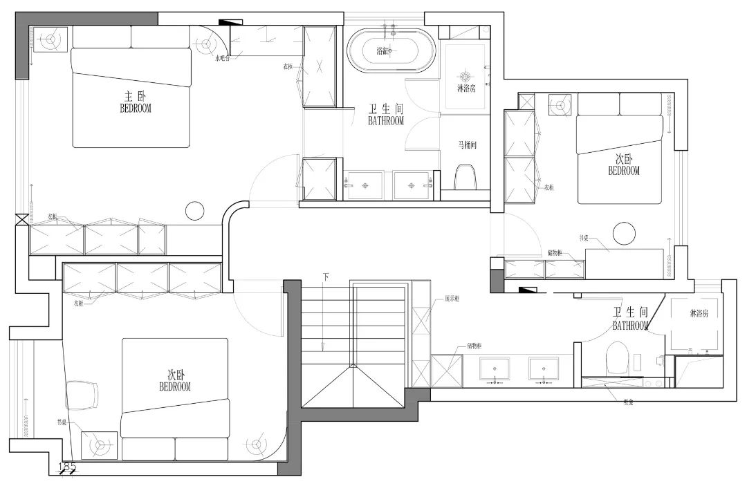
10. Design chart
GuanXiangJi SKH Design
设计图
▽ 原始结构图
▽ 平面方案图
客服
消息
收藏
下载
最近



















































