查看完整案例


收藏

下载
每次开始一个新的项目,我第一件事就是绘制居住者需求画像。
这个画像的建立基础就是和屋主的前期沟通,每次的需求沟通我都会提前设置一些问题,在比较轻松的氛围下,让屋主进行回忆。
比如:你希望新家可以拥有哪个你非常想要的功能?你对于目前居住的家最糟糕的记忆是什么?有没有一直保持的爱好呢?等等...
这些问题会设置顺序,不会让人感觉在窥探隐私。甚至有时候就是一次非常普通的聊天。
为什么这次我会突然提及屋主需求画像这个仅存在于我们内部的设计环节?
因为和我们今天分享的案例有关联,本案因为需求画像,让屋主真正明白自己的家应该是怎么样的。
我觉得这个案例特别适合刚刚准备开始装修的人群。
屋主夫妻二人均在事业的上升期,均属于行业精英。
平时工作相对忙碌,但他们又不想错过对孩子的陪伴。
因此最终决定采购了这套重点学区房,周一至周五基本会居住在这边,方便照顾陪伴孩子。
屋主现居住的是一套198平米的大平层,但居住的体验其实一般。虽然面积大,但储物收纳比较集中,又没有针对储藏的类型进行分类收纳。所以虽然面积大,但并没有很好被利用。加之夫妻二人均比较忙碌,平时不想把时间花费在整理家务这些琐事上。这也是他们想在这套学区房上找专业设计的初衷,希望美的同时可以让他们有更好的居住体验,并且可以节省整理家务的时间和精力。
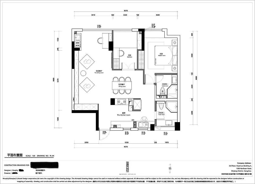
户型分析
原始结构:3室1厅
作为重点学区房,有这么大的面积确实实属难得。
原始户型为3房配置,功能布局相对纵向。客厅一条纵线、次卧一条纵线、主卧一条纵线。
这种布局不可避免会出现较长的过道,且视觉上会相对狭长。
对于本案屋主来说并不需要3房布置,更多的希望是亲子互动以及孩子玩耍的空间。
并且北面次卧空间包含了赠送空间仅约5m2,什么概念呢?
放一张1.2m小床就会占据近一半空间,如果作为卧室舒适度并不会好。
平面设计结构:2室2厅
(1)重构厨房、次卫、儿童房三个区域空间配比。把纵向空间变成组合式空间。(2)厨房和餐厅进行重新布局,优化家务动线。(3)保留南向2个卧室配置,北面房间进行功能重塑。
空间展示
客厅
整个空间的视觉横平竖直,构图简单干净,低矮形的家具让氛围更加弛缓放松。电视机的悬挂高度与沙发相匹配,晚饭过后和家人在客厅看看电视,分享彼此的今日趣事,和睦又惬意。
分布式收纳贯穿整体,除了在不同空间设计对应的收纳,还充分拓展了垂直空间增加储物。
运用立面隐式美学,定制嵌入式通高柜开阔客厅空间,视觉上更加统一。
这组柜体容量约为6m3,完全可以承担起“储物室”的功能。
这处绿植端景,目的是为了打破一整面柜体的刻板感受。
块面视觉化增加跳跃感,同时也带来一份宁静致远的空间韵味。
书房功能融入进客厅区域,首先是视线这个区域最佳,面向小区中心景观。
屋主辅导小朋友写作业,或者偶尔屋主办公,均可以在此完成。
书桌的悬浮式设计,目的是为了减少空间拥堵感,因为对面是一组柜体。
灯具的选择上也大有文章,磁吸轨道灯和内嵌射灯结合。更加简约,内嵌筒灯在白天几乎看不到它的存在,整体感会更加强烈。开放式厨房
开放式厨房以灶台为中心,厨房和餐厅洄游动线的设计。
原先的过道,赋予它新的功能,提升空间利用率。
同时减少动线折返,节省家务时间。
灶台与承重柱进行结合,串联了餐厨空间,另一方面弱化了柱体存在感。
餐厅顶面做了格栅设计,营造不一样的光影效果,避免灯光直射的刺眼,柔化空间氛围感。
一体化集成灶可以很好地解决开放式厨房的油烟问题,侧吸也不会滴油。
墨色手工砖墙是这个空间里的“刺激量”,与玄关大理石柱形成鲜明对比。
追求综合秩序并不意味着要一丝不苟或理性等分,有时候运用不同材质进行空间调配会有意外惊喜。
厨房的零散小物件比较多,操作台的上下方进行了固定收纳设计,就近收纳保持台面整洁。
厨房过道角度拍摄的次卫,长虹玻璃自带的雾面效果,有一种失焦的朦胧美。
儿童房
其他空间均以简约为主,儿童房在墙纸的选择上儿化些,如果后期需要更换,成本和便利性都比较低。
这套房子至少居住6年,孩子成长的同时,储物量也会增加。考虑到未来可能的储物需求,收纳设计依然是重要命题。“榻榻米床+衣柜”,收纳容积率会更高,整体儿童房的收纳容积有3.3m3。主卧
主卧空间隔音进行了双层处理,在飘窗下用灯带弱化其体量感。
客服
消息
收藏
下载
最近

























