查看完整案例


收藏

下载
原始平面图
平面配置 -
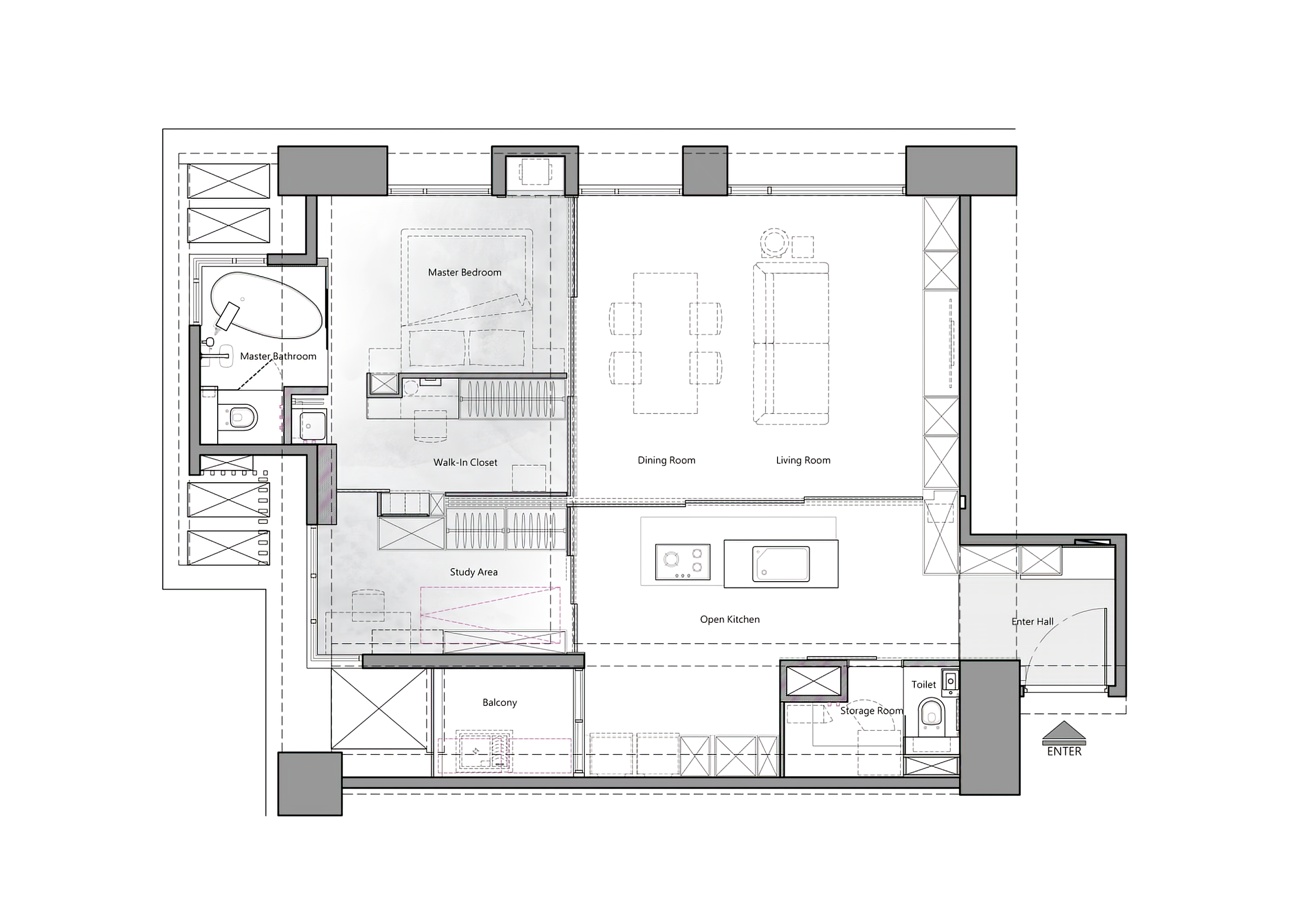
我们让空间切分成XY轴两个向度,左边为主要私领域-主卧-更衣室-书房兼客房-主浴,右侧为公共空间-客厅- 厨房-餐厅-储藏室兼客浴,在XY向度上我们用了八道门片来界定空间。
- 概念图 - 我们希望创造一个没有隔间墙但又有区隔的弹性空间,中间用了两个量体(柜子)当成界定,形成好几个多重回字型动线。 - 门的变化性 - 六种变化示意图,因为这八道门片,让空间可以形成6种生活型态,随使用者不同需求而变化。
[ 全开放模式 ] 当拉门全部打开状态,两人生活在家最自在的状态,没有隔间的穿透感
[ 访客模式 ] 主卧与更衣室的拉门关上,将客厅与厨房开放出来,不让客人看见卧房
[ 电影模式 ] 想要放松看个电影,把拉门全部关上让客厅呈现包厢感
[ 睡眠模式 ] 主卧/更衣室/书房拉门关上,只有预留房间与更衣室,睡觉空间显得更有安全感
[ 房客模式 ] 客人偶尔来过夜,可以将书房隐藏掀床拉出来,其他空间拉门都关上
[ 工作模式 ] 男主人需要在家工作时,可以将书房及厨房拉门关上,让厨房与书房变成同一个空间
整个空间都打开状态,地上的灯带也暗示内外之间的公私领域区分;书房拉门关上後即变成工作模式状态;厨房拉门关上後,让家里马上变成电影院,也可将主卧室延伸到客厅。
客服
消息
收藏
下载
最近

































































