查看完整案例


收藏

下载
门 厅
| Lobby
入户玄关、次卫、客卧完全打开
减少了进门便有的小户型既视感
入户的次卧功能缩小
仅作为特殊情况下客人留宿使用的半个卧室
玄关的柜体设计保证了屋主充足的收纳需求
客 厅
| Living Room
厨房的打开
与餐厅、客厅进行结合
形成了与主卧套房相平行的南北空间轴线
并且将主卧体块与次卧体块进行分割,动静分离、主次分离
沙发兼具了细腻纹理质感和复古怀旧的感觉
电视背景墙
| TV Wall
餐 厅
| Dining room
餐厅白色飞碟吊灯:&tradition
主卧门旁的吊线灯:flos
可以恣意调整高度和投射方向
符合屋主多种照明需求
每一处细节
都在整体的基调中寻求简约的灵动
主 卧
| Master room
主卧采用隐形门的设计
与格栅背景墙融为一体
房屋西侧的主卧、次卧、主卫全部打开,共同构成了南北方向的套房关系。
卫 生 间
| Toilet
主卫的三分离设计,让整个主卧套房的每个功能被使用时都具备相应的仪式感。
客 卧
| Guest room
大猩猩落地灯:Qeeboo
现代雕塑摆脱古典的束缚
为整体空间增添了几分自然和灵动
客卧的两扇移门
打开时可增加空间的通透性
不同的功能区域视觉和行为之间沟通性也会增强
次卧卫生间兼顾了洗衣区的功能
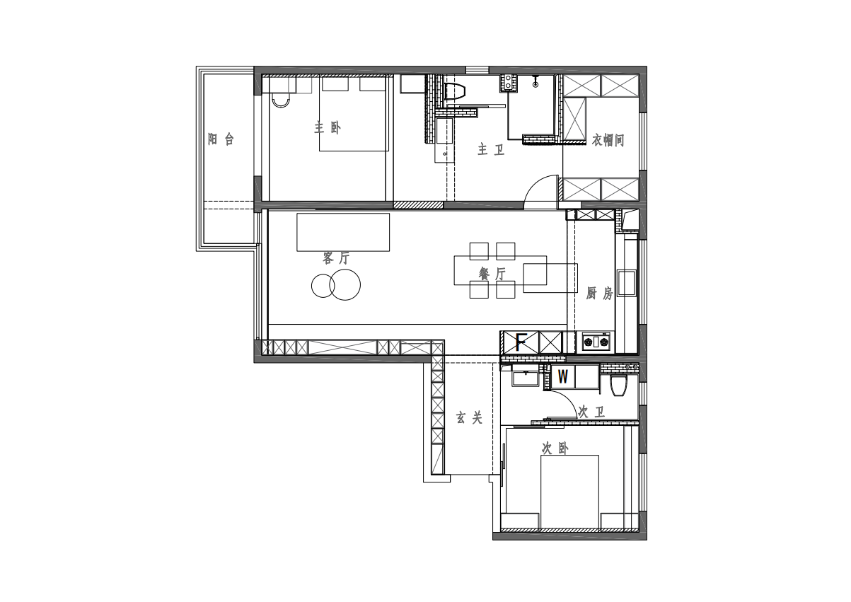
户 型 图
| Layout diagram
改造前 / before
改造后 / after
客服
消息
收藏
下载
最近
























