查看完整案例


收藏

下载

翻译
Architects:Studio Saxe
Area :5544 m²
Year :2021
Photographs :Elias Porras, Andres Garcia Lachner, Alessandra Tanzi
Builder :Prodeyco
Structural Engineer :Sotela Alfaro LTD
Electromechanical Engineer :CIEM
Landscape :Saxe Landscape
Client : Saxe Development Group
Design Director : Benjamin G. Saxe
City : San José
Country : Costa Rica
Studio Saxe decided to design and develop its first vertical sustainable building, proving that it is financially viable to create an architecture of value-focused on quality of life through large terraces and planting, within the constraints of the local economy.
Concept. Studio Saxe’s first vertical development was conceptualized as an opportunity to bring the typical garden to vertical construction, increasing the quality of life for inhabitants in built-up cities in the tropics. Automated irrigation systems allow for vegetation to thrive on terraces creating a sensation of indoor-outdoor living.
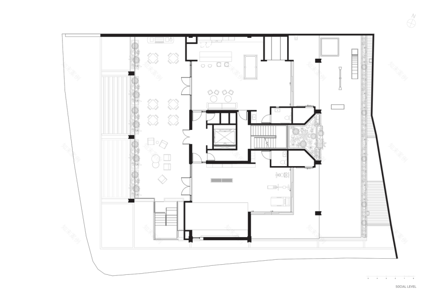
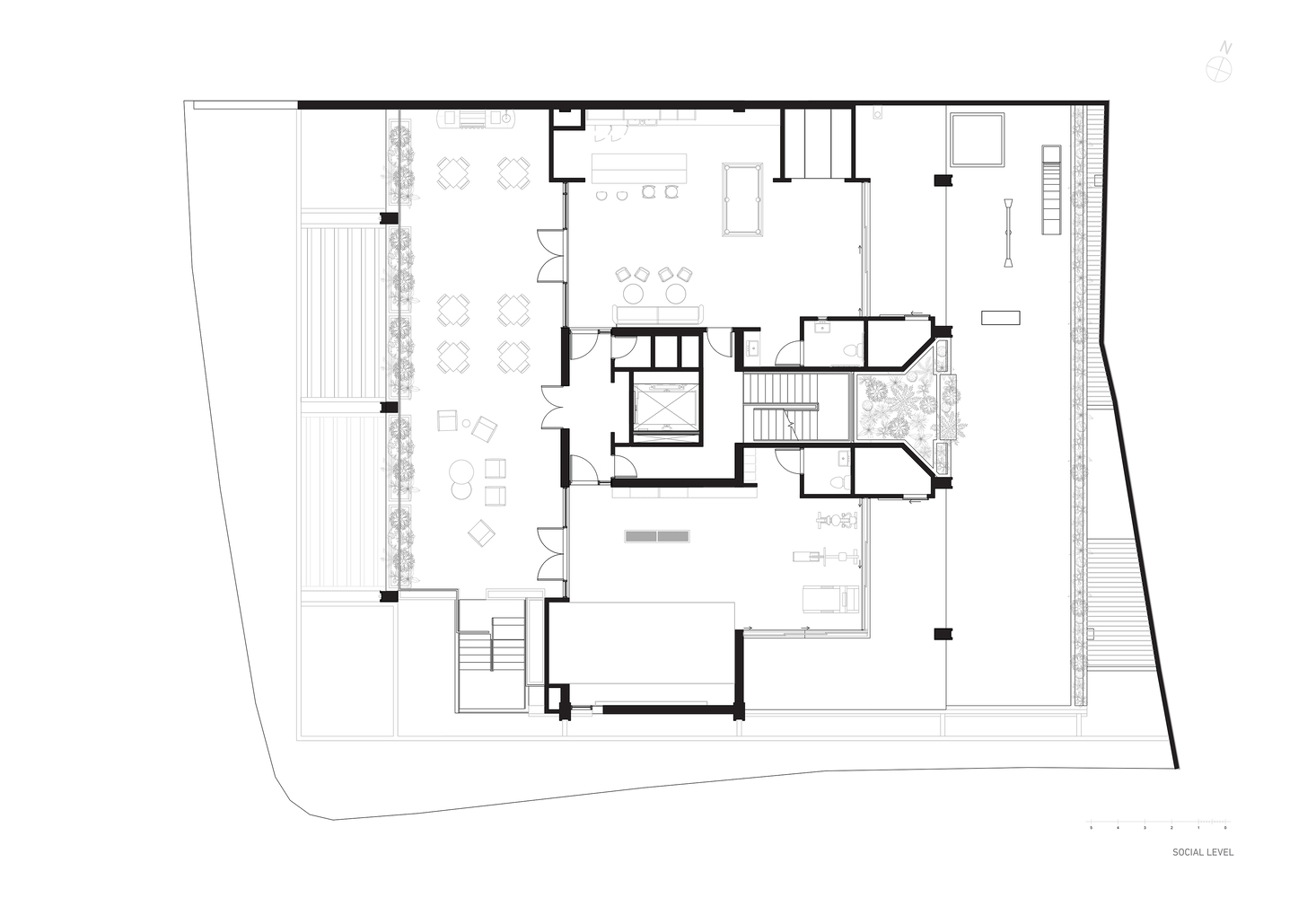
Design. By creating distinct terraces on every level, the building gives personality to each dwelling, allowing for every apartment even when the interior layout is the same to have a diverse and interesting relationship to the outside through terraces that move from side to side. This allows not only privacy in the street but also protection from the sun and rain.
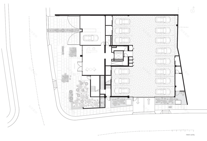
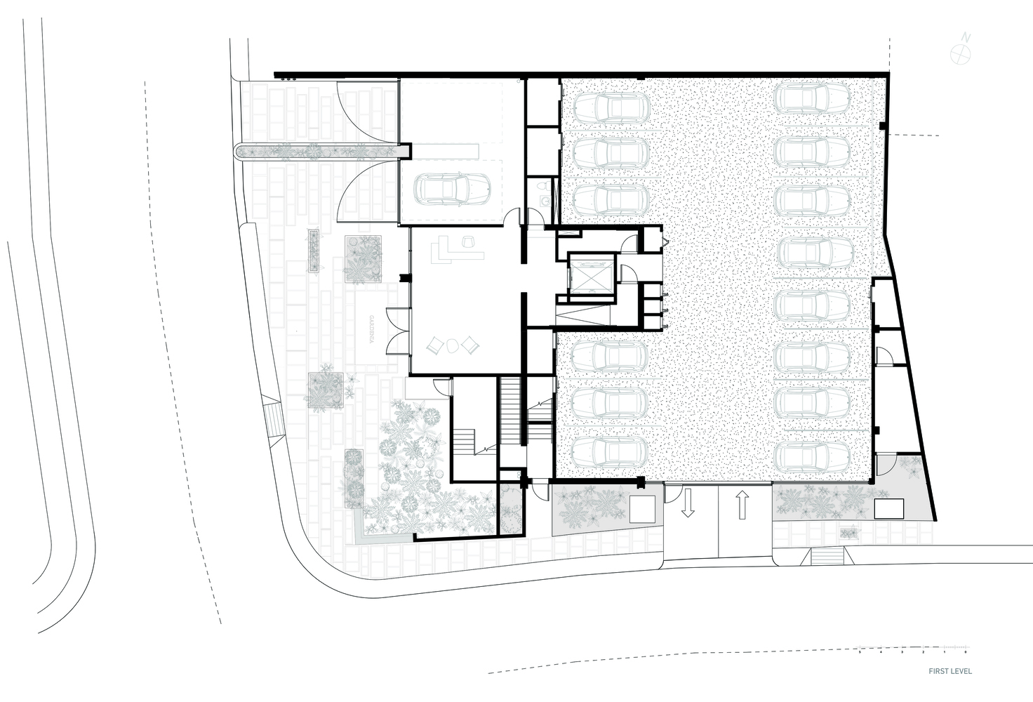
Construction. Gardenia was conceived as a concrete structure that utilized prefabricated techniques, giving the ability to be assembled quickly on-site thus allowing for the cost of the units to remain within a reasonable market value. This confirmed it’s possible to have large terraces, vegetation, parasols, and many other technologies within a specific market thus bringing the perception of the possible buyers to a new standard.
Landscape. Studio Saxe's landscape design was key in order to creating a building that not only brings the wildness of the natural landscape to the city but incorporates passive technologies such as water harvesting and other strategies like irrigation, plant control, and plant biology. This created a true echo system with a diverse variety of plants that allow for birds and threatened species such as bees to be part of the building's natural environment to establish a harmonious coexistence with humans.
Interior Design. Studio Saxe's interior design department coordinated all materials, kitchen design, bathroom design, and living and communal spaces to be cohesive with the architectural theme of an urban tropical glamorous development. This sustainable and bioclimatic design allowed for the cohesion of materials and colors inside-out creating a harmonious building that seems to be designed by and for people with like-minded interests.
Sustainability. Gardenia was conceived through passive design strategies like temperature control allowing cross ventilation to happen throughout each apartment thus not having corridors between units. Large terraces protect from the blazing sun at certain times of the day which are combined with parasols that also allow fractured light to seep through and provide temperature control. Vegetation on every terrace allows for materials to cool down quickly. The plants within the building are irrigated through special filters that collect rain and recycled water used by the dwellers to create a self-sustaining cycle. The common area is located on the second floor which has an orchard with edible plants that the dwellers can collect for personal consumption.
▼项目更多图片
客服
消息
收藏
下载
最近











































