查看完整案例


收藏

下载
作为 Habif Architecture,我们的首要任务是通过正确的设置满足客户的需求,创造清晰、永恒和实用的空间。自 2005 年踏上征程以来,我们一直以年轻而充满活力的视角在民主的设计环境中服务于设计和应用领域。
我们在设计项目时意识到我们正在设计一种生活,而不仅仅是空间。我们的目标是,我们所做的每一项工作都正确地反映了我们雇主的身份,同时也是一个“哈比夫建筑项目”。
Habif Architects 土耳其博斯普鲁斯海峡别墅
博斯普鲁斯海峡别墅项目是由独立部分组成的历史轨迹的独立部分之一的更新项目。我们在项目中的目标,包括 2 个主要楼层和 1 个顶层公寓。
目的是在我们根据使用需求创建的计划流程中,用现代元素更新建筑,尽可能保持其特色。大楼的所有电气、机械和照明项目都进行了更新,以满足当今的需求。
随着时间的推移,以前翻修中添加的元素已大部分被移除,结构已恢复到原来的状态。这样,带有时代痕迹和特色的建筑和装饰特色与我们所构建的当代设计理念和艺术作品形成了适度的对比。
项目名称:Boğaz ‘da Köşk
项目面积:400 m2
项目地点:Istanbul
项目摄影:İbrahim Özbunar
Habif Architects
土耳其 SB Evi 别墅概念
这座房子位于切什梅的 Ovacık 村,位于俯瞰大海的多风山坡上,提供了一个逃离城市生活混乱的机会,进入一个完全不同的世界。
房子的繁忙日程不允许主宰自然,变成了一个巨大的邪教。相反,这个程序被分成不同大小的体块,放置在土地较低层的橄榄树上,而不影响土地的自然坡度和结构,更准确地说,这些体块被留在了自然坡。
于是,这种礼貌的姿态,既不迷失在大地,又不在大地面前,也创造了一个完全开放的结构,它的结构是碎片化的。花园不仅是放置房屋的区域,房间开放的走廊也成为房屋的主要流通区域。景观、绿化和自然已经成为家庭生活中不可或缺的一部分,而不仅仅是透过大窗户看到的图像。
另一方面,室内设计与大自然的灵感相得益彰,形成鲜明对比。它被设计成以大地色调为主的柔和、深邃和明亮的空间。虽然外部使用的天然石材、生锈的金属和裸露的混凝土在其自然状态下被带到室内,但它们与温暖的木质色调和带纹理的石膏表面相结合。尽可能地以最少加工和最自然的形式使用房屋内部和外部的每种材料和元素。所有配饰和手工艺品都在这种感觉中找到了适合自己的位置。
因此,一座可以在不同层次上提供不同生活机会的房子,将家庭生活向花园开放,并使其成为生活的主要元素,这要归功于它与土地的坡度和结构的和谐。
Habif Architects
这座房子是为一个位于伊斯坦布尔巴赫切科伊的年轻四口之家设计的。我们概念的主要动机是为生活区提供宽敞的开放空间,并通过大窗户和露台将内部与外部连接起来。
从外面看,房子通过混凝土和石材混合的立面材料给人以强烈和安全的感觉,但内部却提供了非常开放和通风的空间,面向后方的私人花园。一楼的大窗户装有推拉门,可通向泳池边的露台,让生活和用餐空间充满自然光。
在设计时,无论是内部还是外部,都尽可能地保留了材料的自然结果。耐候钢花园墙、手工混凝土-石材混合立面、木材和大理石的自然外观已被用于在室内外营造温暖和“生活”的氛围。所有的家具都被设计成内置的内饰。
它主要是黑色和天然涂油橡木、涂漆中密度纤维板的柔和色调的组合。金属元素大多选择黑色,尤其是铜色和缎面金属色调。气氛主要是以简单的方式创造的;细节、家具和几件艺术品为室内增添了色彩。
作为建筑元素,设计了一个雕塑楼梯,将三层连接起来,并涂有天然油橡木,为体量营造出温暖的氛围。扶手已涂成黑色,形成一条线性痕迹,以清晰地感知形式。
在花园里,游泳池旁边,设计了一个泳池房,可容纳生活空间、小厨房、户外休息室、健身房、更衣室和卫生间。在前面的墙壁高度滑动窗户允许自然光满足内部空间,并根据需要在游泳池旁边创造一个开放空间。
Habif Architects
位于伊斯坦布尔的“E Pool House”项目旨在利用土地的高差在该地区创造一个平静舒适的生活空间。它采用钢结构建造,依偎在体量中。
外立面被绿色植物覆盖,与自然融为一体。它包括一个开放式的起居区、浴室和储藏室。就餐区、就餐区和壁炉区相互之间形成了一种亲密的统一。其宽阔的细木工立面面向它前面的线性游泳池,它让日光以最好的方式进入。
在以自然状态使用木材和混凝土等材料的地方,希望营造一种宁静、舒适的氛围,让居民远离城市的现实。凭借其三维、纹理自然的饰面,壁炉是室内唯一的独特元素。它是城市中一个四季皆宜的逃生空间,拥有合格、通风、明亮的氛围。
Habif Architects
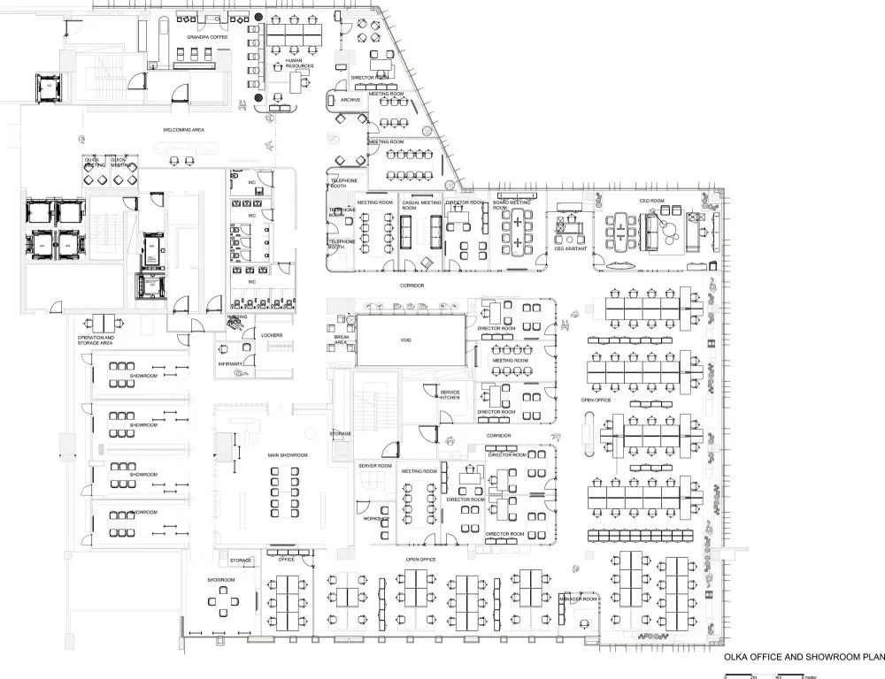
该项目被设计为 Olka 的办公室和陈列室,是土耳其众多国际运动服装品牌的主要进口供应商。从头开始,该项目最大的挑战是处理可用空间的限制。我们必须在天花板高度非常低且只能从一侧接收直射阳光的办公楼层中创造一个舒适宽敞且阳光充足的空间。
在这种情况下,第一步是制定一个布局计划,其中封闭的房间位于较暗的内周边,以便将阳光毫无障碍地引入开放式办公室。
所有的技术决策都是在一开始就做出的,目的是创造尽可能高的天花板高度。在使用光滑的混凝土表面来增加垂直平面的宽敞感的同时,我们试图在水平面上创造出更加温暖和触感的效果。这些表面上的材料采用触觉和感应方法进行处理。
这些表面上的每一个组件,例如一块天然陶土砖或一块木板,尽管看起来彼此相似,但都是独一无二的。它们聚集在一起创造出整体和有节奏的表面,象征着独特的个体聚集在一个地方,形成了整体的 Olka 团队。
由于办公室地处偏远,工人们白天没有机会出去喝咖啡。为了修改这一点,主要休息区的设计方式与办公室的其他部分不同。这家咖啡馆实际上是 Grandpa 的分店,Grandpa 是土耳其领先的第三波咖啡连锁店之一。这为办公室的居民提供了一个急需的逃离工作的场所,营造出一种“走出去”的感觉。
陈列室位于办公楼层最黑暗的区域。我们试图将这种明显不利的情况转化为我们的优势。我们为光的游戏创造了一个黑暗的背景。
来自明亮陈列室的光线通过木制百叶窗和彩色玻璃立面过滤,在黑暗的走廊中重叠和穿插。另一个有触感的表面在这里找到了它的位置,在由粗糙结构组件创建的主陈列室的墙上。
最终,我们认为我们得到了一个开放、宽敞、明亮的办公空间,让上班族可以愉快地工作,而不会感受到现有空间和位置的任何劣势。通过处理不同纹理和节奏设置的材料,我们创造了一个办公空间,它不仅可以吸引眼睛,还可以吸引“皮肤的眼睛”,并在触觉方面脱颖而出。
Habif Architects 土耳其特兹曼控股办公室
主要目标是反映 Tezman Holding 强大而成熟的特点,该公司的历史可以追溯到 1948 年,并在办公室设计方面在土耳其取得了许多第一。在这样做的同时,我们更喜欢突出 Tezman 更温暖、更吸引人的本质,避免产生冷漠和遥远的效果。
该集团的运营结构由许多公司和部门组成,这些公司和部门已经分布在一座旧建筑的不同楼层,不仅因为这个项目而焕然一新,而且还被合并为一个大楼层。
入口处坚固而巨大的 travarten 接待台突出了 Tezman 的先驱子公司 Tezmarin 品牌,其柔软而有节奏的结构灵感来自海浪。虽然属于 Tezmarin 的游艇销售区靠近这个入口,但这些空间之后是属于控股经理的房间。
这些封闭的房间反映了用户的线条,每个人都有不同的品味和方法,由于需要隐私,形成了长长的聋人墙。为了软化和温暖这种震耳欲聋的效果,设计了一个以不同角度放置的有节奏的木质立面。在这个立面周围,展示了 Tezmarin 赢得的奖杯和奖项的区域,以及 Tezman 的许多艺术作品和特殊的平衡收藏品。一个休息区,属于控股公司的不同公司可以聚集在一起,位于该计划的中心位置。
Habif Architects 土耳其太平洋工程办公室
对于搬迁新址的太平洋工程,按照公司的工作原则,我们通过中心的开放式办公区和围绕它定位的会计、会议室、行政室、服务区解决了矩形办公室平面图的问题。
为了创造一个反映公司在该领域的经验及其与时俱进的创新方法的办公空间,我们通过强调材料和形式、垂直表面和各种艺术作品上的彩色涂层来支持我们想要突出的单色总体氛围和谐。我们的目标是在开放式办公区制作一面墙,以激励员工、访客和业务合作伙伴,并通过金属装置展示公司 20 年历史中选定的项目,从而为公司形象做出贡献。
客服
消息
收藏
下载
最近





















































































































































































