查看完整案例


收藏

下载
棕榈泉是美国洛杉矶西南边的一座沙漠度假城市,位于科罗拉多沙漠的科切拉山谷内。该市占地约240平方公里,属于炎热的沙漠气候,每年有超过300天的日照和4.93英寸(125.2毫米)的降水。冬季很温暖,大多数日子都达到21°C,因此是冬日避寒胜地。
由于每年的晴天数、平均高温和每日低温,这一地区全年的气候都适合许多棕榈树生长,而在山谷中存在许多泉水滋润下的绿洲,因此得名棕榈泉。
棕榈泉拥有世界上最好的现代主义建筑收藏之一。二十世纪中叶,来自附近洛杉矶和全国各地的富裕客户和名人在这个度假城市委托了许多著名的建筑师建造度假别墅,留下了非常多“中古风”(Mid-century Modernism)的现代主义建筑。这些建筑中的许多都具有为应对明亮和干旱的气候而设计的属性——包括悬空的屋顶平面和遮阳的阳台——并被共同视为 "沙漠现代主义 " (Desert Modernism)的例子。除了豪宅,建筑师们也在此处探索了当时最先锋的预制化住宅的建造,力求为中产阶级建造可负担的住宅。
Kaufmann House_ Richard Neutra, 1946
考夫曼住宅是老埃德加-J-考夫曼和他的家人逃离美国东北部严寒的度假屋。在房子的中心是客厅和餐厅,是房子和家庭活动的核心。房子的其余部分像风火轮一样在每个红心方向都有分支。从房子的中心出发,每个分支都有其特定的功能;然而,房子最重要的方面是面向东/西的,而支持性的功能是面向北/南的。北翼和南翼是房屋中最公共的部分,与中央生活区相连。南翼由一条有盖的走道组成,从房子的中心通向车棚。北翼是客人的宿舍,可以公开进入,但由于与房子的其他部分分开,所以保留了他们的私人需求。房子的西翼是服务翼,它与其余的开放式设计相当隐蔽。东翼是房子最私密的地方,因为它是考夫曼的主人套房。房子的游泳池为房子的整体设计创造了一种构图上的平衡。房子本身是不平衡和沉重的,因为两翼的比例不一样,但随着游泳池的增加和放置,整个设计有了一个凝聚的平衡和和谐。
Frey House II _Albert Frey, 1964
弗雷之家II是建筑师阿尔伯特-弗雷(AlbertFrey)的第二座自宅,最初只有800平方英尺,是沙漠现代主义的一个紧凑而复杂的典型代表。在设计之前,弗雷花了一年时间研究阳光对房屋预期的山坡位置的影响。1963年开始施工时,弗雷选择了钢框架、带肋铝板和玻璃墙作为他的建筑材料。作为车棚的屋顶,是家里的游泳池和小平台,内置的椅子可以看到下面广阔的山谷。与风景一样引人注目的是作为住宅的起居空间和睡眠空间之间的天然隔断的巨大巨石。弗雷没有移走这段突起的山体,而是在它周围和里面建造。为了保护这座山,弗雷巧妙地利用了这个小空间,而不是扩大他的建筑场地。家里几乎所有的家具都是内置的,储藏室、书架、保险箱和唱片机都有效地融入了墙壁、地面和家具。
Elrod House _ John Lautner, 1968
该住宅位于阿拉比湾社区的一个面向北方的高地上,面向北方,可以俯瞰城市和科切拉山谷。劳特纳(John Lautner)于1968年为美国设计师亚瑟-艾罗德(Arthur Elrod)完成了这所房子。该住宅以一个直径为60英尺(18米)的圆形客厅为中心,有一个室内外游泳池。这个空间被一个巨大的车轮状天花板所覆盖,天花板由一组交替的玻璃和混凝土段组成,并在其外缘包裹着一条金属带。光线通过倾斜的金属片进入头顶,形成玻璃的框架。弧形的滑动玻璃墙围绕着生活区的前部,通向露台和游泳池,都面向风景。室内有两个浅棕色的大长凳,其形状也是按照空间的几何形状设计的。与之相配的地毯与头顶上的圆形天花板相映成趣,一面的墙边有一个壁炉。这个住宅出现在了《007:诺博士》中,邦德和首位黑人邦女郎在此处发生了剧烈的打斗。
Swiss Miss Houses _Charles DuBois, 1961
瑞士小姐住宅是一系列建在棕榈泉的Vista Las Palmas社区的住宅,该社区在20世纪50年代由建筑商Joe Dunas和Alexander的建筑公司开发,该公司也开发了唐纳德-韦克斯勒(Donald Wexler)设计的预制钢结构房屋。为了满足开发商的愿望,杜波依斯(Charles DuBois)将他的住宅系列设计成低矮的单层住宅,由从地面直接升起的戏剧性的A型框架屋顶切开。倾斜的框架横跨住宅的整个宽度,在入口处创造了有盖的门廊区,在后方创造了面向游泳池的遮阳露台。在每所房子里,结构形成了一个通高的空间,用于主要的生活区,而其余的设施则占据了两边的单层体量。对于杜波依斯在哪里获得了他的设计影响,却有很多争议。人们常说,瓦片覆盖的坡屋顶类似于瑞士滑雪小屋为了使雪落下的坡屋顶,因此被称为瑞士小姐住宅。至今仍有超过15坐这样的住在存在于该街区。
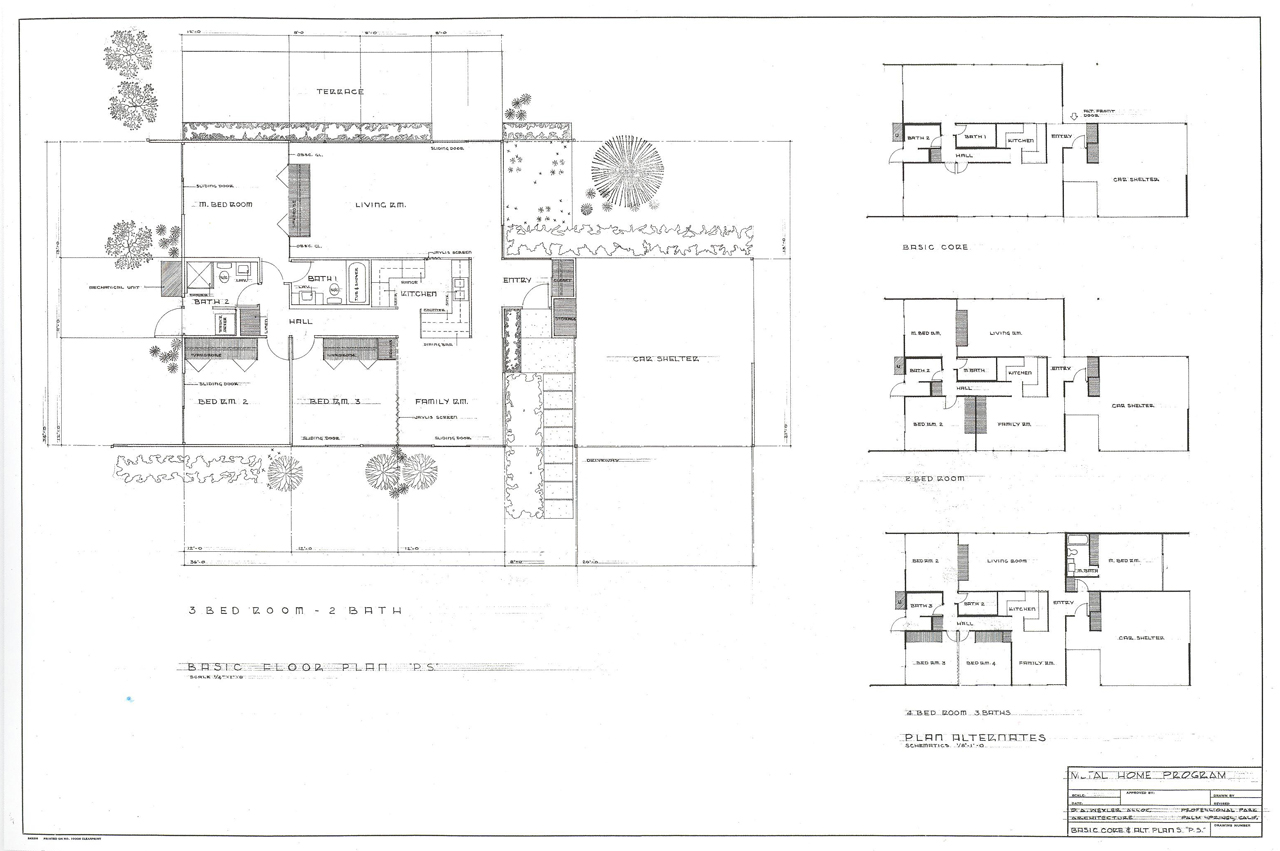
Steel Houses_ Donald Wexler, 1961
建筑师唐纳德-韦克斯勒(Donald Wexler)在棕榈泉建造的七座实验性钢结构房屋是可定制预制房屋的早期范例,以提供一种低成本、易于复制和适合沙漠气候的住房模式。尺寸为1400平方英尺(130平方米)的标准原型是为容纳两间卧室而建造的,但也可以扩展到包括三间或四间卧室,适合更大的家庭。每座建筑都由轻质金属墙体系统和三种钢制屋顶中的一种组成,包括白色 "蝴蝶 "屋顶和悬挑的平屋顶。结构部件在洛杉矶工厂制造,然后运到棕榈泉,在那里进行现场组装,并固定在混凝土板的基础上。据估计,其中三栋房子的结构可以在8小时内完成搭建。整个房屋的总建造时间,包括额外的玻璃和门,是30天。
为了进一步加快进程,建筑师设计了预制单元来容纳厨房和浴室,用吊车直接吊到现场韦克斯勒的原则是即建筑和设计应该能够适应和灵活地应对各种情况。虽然具有相同的框架,但这些房子有不同的外观。大面积的玻璃被安装在钢墙系统中,以根据选址充分利用外面的景色,而一些住宅包括游泳池。在内部,钢架允许开放的平面图和适合居民要求的不同布局。
毕业于加州大学伯克利分校
客服
消息
收藏
下载
最近

































