查看完整案例

收藏

下载

翻译
Architects:Srijit Srinivas - ARCHITECTS
Area :117 m²
Year :2022
Photographs :Justin Sebastian
Lead Architect :Srijit Srinivas
Landscape Contractor : Jacob Klavara
Design Team : Remya Raveendran, Sriya S., Deepika S.
Text : J. George
Civil Contractor : Judeson Antony
Clients : Mr. Roopesh Ramesh & Mrs. Meera R.
Country : India
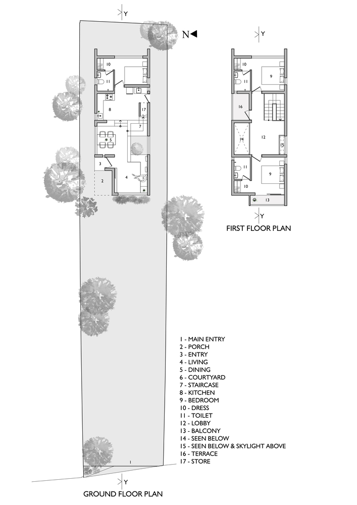
The Clients (a couple working as IT engineers) presented an extremely narrow site in Thiruvanthapuram as part of their design brief. The inherent challenge was in accommodating a generous 117 sq.m. of built-up area on the elongated 283 sq.m. site, which upon excluding mandatory setbacks on the sides, elicits just 4.8 m (or a mere room-width) of working clearance.
The resultant design solution delivered living, dining, and kitchen areas on the Ground Floor along with an ensuite bedroom. The First Floor accommodated the ensuite master bedroom with a balcony and a walk-in wardrobe, a living room for the Client to conduct mridangam (percussion instrument) classes, as well as an additional ensuite bedroom with a walk-in wardrobe, which could also alternatively function as a Study. A full-sized car porch was not achievable given the paucity of plot space, but alternatively, a partially covered nook was devised affording all-weather access from the car to the front door.
Despite the narrowness of the building envelope, the interior spaces did not compromise on the ingress and movement of light and air circulation. The design also took advantage of the longitudinal slope of the site via a stepped-down floor plate following the natural contours of the land, and in the process optimized foundation costs.
On entering the house, one is welcome by an internal courtyard whose verdant green foliage is bathed with natural light from the overhead skylight feature. This miniature ‘oasis’ provide the emotive focus, visually connecting the living room and dining space on either side. The minimalistic staircase in exposed concrete wraps around the green space leading upwards, whilst also providing visual interest via its restrained contrasting of recesses and quiet protuberances.
The kitchen is located towards the rear of the site and sited at a lower level. The careful use of vertically expanded internal volumes where possible, and of a mutually inter-flowing functional triad of spaces such as the living, dining, and kitchen (and tied together vertically by the concrete stairwell) successfully negates any perception of the volumetric constrictions from the narrow building and site envelopes. The double-height configuration of the dining room connects with the upper floor plan and accentuates the overall visual experience of the building.
The light-touch minimalist approach also finds expression in the various interior design elements like wardrobes, shelving, fenestrations, etc.– all pared back to the bare minimum required. The bedrooms- through with careful space planning, though small have space for sleeping as well as an integrated study area and walk-in wardrobes. The upper floor living room with its roof-mounted skylight endows the space with a warm character to complement its intended use as an informal mridangam training space. The upper floor master bedroom opens out to a balcony with louvers providing privacy and cool breezes, and an invigorating interplay of light and shadows across the day.
This house showcases the power of purposeful spatial design and planning to deliver deft functionality and charm, even inappreciably constrained plots.
▼项目更多图片
客服
消息
收藏
下载
最近



























