查看完整案例


收藏

下载
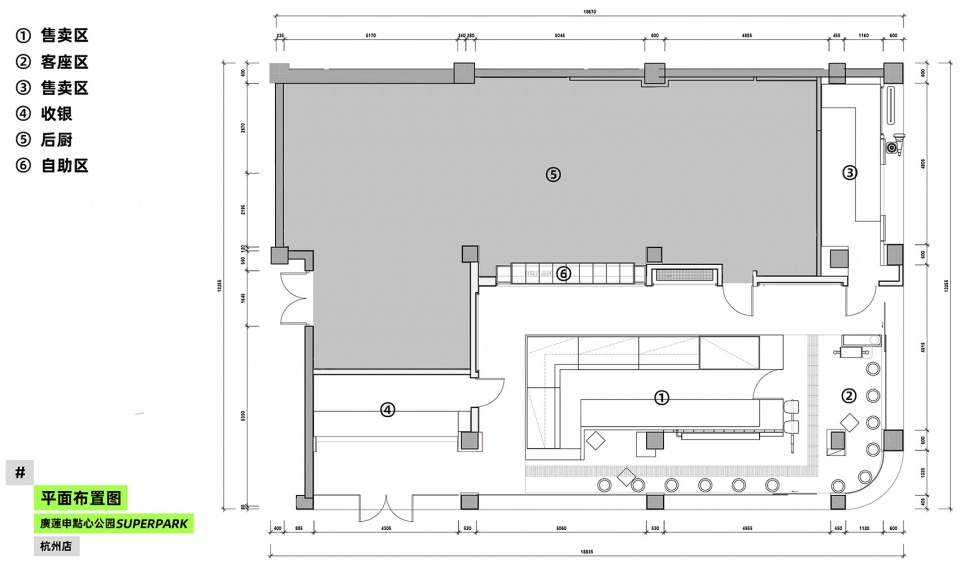
项目名称:廣蓮申點心公园|杭州店
项目地点: 杭州市上城区东坡路46号
主持设计师:巫国源
设计团队:奕豪、BOBO、小鱼、小鸣、张浩、吕哥
项目业主:廣蓮申
主要材料:不锈钢、金属烤漆、地坪漆、红砖
室内面积:213m2
完工时间:2022.02
Project name: GRAND LIZ SUPERMARKET | HangZhou
Project location: No. 46, Dongpo Road, Shangcheng District, Hangzhou City, Zhejiang Province, China
Director: Guoyuan Wu
Project team: Yihao, BoBo, Xiaoyu,Xiaoming,Zhanghao,Lvge,
Client: GRAND LIZ
Main materials: Stainless steel, metal paint, floor paint, red brick
Indoor area: 213 square meters
Completion date: Feb. 2022
Photography: OR Design
客服
消息
收藏
下载
最近


















