查看完整案例


收藏

下载
在专业的领域做自己喜欢的事情,赋予每一个项目新内容和新发展。
——设计师Batievska Ivanna
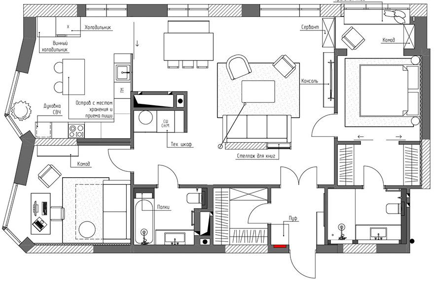
【Time 110】项目是
Batievska Ivanna
的最新作品,在这个110㎡的家中,你会看到和谐的搭配、有序的色彩、恰当的细节和舒适的布局……
设计从屋主实际生活出发,重视核心区互动体验。满足女主人喜欢烹饪的爱好,同时关注独立工作区的需求。当有客人来访时,宽敞的公共区域也可以给朋友最佳的来访体验。
玄关开启家的初印象,狭窄的空间由落地换衣镜在视觉上进行拓宽。进来的那一刻,便被略带禅意的设计吸引。原始感的木质小桌在异形花瓶的衬托下更显质朴,手掌形的换鞋凳似拥抱和接纳每一个回来的人。所谓“归家”,便是如此,归于平静,隐于喧嚣。
进入客厅的双扇门选择质地轻盈的材料,在颜色和用料上平衡了空间的厚重感。
Public area
设计师用三面镜子将客厅中无法拆除的墙化为无形,使其藏于空间中的同时又增加了一种“超现实”的感觉。核心区融合餐厅、客厅,并与宽敞的厨房连接与无形,使空间的通透感进一步提升。唯美的钓鱼落地灯从沙发后身探出头来,似与桌上鸽子造型的饰品对话——唤鸟归巢,独有一番生动趣味。
简约的浅色原木餐桌,使餐区从公共区域中独立出来又能时时与厨房、客厅互动,同时避免了沉闷、厚重感。餐区面对窗户,视野上更加开阔,在无形中给用餐的体验感进行加分。
使烹饪成为一件美事美景,清丽的颜色、葱郁的绿植和明亮的落地窗都是必不可少的。宽敞明亮的厨房空间可以满足任何烹饪的需求,迷你型岛台设计增进了用餐者之间的亲密度,多功能收纳柜提供日常存储服务,嵌入式玻璃门酒柜补充了一些浪漫的氛围。
Master bedroom
主卧室利用靠窗的墙壁做出了一个小型阅读角落,并在这里隐藏空调和收纳空间。木质双开拉门背后是小型衣帽间,用料的质感和开门的方式赋予了出入衣帽间这一动作充足的仪式感。
书房是一个灵活性极高的区域,屋主可以根据自己的需要改变成客房、多功能房、衣帽间、儿童房。
Easter eggs
EXTENSION READ
热烈与深沉的对话 灵动巴西
小空间做大设计 教科书级别的两室一厅
客服
消息
收藏
下载
最近











































