查看完整案例

收藏

下载

翻译
Architects:urselmann interior
Area :74 m²
Year :2022
Photographs :Magdalena Gruber
Manufacturers : Troldtekt, Bosch BlueMovement, Giroflex, Hey-Sign, Honext, Kvadrat / Really, Miele TheUpgreat, WYE DesignTroldtekt
Design : Petra Jablonická
Project Coordinator : Liz Theißen
City : Düsseldorf
Country : Germany
The construction industry is responsible for 60% of the total waste generated and is one of the most resource-intensive sectors of the economy. A necessary transformation towards a sustainable circular economy is inevitable. urselmann interior avoids the "design flaw" of waste - because, in the designs of the Düsseldorf-based interior start-up, waste equals nutrients.
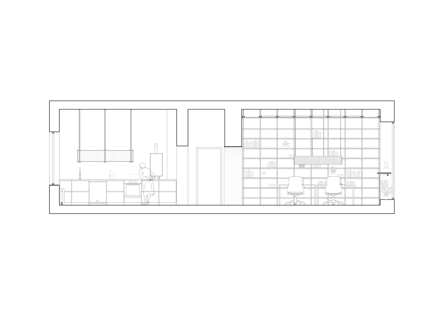
The young team in their own office proves that already today, building completely circular is possible. The entire interior design consists of healthy materials which can be dismantled according to type and are therefore permanently recyclable. The goal is a sustainable interior without compromising modern aesthetics. The principles of functionality, design and the use of sustainable materials are combined.
"During the renovation of the office, the dismantling of the damaged ceiling and one layer of the floor alone generated about 4 tons of waste on only 74m² space. This could only be incinerated or landfilled due to its low quality." Until now, the reuse of materials has not been integrated into the design process. "Already in the design phase, our focus was to avoid the construction waste," said Sven Urselmann, owner of urselmann interior.
All materials and products used are either biodegradable (Biosphere) or upcyclable in the technical cycle (Technosphere) or already used construction products (ReUse). The joints on the furniture are made mechanically to avoid the use of adhesives. Following the idea of urban mining, all materials used were listed in a material passport and published for future use. Some products(e.g. radiators, lighting) have been sourced through the building materials platform Concular.
In addition to the office, co-working space, and showroom, the space can also be seen as a testing laboratory. "Developing our own office gave us the freedom to experiment with new materials. This includes the natural learning process of how different materials behave over time" says Sven. "The interaction was also super exciting for me as a trained carpenter."
At the end of 2020, the team of designers and craftsmen started to rethink their own planning and manufacturing processes. The goal, step by step, is to make a complete transition to a circular economy based on the Cradle to Cradle school of thought and design. According to the principle "nutrient remains nutrient", all materials used should be able to circulate permanently in one of the two cycles. At the beginning of the design process, all constructions must already be designed to be circular and decomposable, as well as collectible and separable by type, in order to enable upcycling at the end of the life cycle.
▼项目更多图片
客服
消息
收藏
下载
最近





































