查看完整案例

收藏

下载
苏江
HB禾本设计创始人/设计总监
●
绿蚁新醅酒,红泥小火炉。
晚来天欲雪,能饮一杯无?
——《问刘十九》唐 白居易
❍
红庐二字来源于白居易诗《问刘十九》,中国人的“友情”大多是寄情于山水的,诗中的绿蚁、红泥、火炉是生活之器,而天欲雪是自然之情。所以,红庐这个中餐厅的空间基调和中心思想,必然来源于传统文人的中式哲学思想,朋友之间的酒宴之请,一句“能饮一杯无?”,变的文雅有趣。亦然,我们的空间设计上也希望是文雅而有趣的。
The word red stove comes from Bai Juyi's poem An invitation. Most of the "friendship" in China is embodied by mountains and rivers. The green ants, red mud, and stoves in the poems are tools for life, and the snow is caused by nature. Therefore, the red stove, the Chinese-style space and central idea, must come from the traditional Chinese philosophy of the literati and the banquet among friends, "What about a cup of wine inside", this is so elegant and interesting. Our design also is hoped to be elegant and interesting.
●
❍
公区空间,沿用美学中“幽玄”的概念,顶部的灯光设计简单,非必要的功能照明上,我们尽量简化光,从而达到视觉上“幽”的感受,即打造室内的暗空间。动线的设计上,曲折婉转,小径通幽,是中式造园的经典手法,所以天然之趣在于草木,红庐空间不同通道的尽头或转角都会由一处草木之景,进入视野,即”曲径通幽处,禅房花木深。“这是我们想表达的第一个文雅之趣,是动线上的曲折之趣,是视觉上柳暗花明的趣。
The public space follows the concept of "deep and mysterious" in aesthetics, and the lighting design at the top is simple. We try to simplify the light for unnecessary functions, so as to achieve the seemingly"deep" and create a dark space in the interior. We adopt the design of twists and turns, and the path leads to secluded, which is a classic method of Chinese gardening, so the vegetation represents the natural interest. For red stove space, the end or corner of different passages will greet the scenery of grass and trees, that is, "a tortuous path leading to the quiet in the distance, there was covered with flowers and trees in the Buddhist temple." This is the first thing we want to express as elegant interest, a twisting interest, a visual interest that there is a way out.
●
●
从“红庐”到“红炉”,是从建筑空间到使用器具的一个过度,所以空间中我们具象了“炉”的形象。空间的色彩上我们提炼《问刘十九》中红泥这个材质,让它成为了空间的主角,低饱和度的红泥色,像传统文人的性格一样,即使隐忍卑微到泥土里,也一样热烈洒脱。而空间中具象的红炉内部,燃烧的火烛,热烈而真实。
From "red house" to "red stove", the architectural space is extended to tool application, so we have embodied the image of "stove". For space color, we use the material of red mud in An invitation to make it the protagonist in the space. The low-saturation red mud color is like the character of traditional literati, even if he is humble, he is still warm and free. The candle burning inside the red stove is warm and real.
❍
❍
墙面上的开窗或开孔,也沿用了传统中式火炉常使用的花格造型。
The windows or openings on the wall also follow the lattice pattern often used in traditional Chinese stoves.
●
❍
顶面选择了黑钛不锈钢的材质,这是我们想表达的空间的第二个趣,映射之趣。作为一个会有镜面映射的常用材质,在我们想表达的中式园林之趣的空间中,有两个作用。第一投射了单调空间中静态的草木及动态的人,这是一种视觉迷惑和复制,也是空间的互动;第二反射了仅有的空间光源,提亮空间的照明。综上,映射之趣,正对应了李白诗“举杯邀明月,对饮成三人”的传统文人内心之洒脱。
We choose black titanium stainless steel for the top surface, which is the second interest we want to express, the interest of projecting. It is a common material with mirror projecting, and it has two functions we want to express. Firstly, it projects the static vegetation and dynamic people in the monotonous space, which is a kind of visual confusion and replication, and also the interaction of the space; secondly, it reflects the only light source in the space and brightens the lighting of the space. To sum up, the interest of projecting corresponds to Li Bai's poem: "Raise a glass to invite the moon, to the shadow into three", which reflects the free and easy character of traditional literati.
●
●
《诗经》作为中国最早的一部诗歌总集,分成分《风》《雅》《颂》三部分。其中《风》这部里的十五国风讲了很多的古中国境内不同的草木,所以用这些草木之名作为包厢的雅称。而空间的主题也大多围绕了草木的元素,包厢色调在基于呼应公区藤、红泥等材质的基础上,不同的包厢空间最终呈现的感受也各不相同。
Book of Songs, as the earliest poetry collection in China, is divided into three parts: "Wind", "Elegance" and "Ode". Among them, on part of "Wind" elaborates a lot of different plants and trees in ancient China, so we use the names of these plants and trees for the boxes. Most of our names are based on the plants and trees, and we set the theme for the boxes based on materials such as rattan and red mud in the public area. Different boxes ultimately give people different feelings.
❍
△红庐爆炸分解图
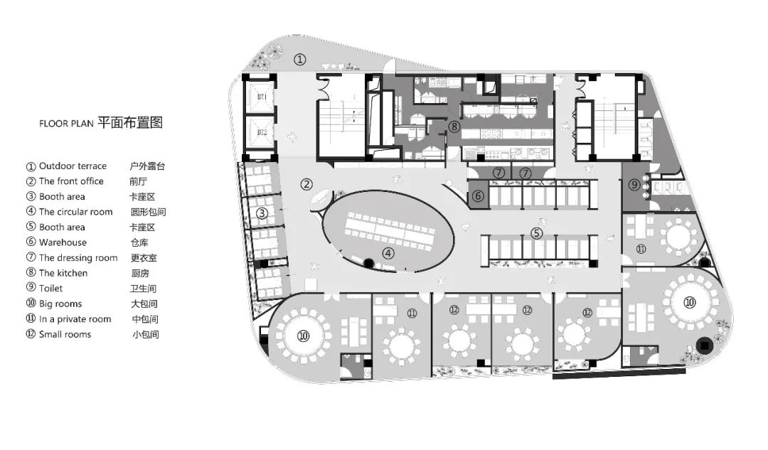
△红庐平面布置图
设计公司 | HB禾本设计
项目地址 | 南京市雨花区雨花客厅嗨站5楼
施工材质 | 黑钛不锈钢、藤、艺术漆、柔性灯带
项目面积 | 800㎡
方案设计 | 苏江 赧晓芳 黄宇
深化执行 | 韩杰
灯光设计 | 光合未来
项目摄影 | 黑曜石
文字/图片:HB禾本设计
❍
HB禾本设计
禾本空间设计事务所—中意设计团队,创立于2016年,由意大利米兰马兰欧尼设计学院、欧洲设计学院、南京艺术学院的青年设计师组成的设计团体,是一个专注于空间美学的设计团队,集设计-施工-软装-智能化系统一体服务的设计公司,专业从事住宅、办公、酒店、餐饮、商业、等室内空间方案设计和品牌VI系统设计。
往 期 回 顾
❍
❍
为青年设计发声
第一时间接收精选内容
客服
消息
收藏
下载
最近







































