查看完整案例


收藏

下载
©章鱼见筑
©章鱼见筑
林景驿——茅洲河碧道试点段建设为项目(宝安段)设计,位于深圳市宝安区茅洲河北岸,北侧为洋涌路,南临茅洲河堤顶路,东西两侧与茅洲河景观绿地毗邻。总建筑面积 100 平方米,为单层建筑,建筑高度 4.4 米。
章鱼见筑
林景驿与城市的关系
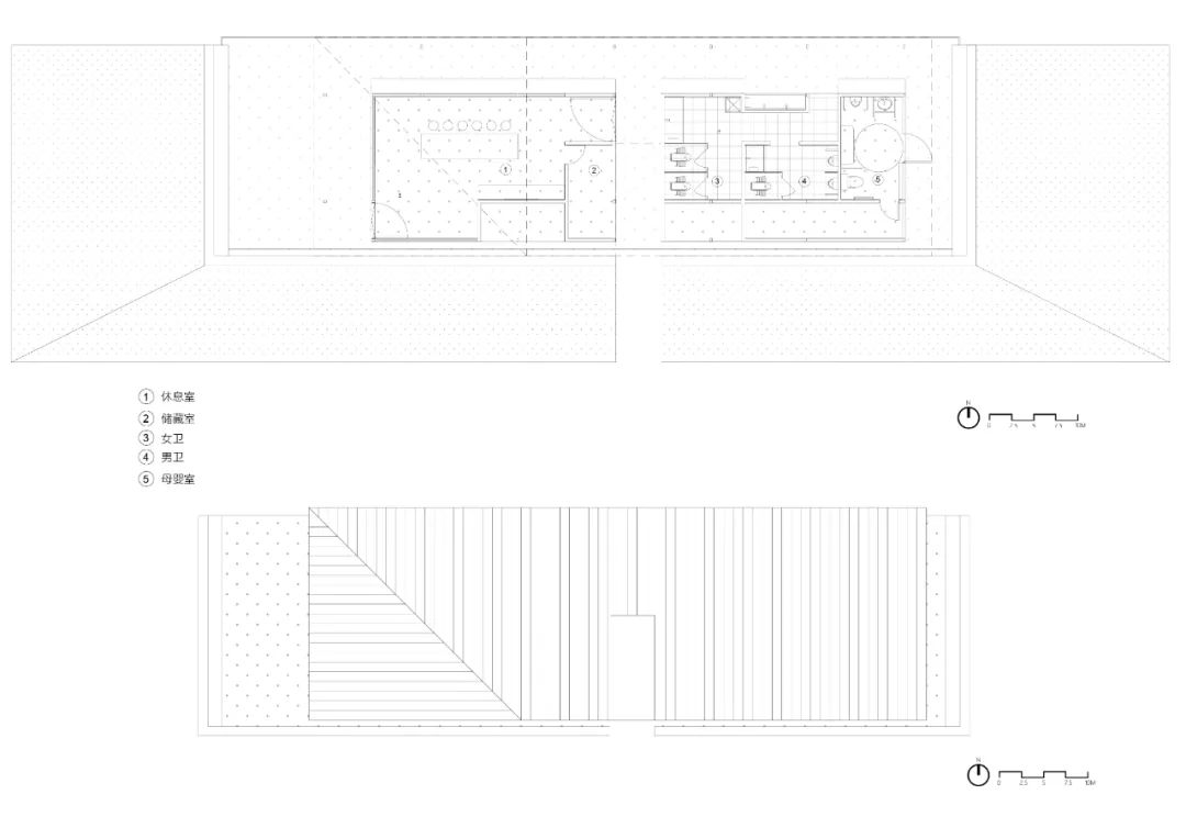
林景驿为茅洲河碧道工程试点段小驿站,兼顾绿地、母婴室、休憩、咖啡厅、公共卫生间、观景廊道等多重功能。设计以林景木屋为原型,将各功能和景观场地整合,贯穿观景视线通廊,建构景观平台、探索空间和遮阳亭架的复合体,形成别具特色的木构城市驿站,激发场域活力。
©章鱼见筑
模数化快速建造©章鱼见筑
建筑景观一体化的设计策略
林景驿整体采用单坡屋顶的建筑形式语言,由城市向景观河道方向逐步扬起;朝向河岸景观面以玻璃幕墙和景观檐廊的方式完全打开视野;面向城市面采用景观堆坡来降低檐口的实际高度 1300 毫米至视觉高度 500 毫米。
章鱼见筑
剖透视
贯穿景观通廊©章鱼见筑
快速建造的预制拼装体系
主结构采用 3000毫米的小尺度建筑模数,使得一榀榀钢木组合构架在近人尺度呈现一种有序的韵律与节奏。主结构采用 100毫米*60毫米的热轧矩形管;纵向木梁为 140毫米*60毫米的胶合木矩形双梁;横向木次梁为 40毫米
* 120
毫米胶合木椽子,间距为 200 毫米。屋顶采用直立锁边金属屋面,屋面的主体支撑采用不锈钢绞线进行固定,安装后张紧。所有单品钢木组合构件标准化、工厂预制、现场拼装,使我们在极其紧张的工期下依然能够保证林景驿的较高完成度。
爆炸图
滨水观景檐廊©章鱼见筑
露明构架的建筑装饰系统利用钢柱、双木梁、木椽子、钢绞线所构成的钢木框架来进行组合受力,并且有效利用钢板折边进行木结构端头的防水处理。整体不做吊顶,将全部的受力系统展示出来,呈现出完整的建构语言细节。
林景驿作为现代化演绎的城市滨水公共空间驿站,不仅承载着便民的基础服务体系,而且能提供更多人与人相遇的浪漫契机,同时也仿佛是市民日常生活幸福指数的“温度计”。
室内露明构架©章鱼见筑
平面图
立面图
立面图
剖面图
轴测总图
项目信息
项目名称:林景驿
建筑事务所:同济大学建筑设计研究院(集团)有限公司原作设计工作室
主创建筑师:章明、张姿、秦曙
建筑设计团队:羊青园、李雪峰、郑如轩(实习)结构设计团队:张准 王瑞 王金花
结构设计师:王瑞
设备设计团队:邵喆 孙嘉宾 马杏宇 李孟涞
业主:深圳市水务局
代建单位:华润置地有限公司
项目地点:深圳市宝安区洋涌路96号
建筑面积:
100
建成时间:2020年7月
摄影:章鱼见筑
客服
消息
收藏
下载
最近


















