查看完整案例

收藏

下载

翻译
Architects:De Matos Ryan
Area :3620 m²
Year :2022
Photographs :Hufton + Crow
Project Manager :R Pickering Ltd, Russell Pickering
Quantity Surveyor :Aspect 4 Ltd
MEP Services :P3r Engineers
Acoustics :Gillieron Scott Acoustic Design
Sustainability :Award Energy
Main Contractor :Gem Construction
Electrical Services :Switched Solutions
Mechanical Services :Warmaway
Garden Designer : Kate Guillebard
Client : Kate Harpin
City : Nun Monkton
Country : United Kingdom
De Matos Ryan has transformed The Alice Hawthorn’s sustainability with the addition of twelve guest bedrooms and the renovation of its Grade II listed pub. At the confluence of the Rivers Ouse and Nidd, the village of Nun Monkton was historically an important Northern trade hub for the medieval river transport network, with many travelers stopping overnight. The increase in road travel saw fewer travelers passing through, which eventually led to its demise as trade and social point.
The closure of the village’s four taverns is sadly consistent with socio-economic and legal changes impacting pubs across the country. Named after a famous 19th Century racehorse, The Alice Hawthorn is the village’s last remaining pub. In recent years, this critical meeting point and social hub for the local community was in economic decline and had come under threat.
Close, collaborative consultations with Harrogate Borough Council and the local community informed the project’s design. During these consultations, one villager noted that arriving home at night and seeing the pub lights on always gave them a warm feeling of contentment and calm. To see these switched off permanently would ostensibly remove a key organ of the community.
It was therefore incredibly important to save the pub from extinction. Community needs were considered at every stage of the design process and the scheme was tweaked, changed, and reconfigured to acknowledge local feedback. The redevelopment has created new revenue streams for the restaurant and bar business, improved visitor footfall and dwells time, and, most critically, increased the propensity to spend within the local economy.
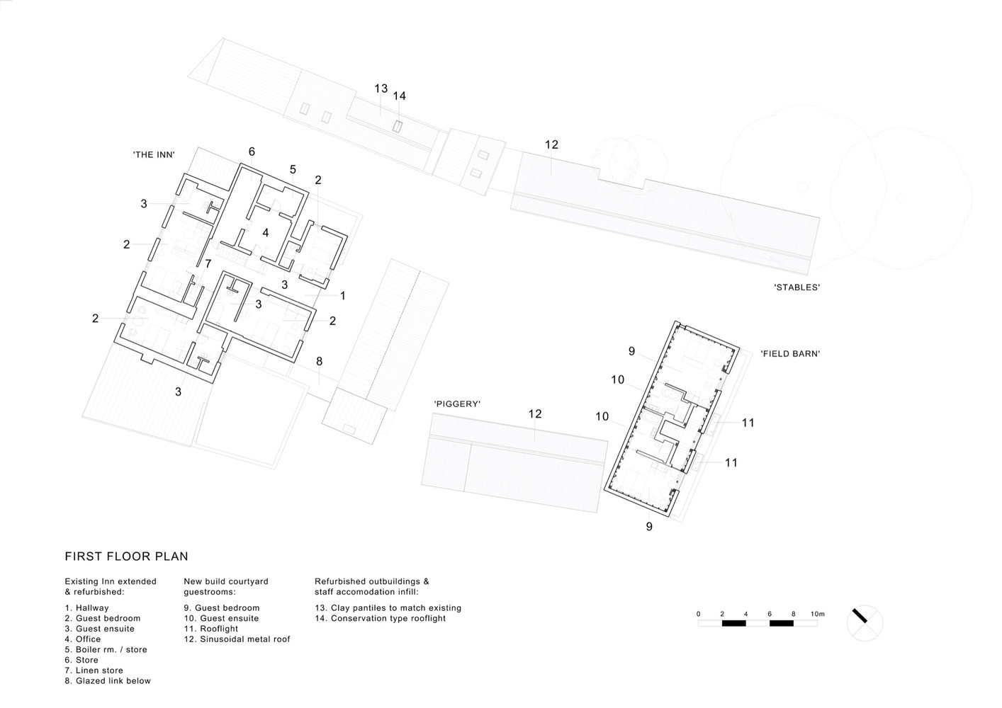
The scheme includes twelve ensuite guest bedrooms, four on the first floor of the pub and eight around a new courtyard, which extends the village green into the pub’s rear garden. The project takes its inspiration from the Norse ‘garth’ (‘grassy cloister’ or ‘clearing in the woods’), creating a sense of quiet enclosure and a notional extension of the village green: a place of gathering.
The design reflects the character of the various informal farmsteads that surround the green, which continues to be grazed by cows and other animals. The home-grown Douglas fir framed buildings use authentic agricultural building materials, such as galvanized corrugated steel roofing and larch cladding, to create the sense that the animals have only recently moved out. A simple and honest construction typology ensures that the project looks the way it was built. The guest bedrooms are supported by new ancillary service areas, including housekeeping and linen stores, and staff accommodation.
The new timber frame buildings include the Sheds, Field Barn, Stables, and Tack Room. Double member ‘cloister’ columns engage stainless steel feet sitting on cast concrete upstands. Adjacent to the front gate, the Sheds is a single-story infill building between existing brick outbuildings with two staff bedrooms and a bathroom. It is clad in larch with a pan-tile roof to match the outbuildings. The Field Barnis a south-facing, two-story structure with four guestrooms.
The lower level is clad in larch while the upper level is sinusoidal galvanized steel. There are no windows to the north and west to prevent overlooking and light pollution to the neighbors. The Tack Room, a single-story structure with a wheelchair-accessible guestroom, sits adjacent to the west boundary and the Field Barn. It also provides shelter to the outdoor kitchen, pizza oven, and pub garden bar.
Adjacent to the east boundary, the Stables is a single-story extension structure with three guest rooms. Both the Stables and the Tack Room are clad in larch with a sinusoidal galvanized steel roof and back wall. Each guestroom is announced externally by a hand-painted motif of the room names, such as Saddle, Stirrup, Flax, Barley, Wheat, and Hay. Internally, in contrast to traditional pub interiors, the new build elements have no plaster and are lined with larch boarding and poplar plywood. Subtle distinctions between the timber species are blurred by a tinted treatment. The only internal wall decorations are linocut prints created by village primary school children, who have a vegetable patch at the rear of the garth.
Sustainability is at the heart of the project’s design. A ground source heat pump provides heating and hot water, supplied by boreholes and supported with high levels of non-combustible mineral wool insulation and airtightness to a standard higher than current Part L2A building regulations. The timber frame buildings are naturally ventilated through the use of high-level clerestory windows and roof lights on actuators. Solar gain is reduced by roof overhangs, which offer shading. LED and low-energy lighting, as well as low-volume water appliances, have been fitted throughout.
The sustainable drainage system includes permeable paving and surface water attenuation tanks concealed below the pub garden. A particular challenge was to develop a 1-hour fire-resisting timber frame wall within 1m of the site boundaries. This was resolved by employing a fire-resisting sheathing internally, thus avoiding carbon-heavy blockwork. To ensure accessibility for all, level threshold access is provided to all buildings.
On completion, the new builds scored an EPC ‘A’ rating. Biodiversity has been improved on-site through extensive planting and habitat creation. The new courtyard is bounded by borders planted with native species, which also help screen the adjacent bedrooms. An orchard at the back of the site, which would have been typical of these plots in medieval times, is being re-established with fruit trees and will ultimately supply the pub’s kitchen.
▼项目更多图片
客服
消息
收藏
下载
最近































































