查看完整案例


收藏

下载
建筑面积仅 59㎡的小公寓住一家四口(长期居家办公的男主人,爱看书、爱运动的女主人,喜欢画画、古琴且即将上小学的的女儿,和工作日照顾孙女起居的外婆),还要保证生活品质,能做到吗?
恒田设计在有限的空间内,带着每位家庭成员的期望进行设计改造,充分考虑了三代人的生活及工作特点,功能分区、动线、收纳、采光、私密性...一个不少!用四方空间包裹起一家人生活的欢笑与日常~
屋主需求:
1、男主人长期在家办公,需要办公空间;
2、外婆平时照顾孙女有住家的需求;
3、女屋主热爱阅读,藏书较多。
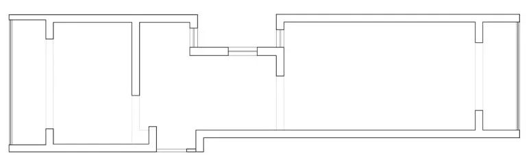
原始户型图
存在缺陷:
1. 主卧连接起居空间,同时需要借助南阳台的自然光照明,中间没有墙体遮挡,主卧的隐私性较弱;
2. 入户玄关推开门首先看到的便是卫生间,私密性和风水学上都存在一些不足;
3. 厨房位于长条形空间的中间暗角区域,采光不足;
4. 卫生间的挪动空间十分有限。
▲平面布局图
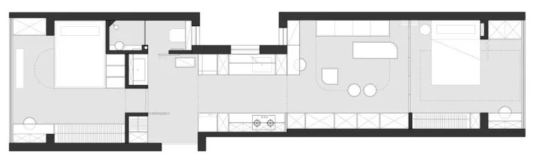
设计策略:
1、起居室和卧室之间订制移动书柜+电动雾化玻璃门,不影响自然采光的同时,保证卧室隐秘性;
2、入户设置一个半遮挡的洞洞板墙体,隔离出玄关;
3、厨房设计软膜天花模拟自然光,增加光线;
4、借用儿童房的一点空间,扩大卫生间。
改造前
左右滑动查看更多
1993 年建成的老公房,房屋长度为 15.7 米,宽度为 3.3 米,是一个“规规矩矩”的长条户型,中间部分是天井,采光较暗,此外还有主卧私密性差及入户玄关空间狭小等问题。
一起来看看改造后的样子吧!
▲避免入户正对卫生间
入户玄关处设置了一个半遮挡的洞洞板墙体,既阻挡了入户视线,也将玄关很好的隔离出来。洞洞板也可以根据日常需求配置出挂衣、挂包的收纳空间,很好的帮助小空间实现了无尘入户,提高居住舒适度。
玄关安装了整面墙体的穿衣镜,满足使用功能,也在视觉上扩大了空间感受。另一侧搭配了抽拉式的墙体鞋柜,提供充足的储存空间。
厨房设计了软膜天花模拟自然光,仿佛阳光直接从天井洒下,干净、纯粹,补充了厨房的光线,点亮昏暗的小角落。考虑到油烟问题,在厨房和起居室中间增加移门,平时可隐藏在柜体两侧实现空间的通透及互动性,做饭时将门关闭即可隔离油烟。
软膜天花提亮空间,橱柜、墙体和地面大面积采用白色系设计,配合软膜天花提亮了整个空间。原本房间最暗的部分摇身一变,成为了让女主人最为惊喜的地方。
合理的厨房功能分区,也从视觉上延展了空间感受。爱研究美食的外婆可以在这里享受着空间带来的愉悦,为孙女搭配合理的膳食。
起居室除了基本的功能需求之外,也是全家互动使用最频繁的空间。用卡座代替沙发功能,取消非必要的家具,留出充足的活动区域,最大限度的让空间满足每个人的期望。
电视背景墙设计储物柜和开放展示柜,增加空间收纳。
底部悬空,刚好收纳扫地机器人,加上灯光点缀也弱化了整面电视柜的沉闷压迫感。
小朋友肆意长大、愉快唱跳;女主人闲适阅读、自在的室内瑜伽运动;一家四口晚饭后的天伦之乐......都在这个空间中得以满足。
在卧室和起居室中间,需要一处既能保证采光、又能拥有私密性的隔断。综合考虑,设计师在主卧与起居室中间,量身定制了一套移动书柜。
▲电动雾化玻璃门
同时配置了电动雾化玻璃门,开启时会自动雾化,保证主卧的私密性;关闭时便是一扇透明的玻璃门,对白天的光线也不会有任何阻碍。
书柜墙体除了在空间上分隔了主卧与起居室,还为热爱阅读的女主人收藏爱书提供了方便,让 200 余册书籍,也有了展示收纳之处。
▲可推拉隔板书柜一侧搭配可推拉隔板:白天打开隔板,完美利用南阳台的自然光;夜晚关闭隔板,打开雾化玻璃门,保证主卧的私密性及安全感。
▲床尾规划整面衣柜。
主卧内设置了整面墙的衣柜储存空间,再多的衣服也不用担心收纳问题,白色的柜体也让空间显得更加明亮通透。
让人心安的卧室环境可以很好的提升睡眠质量。大面积白色、原木色的使用,配合暖光色调的床头灯,温柔、轻松,营造出温馨的卧室氛围感和舒适感。
连接主卧的南阳台,一侧布置了女主人的梳妆台,一侧成为了男主人的办公区。
鉴于男主人长期在家办公的需求,设计师选择了全屋光线最好的位置,搭配符合人体工学的办公椅,即使在这里工作一整天,身体也不会有压迫感。
儿童房的空间功能划分上,除了要满足女儿的学习及休息功能,还需要满足外婆的居住需求,及未来空间的可变化性。目前采用可移动上下床——下层空间保证外婆的起居舒适度,上层空间是属于女儿的小天地。像一个“时光盒子”,每个人都享有更舒适的居住体验。
“盒子”内侧有可以爬上爬下的踏步台阶,形式上营造出了些许滑梯的仪式感,也给爱玩滑梯的女儿带来了一些小欢乐。
▲儿童房少年时期和青年时期的多变组合方式
床体及踏步位置前期预留好尺寸,伴随女儿的成长,少年时期与外婆同住的盒子空间,在青年时期可以成为属于自己的独立卧室。
台阶宽度设计为 600cm,和衣柜同宽,未来可变身柜体来增加储物空间。
北阳台补充了儿童房的活动区域,窗边放置小书桌,利用自然采光的优势,给小朋友提供了画画、学习的空间。其余的空间,既能满足家长与女儿的日常互动,又可以在后期根据需求摆放古琴等乐器,最大限度满足孩子成长的需求。
卫生间原始空间有限,设计师巧妙借用了儿童房一处 900cm X 900cm 的小空间,置入淋浴室,同时将洗手池外移,实现干湿分离。
- 设计师采访 -
Q 最满意的空间是哪里?为什么?
A 客厅及厨房区域,也是相对需要解决问题最多的位置。厨房紧邻客厅生活区需要考虑做饭时的油烟问题,所以在两个空间的中间部分增加移门,平时可隐藏在柜体两侧实现空间的通透及互动性,做饭时将门关闭也可满足隔离油烟的问题;厨房位置为房屋的中心几乎没有采光,在顶面增加了软膜天花补充光线照明,使空间明亮通透。
Q 全屋收纳规划如何安排?
A1. 各处均布,所用物品应就近收纳,且满足合理的使用动线;
A2. 收纳占比,收纳区域应满足全屋占地面积 16%以上,才能满足未来居住后更多的收纳需求。
Q 为了控制预算,是否有做一些调整和妥协?有什么特别推荐的品牌吗?
A 主材、软装均为屋主自采,设计方提供全套材料选型,负责后期图纸审核及交底验收;推荐瓷砖品牌费罗娜,相对小众,但是性价比较高。
一组对比图
▲客厅
▲厨房
▲主卧
▲阳台
设计机构:恒田设计
文章来源:家的要素 jiayaosu
客服
消息
收藏
下载
最近








































