查看完整案例


收藏

下载

翻译
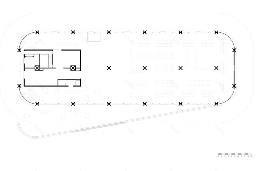
Meerstad is an urban extension location on the eastern flank of Groningen. Over a period of several decades, approximately 5,000 homes will be gradually built around the newly constructed Woldmeer lake. The development of Meerstad is taking place in small steps, with the result that a social and programmatic heart is lacking. The ‘SuperHub’ is designed to fix this.
A super hub is the contemporary variant of the supermarket. It’s a building where you can do your shopping and that also offers an additional programme, such as (initially) a café and a health centre. This makes the SuperHub a pioneer building that grows with the neighbourhood and, in addition to providing the basic necessities of life, also provides opportunities for encounters, activity and entertainment.
The building is transparent and all-sided, with a sustainable wooden support structure. While shopping, it allows you to experience the surrounding park landscape. It can be flexibly divided and can accommodate other functions in the future, such as a community centre or even homes. The roof provides plenty of space for solar panels.
客服
消息
收藏
下载
最近















