查看完整案例


收藏

下载

翻译
Architects:Jan Kattein Architects
Area :600 m²
Year :2020
Photographs :Diane Auckland - Fotohaus
Manufacturers : Rationel, Dulux AzkoNobel Trade, Fermacell, Flight Timber, Forbo, LAYHER, ResincoatRationel
Structural Engineer :Arup
ME Engineer :Arup
Quantity Surveyor :Gardiner + Theobald
Contractor :H. A. Marks
Project Architect : Gabriel Warshafsky
Project Assistant : Rose Shaw
Workspace Operator : Meanwhile Space
Client : Westminster City Council
Principal Use : Temporary work, retail and community space
Fire Engineer : Arup
City : City of Westminster
Country : United Kingdom
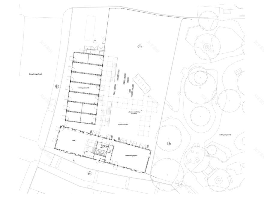
Ebury Edge comprises temporary affordable workspaces, a café, and a community center to provide a continuous place for residents old and new to meet as the Ebury Bridge Estate is re-developed phase by phase. The Ebury Bridge Estate had been identified by Westminster City Council as urgently requiring improvement to homes and the external environment. Working closely with a representative steering group, the City Council first established a right of return for all residents before developing proposals for the redevelopment of the estate. Unusually, Westminster is committed to the delivery of new community facilities in advance of the principal scheme.
JKA were commissioned to work closely with residents to establish the brief. Interviews with key stakeholders, including a local homeless charity and community garden, informed the design of an elevated planting deck and scaffold ‘trellis’ which place gardening at the heart of the scheme. The steering group’s brief for an ‘invitation’ into the estate guided the design of an illuminated tower at the site’s leading corner, a celebration of the scheme’s civic intent.
Along the street front, two stories of workspace units arranged in a colorful timber-clad terrace activate the edge of the Estate in transition. The café and community center are housed in a distinct single-story volume receding into the depth of the site. Together, the assemblage shelters a courtyard to the rear, which connects to the existing green play space to provide a much-needed social space for the estate and external seating for the café.
Workspaces are sized to provide an affordable foothold for small local businesses, with a variety of micro-shop fronts along the street and larger offices upstairs. The community hall shares a core with the café to allow events and functions to flow between spaces and out into the rear courtyard.
We made use of accessible and widely available timber framing techniques in construction, creatively assembled to allow the structures to be demounted and re-assembled elsewhere once the site comes forward for development in five years’ time. The lightweight structure, including a suspended timber ground floor, requires minimal foundations, reducing the embodied energy of the scheme.
Ebury Edge exemplifies a new approach that embraces the creative potential of the regeneration process itself for positive change. By creating community amenities in advance of long-term redevelopment, the scheme is creating continuity for residents, enabling local businesses, and will help to ensure that the long-term redevelopment is well-rooted in its context. The design and consultation approach has resulted in a scheme with a striking visual character that is unique to Ebury, and reflects residents’ wishes to invite communities old and new to take their place on the renewed estate.
▼项目更多图片
客服
消息
收藏
下载
最近






















