查看完整案例


收藏

下载
L型空间将4个朝西的窗与2个朝北的窗一次排开,每个卧室都有单独的窗,夏季绿色树木是主要的视野,在处理空间关系的时候,保留多个窗户的优势,突出窗外景色,室内则是温柔的氛围。
该项目位于北京市朝阳区,使用面积约120平米,是为一对夫妻设计的居所,中国春节期间,父母会来到北京与他们一起短暂生活,屋主爱好阅读/美食/品酒。
▲室内空间一览©金伟琦
因房屋所处于二楼的位置,L型空间将4个朝西的窗与2个朝北的窗一次排开,每个卧室都有单独的窗,夏季绿色树木是主要的视野,在处理空间关系的时候,保留多个窗户的优势,突出窗外景色,室内则是温柔的氛围,设计主要用了三个材料:胡桃木饰面板/米灰色乳胶漆/灰色瓷砖。
▲室内温柔氛围©金伟琦
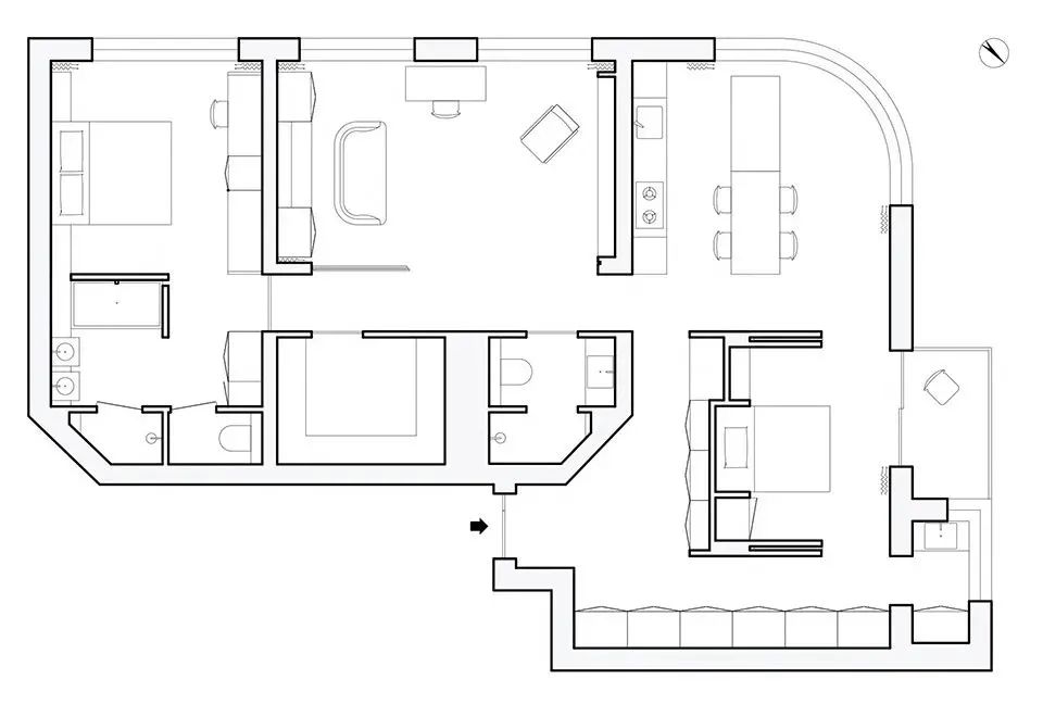
是一个三室一厅一厨两卫的空间,其中两个卧室面积小,使用起来比较局促,去到主卧室必须要经过一条长长的走廊,走廊面积浪费了空间,也形成心理不舒服的感觉,三个卧室离得很近,一家人同时居住时,有些尴尬,厨房空间小,洗菜盆和灶台分别在两排橱柜上,使用起来不方便。
1:将主人卧室与客人卧室拉开距离,客人卧室位置移动到入户门附近,背靠收纳柜,面朝落地窗与露台。2:主人卧室与主人浴室在同一空间,将浴室做了3分离,浴缸与淋浴分开,并设置衣柜在主卧室内,两个书桌可以同时保证夫妻两人办公或女主人化妆使用。3:将衣帽间从主人卧室分离出来,作为全家的收纳空间。4:起居室拥有一个大窗户视野的起居室,同时这里也设计了壁挂床,也可以选择作为第三个卧室,通过移动门来划分空间。5:将餐厅与厨房设计在同一空间内,拥有弧形窗视野。6:玄关设计了两排大量的收纳柜,满足日常使用,也满具备增加收纳的可能性。
入户门面对是门厅与客人卧室共用的一面隔墙,分别在玄关与卧室内墙面设计了收纳柜,右侧是一排收纳柜,收纳了衣物/滑雪用品/洗衣机/烘干机/旅行箱。
是一个多功能空间,女主人在家庭办公,所以这里也也是书房,父母来短住的时候也是临时的卧室。
▲分隔门厅与起居室的推拉门©金伟琦
空间很大,增加了岛台功能,家庭聚会的时候,餐桌可以随意移动,弧形窗视野很好,在这里可以享受一年四季不同风景的早餐。
▲餐厅与厨房概览©金伟琦
▲弧形窗提供了良好的视野©金伟琦
▲由餐厅看开放式厨房©金伟琦
通过两个移动门的开合,划分卧室的私密性与敞开性,一张1500mm宽的床,可是提供客人来居住,也可以提供男主人出差早出晚归时居住,落地窗在卧室内,更有私密感,打开窗,室内与室外的空间连通成一体,增加使用者与自然的互动。
▲客卧与移动门©金伟琦
▲收纳空间位于床头两侧©金伟琦
床靠近窗户的位置,床的对面是梳妆台与书桌,L型隔断墙保护了浴缸的隐私,墙面的缝隙体现了趣味性,床头柜延伸至洗面盆位置,双人洗面盆,单独的马桶间,单独的淋浴间,更方便生活中使用。
▲主人卧室入口©金伟琦
▲床的对面是梳妆台与书桌©金伟琦
▲L型隔断墙保护了浴缸的隐私,墙面的缝隙体现了趣味性
四个功能独立划分开,马桶区、洗漱区、淋浴区、浴缸分离使用的模式。
本文来源于网络、版权归作者所有、
如有侵权联系后删除
客服
消息
收藏
下载
最近






















