查看完整案例


收藏

下载
舒适度满满又高颜值的家,是我们对美好生活的向往。 分享世界各地好看的家,给自己家里装修和装饰提供最直接的视觉参考,给不一样的生活方式提供灵感,给眼睛提供舒适感,最最最重要的,我们也能不断提升审美和品味。 接下来让我们进入存图模式吧~~~
今天分享的案例,屋主夫妻都是文字工作者,偏爱法国老宅的优雅风情。所以设计师采用了人字拼木板、花砖、对开门、藤编等多种复古元素,打造质朴而文雅的住宅气质。
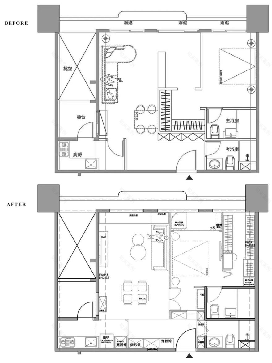
房屋情况: · 面积:76㎡ · 格局:1室1厅1卫 · 常住人口:2大2猫 · 设计团队:帷圆.定制 circle
玄关: 玄关以法式花砖作为落尘区,柚木鞋柜的藤编门与旁边的玻璃窗格相互呼应,营造丰富的空间质感。
进门左手边设立换鞋凳,并与高柜衔接,大大增加了家里的收纳空间。
餐厨: 踏上人字拼地板,即进入了餐厅,餐厅紧邻厨房一侧,日常下厨-吃饭,动线十分流畅。
虽然平时家里只有夫妻两人,但屋主仍旧选了一张较大的餐桌,用来充当就餐 办公的场所。
客厅: 全屋家具与地板以深色调为主,为了缓解深色带来的压迫感,设计师刻意将客厅腰线拉低到70cm,由此更好地衬托出白墙,提升空间感。
电视背景墙不做过多修饰,用复古的水磨石围绕,这种简单质朴的材料恰恰让屋主保留对老宅的记忆。
沙发背景墙用中性的奶茶色接替水磨石,舒缓了一屋的深沉木色,墙上的石膏线也渲染出浪漫的法式氛围。
主卧: 推开对开门,就是卧室区。卧室整体风格与沙发背景墙一致,以淡奶茶色为主,这种和缓轻柔的环境也更适合睡眠。
为了弥补没有阳台的遗憾,设计师特意在卧室一侧设计了地台。将半弧座椅与简易书架放置其中,构建出屋主理想的阅读角落。
衣帽间与主卧相连,女主人的化妆区也设立于此,日常梳妆、换衣十分便捷。
本期的案例就分享到这里了,喜欢的话,别忘点个赞再走奥~
觉得有帮助,就点个在看吧
客服
消息
收藏
下载
最近




















